V lesích u Nižboru vyrostla malá dřevěná chata plně respektující regulativy CHKO
Při návrhu chaty v bývalé trampské osadě museli architekti v první řadě zohlednit jednoznačné regulativy CHKO. Vznikla proto jednoduchá stavba opláštěná modřínovými prkny, která díky velkým oknům navozuje přímý kontakt interiéru s krásným přírodním okolím.
EARCH.CZ , 15. 5. 2023
„Kdo kdy nesnil o chatě, kde po terase občas přeběhne srnka a za plůtkem zachrochtá divočák. Kde pro houby a maliny stačí vyjít naboso na zahradu. Kde za okny šumí borovice, pokud zrovna nejsou přehlušeny sousedovou cirkulárkou. Kde voní smůla, piliny a lišky dávají dobrou noc. O chatě v bývalé trampské osadě, ale bez plísní, zatuchliny a zavěšených liščích ohonů…,“ představují svůj předloni dokončený projekt architekti ze studia Systém Recovery Architects.
Více k tématu
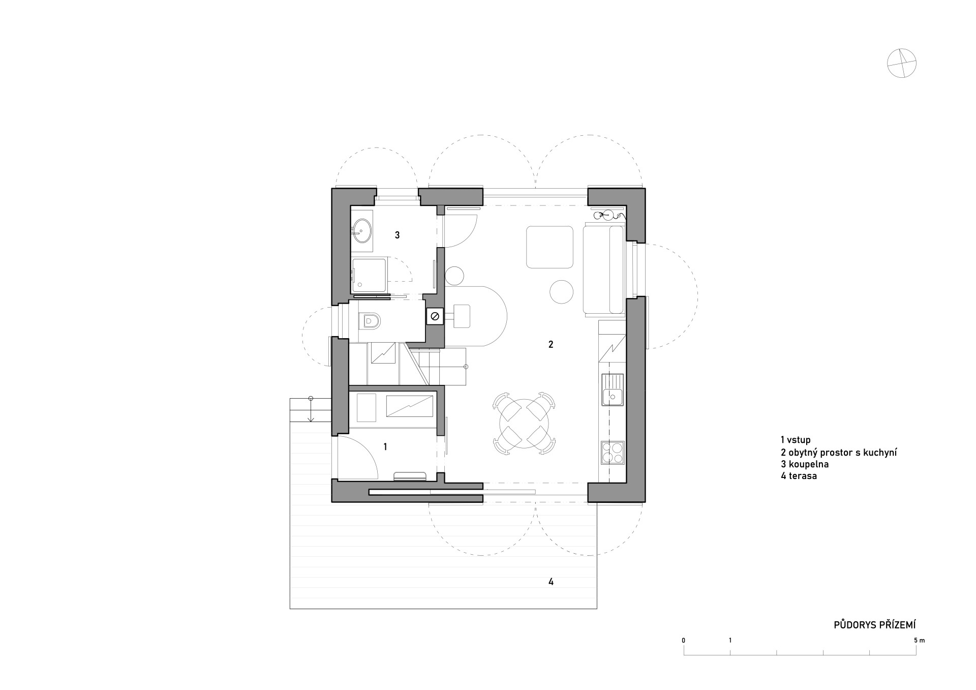
Na pozemku ve vesnici Žloukovice spadající pod středočeskou obec Nižbor stála stará chatka, na jejíž základech nový rekreační objekt vyrostl. Byl to ostatně jeden z požadavků CHKO Křivoklátsko – stejně jako tvar střechy, směr hřebene, vertikální dřevěný obklad i boční vstup do stavby.
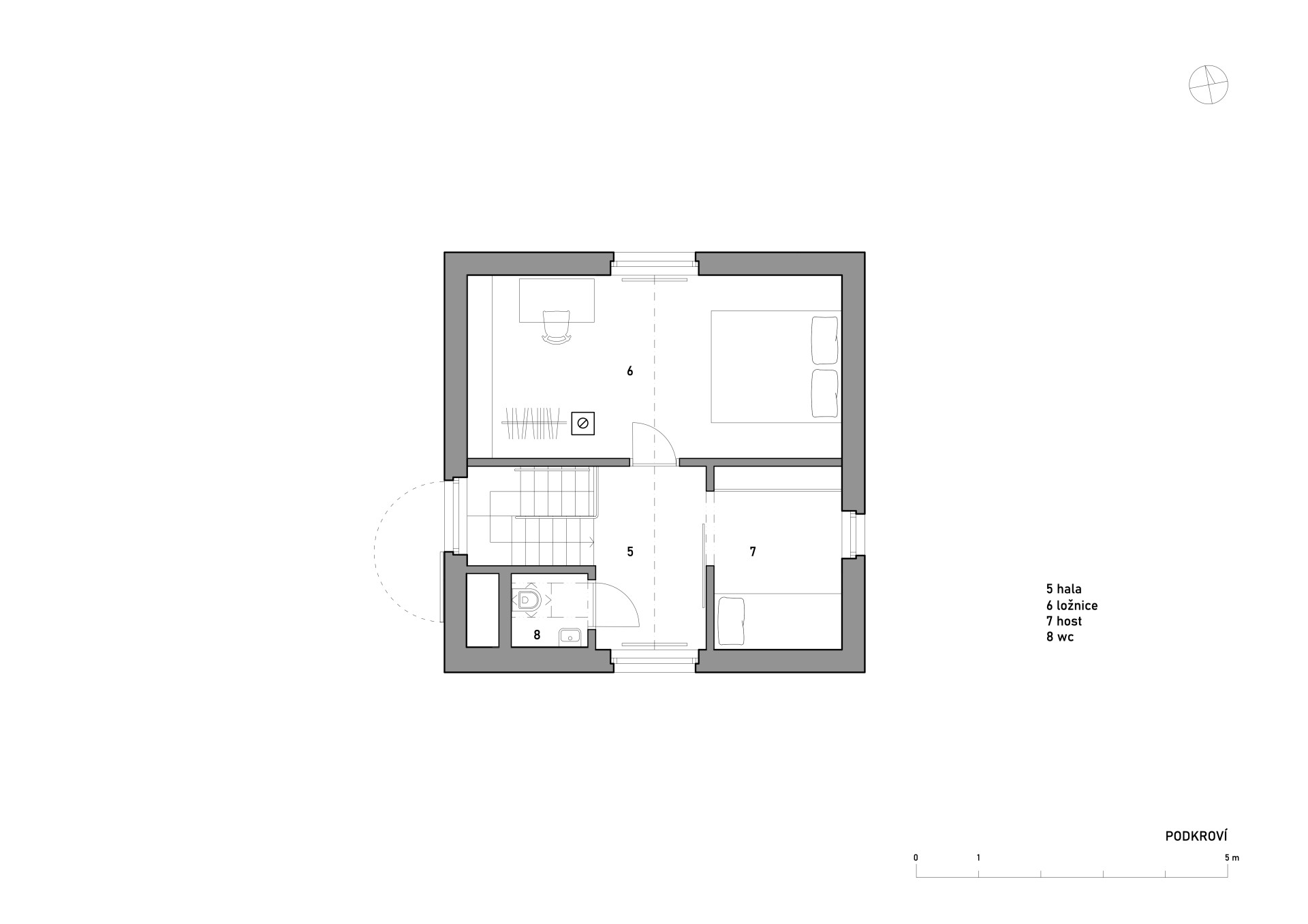
Navzdory všem těmto omezením se architektům podařilo navrhnout na první pohled soudobou, přitom však velmi pokornou a kontextuální stavbu. Hlavní obytný prostor v přízemí je propojen velkým posuvným oknem s terasou. „Okno je možno zcela zasunout do jižní obvodové stěny a hranice mezi venkovním a vnitřním prostorem pak mizí. Díky protilehlému velkému oknu v severní fasádě je obytný prostor vizuálně ohraničen lesem z obou stran. Stejný koncept je uplatněn i v prostoru podkroví. Čtvercová okna rámují lesní scenerii a stávají se obrazy proměňujícími se během roku. Směrem k sousedním pozemkům na východě i západě je domek naopak uzavřený a chrání soukromí svých obyvatel,“ vysvětlují architekti.

Konstrukci chaty se zastavěnou plochou pouhých 45 metrů čtverečních tvoří prefabrikované dřevěné panely, které mohly být na místě sestaveny během jediného dne. Díky užití prken o různých šířkách získává provětrávaná fasáda zajímavý rastr. Dřevo se pak stalo dominantním materiálem také v interiéru – bělené smrkové biodesky byly použity pro posuvné dveře a vestavěný nábytek, schodiště a podlahy jsou ze širokých smrkových fošen.

„Zádveří, koupelny a schodiště mají skromné rozměry, aby obytné místnosti mohly být prostorově velkorysejší. V podkroví je kromě hlavní ložnice i menší pokoj. Malý dům umožňuje návštěvy přátel a stal se důležitým místem společných zážitků širší rodiny. Bez televize, zato s polínky praskajícími v litinových krbových kamnech. Elektrické přímotopy a podlahové topení v koupelnách je využíváno pouze v mrazivých zimních dnech,“ dodávají autoři návrhu.
- Ateliér: System Recovery Architects
- Autoři: Helena Línová, Vítězslav Kůstka
- Země: Česká republika
- Město: Nižbor
- Projekt: 2019
- Realizace: 2021
- Zastavěná plocha: 45 m²
- Plocha pozemku: 1070 m²