Architektura
/
rodinné domy
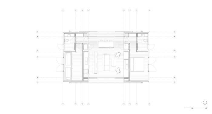
Mezi krajinou a mořem
Daleko od města, plné specifických řešení. V námořních domcích v odlehlé oblasti Jose Ignacio, místu známém svými výbornými podmínkami pro surfing, se spojuje vliv krajiny, pospolitého života i praktických možností, jež místo nabízí a umožňuje.
MAPA Architects , 9. 5. 2017
Více k tématu
- Autoři: Luciano Andrades, Matías Carballal, Rochelle Castro, Andrés Gobba, Mauricio López, Silvio Machado
- Ateliér: MAPA Architects
- Spolupráce: Pablo Courreges, Mauricio Müller, Diego Morera, Emiliano Lago
- Země: Uruguay
- Realizace: 2015
- Město: José Ignacio
- Datum projektu: 2015
- Realizace: 2015
- Užitná plocha: 90.00m2
- Foto ©: Leonardo Finotti / leonardofinotti.com