Můj dům, můj beton – část 2
Betonová vila v regionu Karst na hranici Slovinska a Itálie je projekt, u níž architekti pomocí moderních technologií nově interpretovali tradiční „anonymní“ výstavbu domů. Stavba byla nominována na Mies Van Der Rohe Award 2015, získala ocenění WAN (World Architecture News) House of the year 2015 a byla zařazena mezi oceněné stavby Best Architects Awards 16 udělované v Německu. Pod realizací je podepsán ateliér dekleva gregorič arhitekti.
dekleva gregorič arhitekti , 7. 6. 2016
Architektonické řešení
Region Karst leží na vápencovém podloží a není proto divu, že vápenec používali místní obyvatelé ke stavbě svých obydlí. Zručně uměli využít vlastnosti tohoto kamene ke zmírnění výkyvů počasí, zimy jsou zde větrné a léta extrémně teplá. Malé, kamenné domy téměř bez oken zde mají bohatou tradici (jak ukazuje fotografie tradičního domu).
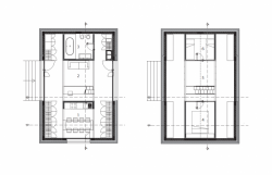
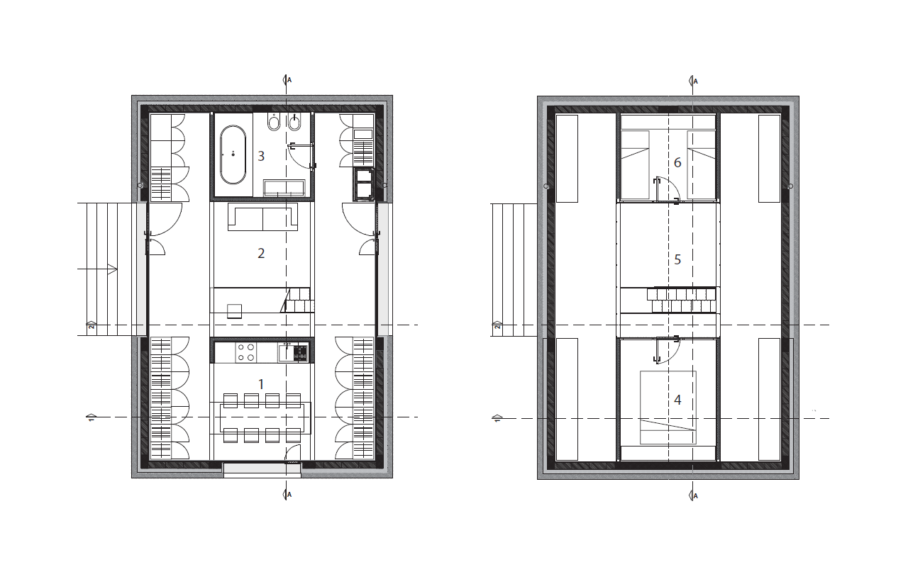
Architekti ze slovinského architektonického studia dekleva gregorič ve svém návrhu zohlednili tradiční místní výstavbu a s využitím současných technologií navrhli kompaktní dům z kamene a železobetonu, který slouží potřebám mladé rodiny. Compact Karst House působí zvnějšku celistvým dojmem, uvnitř je prostor rozdělen dvěma vnořenými dřevěnými částmi propojenými „plovoucí“ podestou (viz axonometrické schéma).
Přízemí je veřejným prostorem s výhledy na krajinu, zatímco horní patro je vyčleněno prostoru soukromému s výhledem pouze na oblohu. V přízemí je kuchyň, jídelna, obývací pokoj a koupelna, ve vrchním patře velká ložnice a dětský pokoj, meziprostor slouží jako herna. Vrchní patro provedené jako „dům v domě“ dává obyvatelům pocit, že nespí v pokoji, ale každý ve svém vlastním domě (názorně ukazuje interiérová fotografie).
Materiály a konstrukce
Konvenční stavební techniky dneška, které jsou podřízeny omezeným individuálním rozpočtům, často zanedbávají fantastické místní tradice vyžadující samozřejmě mnoho znalostí, úsilí a schopnou práci rukou. Karst house je výsledkem přijaté výzvy porozumět tradičnímu pojetí budovy, tzn. malým rozměrům a logice vrstvení kamene, a interpretovat toto porozumění za použití současného přístupu a dostupných stavebních technik.
Dům je postaven z nepálených jílových cihel, z vnější strany je obložen místním vápencem zpevněným betonem a vnitřní stěny jsou opatřené omítkou.
Při realizaci obkladu tloušťky 150 mm byly kameny různé velikosti ukládány plochou stranou proti bednění a poté byly zality betonem. Beton pronikl ze zadní části přes mezery mezi kameny do popředí fasády, aby vytvořil finální texturu – mix kamenů a betonu. Když se po dvou dnech odstranilo bednění, přebytečné množství betonu bylo zredukováno, aby se dotvořil působivý „obraz“.
Všechny příčky v interiéru jsou dřevěné, tvořené vrstvenou smrkovou překližkou ošetřenou transparentním nátěrem. Podlahu 2. NP tvoří smrková deska CLT, která je osazena ve dvou ocelových I-nosnících (na podélné straně).
Základ střechy tvoří železobetonová deska, která je v interiéru pohledová s přiznanou struktura dřeva z bednění, a na ní je položena vícevrstvá polymerní fólie. Funkci krytiny střechy tvoří opět železobetonová deska, která provedením připomíná tvar schodů. Toto vytvarování redefinuje tradiční sedlovou kamenitou „Karst“ střechu, její strukturu, barvu a materiál.
Střecha i fasáda byly betonovány po taktech 600 mm.
Současnost a tradice
Materiálová neodlučitelnost fasády a střechy je nejen signifikantním obrazem tradiční vesnice v Karstu, ale v tomto novém provedení jasně posiluje vztah mezi současností a tradicí, otevírá otázku reinterpretace „anonymně“ stavěné architektury za použití moderních technologií. Dům materiálově vystihuje provázanost prostorů venkovního a vnitřního, přírodního a sociálního.
Redakce časopisu BETON TKS děkuje architektonickému studiu dekleva gregorič arhitekti za poskytnuté podklady.
Více k tématu
- Autoři: Aljoša Dekleva, Tina Gregorič, Lea Kovič, Vid Zabel
- Ateliér: dekleva gregorič arhitekti
- Země: Slovinsko
- Realizace: 2014
- Město: Vrhovlje
- Datum projektu: 2012
- Realizace: 2014
- Užitná plocha: 92.00m2
- Materiál: beton
- Foto ©: //www.marolt-photography.com/" target="_blank">Janez Marolt