
Galerie anebo byt? Zde se mísí obojí, umělecká díla s bydlením
Interiér je prosvětlený, vládnou mu světlé barvy a vyniká designový nábytek a umělecká díla. Prostor tady plyne, dveře chybí, vše je maximálně propojené. Naopak schované zůstává to, co očím nelahodí – třeba technická místnost.
Adéla Vaculíková , 3. 5. 2024
Bílá krychle je termín pro galerijní prostory, ve kterých jsou umělecká díla instalovaná tak, aby je nic nerušilo. Takové galerie bývají prázdné, světle vymalované a prosvětlené. Umělec a teoretik umění Brian O’Doherty o nich říká, že jsou to světy odstřižené od reality vnějšího světa.
Interiér navržený architektkou Martinou Homolkovou je taky taková bílá krychle. Nejde přitom o galerii, ale soukromý byt. Uměleckých a designérských děl je v něm však řada, je to tedy taková osobní galerie. Jeho vybavení je solitérní a výrazné – stejně jako umění v bílé krychli.

O’Doherty současně říká, že v ní kroky návštěvníků buď zesiluje tvrdá podlaha, nebo je naopak utlumuje koberec. V tomto pražském bytě je to ta první varianta, podlaha je z cementové stěrky a plyne celým prostorem bez přerušení. Díky své šedé barvě je neutrální, nenápadná.
Interiéry jsou laděné hlavně do světlých barev, tou pestrou, která se do bytu dostala, je růžová. Je třeba v obýváku na kultovním sofa Togo, které v 50. letech navrhl francouzský designér Michel Ducaroy. Duhu nad ním vykresluje světlo Halo Sky, které dokáže simulovat východ Slunce. Designových svítidel je v bytě ostatně řada, od značek ze světa i české Bommy.

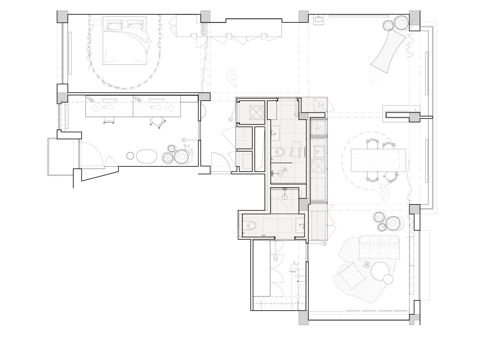
Aby v interiéru výrazné designové solitéry vynikly, bylo potřeba spoustu dalšího nutného vybavení někam schovat. V tomto dělá službu velká centrálně umístěná sestava skříní, architektka jí říká „nábytkový blok“, který v sobě skrývá technickou místnost, šatní skříň, kuchyň i dvě malé koupelny. Vyrobený je ze surových MDF desek.
A teď k uměleckým dílům. To největší v bytě je site-specific, tedy vytvořené na míru přímo pro daný prostor. Jde o velkoformátovou malbu od Kláry Spiškové, kterou vytvořila na deskách nábytkového bloku. Dále to pak jsou díla textilní. Velkoformátová textilie černé barvy od Miroslavy Klesové nebo lněné závěsy od Lindy Kaplanové. Ty mají taky užitnou funkci, splývají kolem postele a oddělují tak spací zónu, do které propouštějí jemně zabarvené světlo.
Více k tématu
Že se byt udržoval co nejvíc prázdný a čistý, to vyplývá i z jeho celkové DNA. Nachází se v pražském funkcionalistickém domě, který architektce učarovala. V souladu s atmosférou domu se rozhodla velkorysý stotřicetimetrový byt vyčistit od všech nánosů času a navázat na původní charakter. „V návaznosti na tento silný pocit pak vznikla idea velkorysost prázdna ponechat, a naopak ji ještě umocnit,“ píše architektka ve své autorské zprávě.
- Autoři: Martina Homolková
- Ateliér: Malfinio
- Země: Česká republika
- Město: Praha
- Projekt: 2020-2023
- Realizace: 2023
- Hrubá podlahová plocha: 135 m²
- Fotograf: BoysPlayNice