Architektura
/
interiér
Nástup po červené podlaze
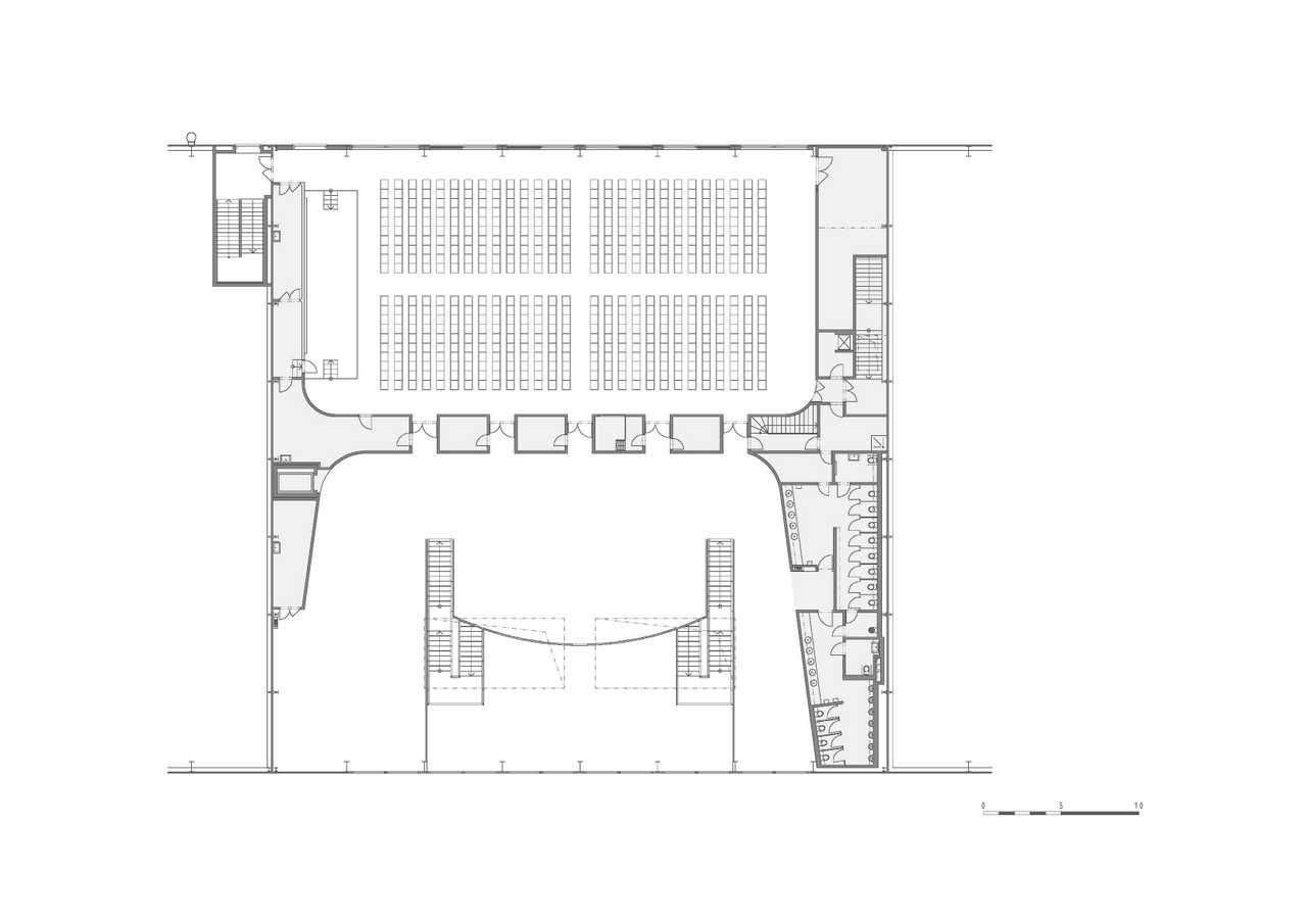
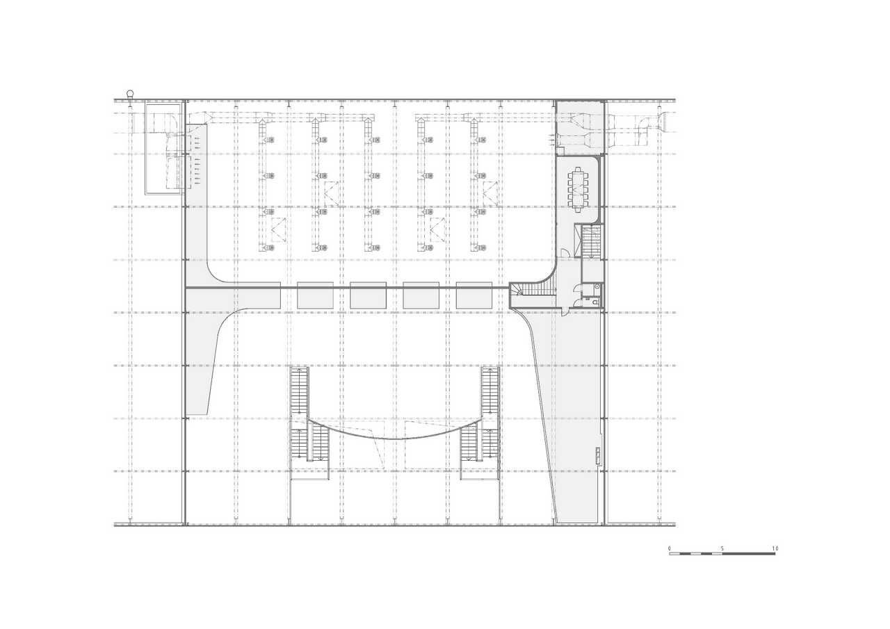
Areál PVA v Letňanech se dočkal nové vstupní brány, kterou se stalo kongresové centrum navržené architekty ze studia Progres architekti. Jejich návrh vychází z jednoduchého konceptu, kdy do existující průmyslové haly vkládají nezávislé struktury s odlišnou estetikou. Než se ale dostanete do kongresové místnosti s uklidňující neutrální barevností, v prostranném foyer se projdete po výrazné červené podlaze.
Progres architekti , 15. 12. 2016
Více k tématu
- Autoři: Vojtěch Kaas, Jan Kalivoda
- Ateliér: Progres architekti
- Země: Česká republika
- Realizace: 2015
- Město: Praha 9 - Letňany
- Ulice, číslo: Beranových 667
- PSČ: 190 00
- Realizace: 2015
- Užitná plocha: 1 610.00m2