Návrh horské chaty ve Svatém Petru od studia Znamení čtyř vychází z tradic krkonošské architektury
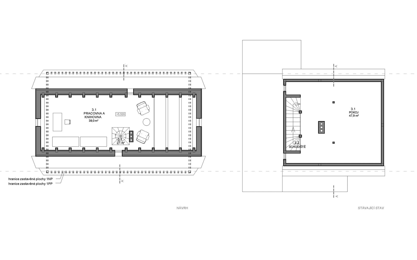
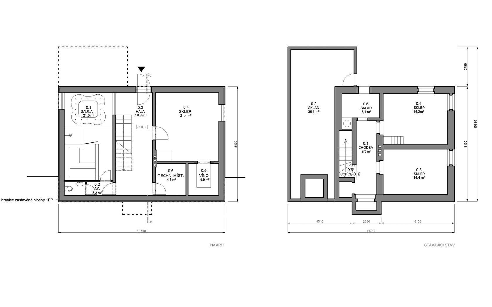
Při promýšlení návrhu horské chaty v městské části Špindlerova Mlýna Svatý Petr se studio Znamení čtyř - architekti inspirovalo u tradičních stavení Krkonoš, tak aby mohla stavba lépe zapadnout do svého prostředí. Stavba vznikla na místě staré zchátralé chaty a využívá primárně přírodní materiály, jako je kámen (masivní štípané kvádry ze žuly pro obklad soklu) a dřevo (cedr pro obložení fasád, smrk v interiéru). Srdce domu představuje hlavní společenská místnost v patře otevírající se do krovu, která díky velkým oknům nabízí daleké výhledy do okolní krajiny. Nejvýraznějším motivem celé stavby je nicméně vychýlení štítových stěn, takže délka hřebenu střechy přesahuje délku stavby u její základny. I v tomto případě se ovšem jedná o tradiční prvek regionální architektury.
ZNAMENÍ ČTYŘ – ARCHITEKTI , 11. 6. 2020
- Autoři: Martin Tycar, Juraj Matula, Richard Sidej
- Ateliér: ZNAMENÍ ČTYŘ – ARCHITEKTI
- Země: Česká republika
- Realizace: 2015
- Město: Špindlerův Mlýn
- Datum projektu: 2006
- Realizace: 2015