Architektura / občanské stavby

Nejlepší diplomovou práci roku 2018 vypracoval podle ČKA Igor Machata z UMPRUM

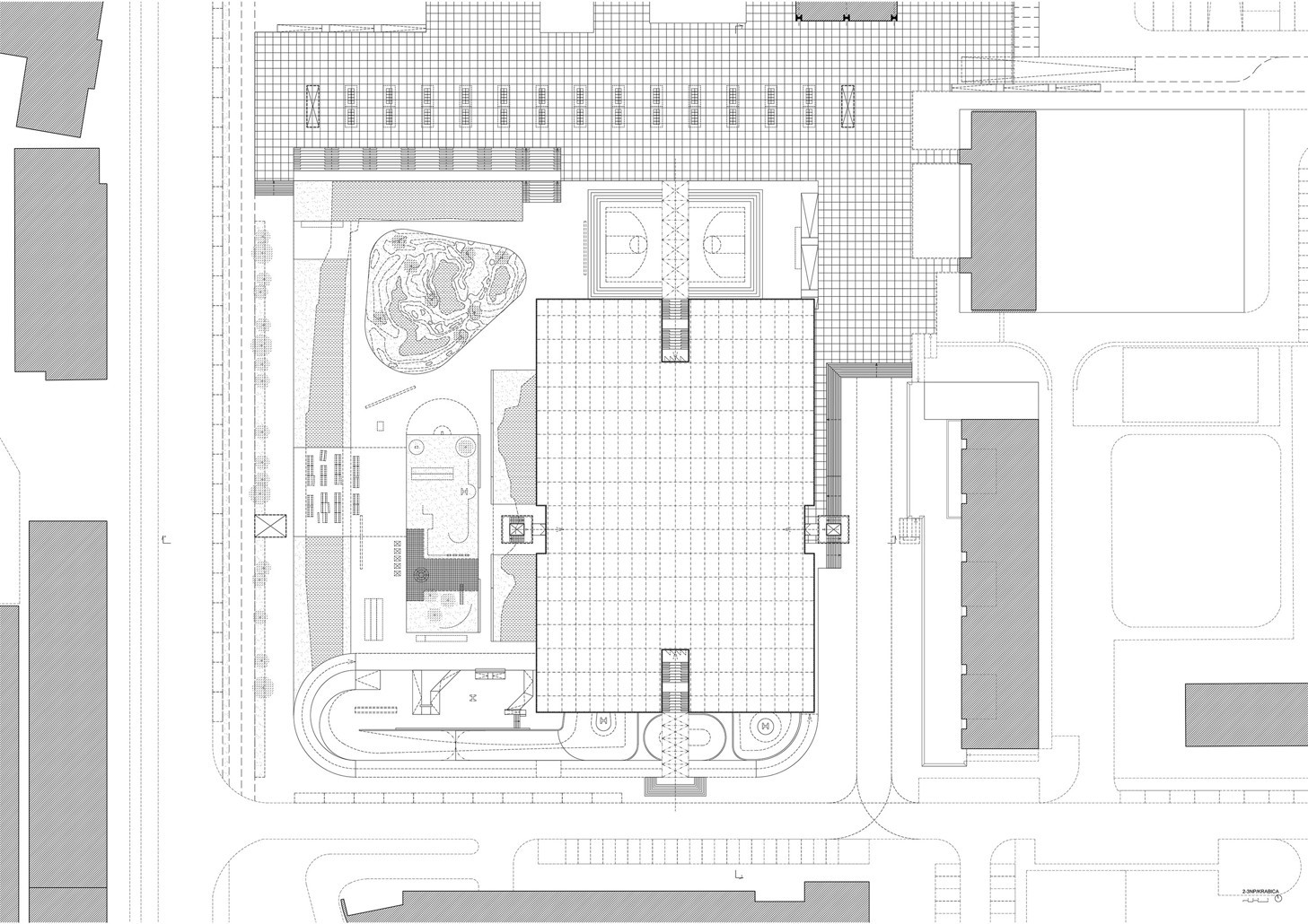
Česká komora architektů pravidelně každým rokem pořádá soutěžní Přehlídku diplomových prací, které byly v daném roce úspěšně obhájeny absolventy vysokých škol a fakult poskytujících architektonické vzdělání. Vítězným projektem 19. ročníku soutěže se stala diplomová práce OKDR 2.0. Igora Machata z pražské UMPRUM. Ten pod vedením Ivana Kroupy a Jany Moravcové pracoval s hledáním nového potenciálu pro místo na pokraji naprosté degradace, které představuje sídlištní lokalita v Bratislavské části Ružinov. Zdejší ruině obchodního a kulturního domu nabízí autor pomocí přidání vrstev nový způsob využití, který by však zároveň respektoval současný charakter a původní kvality prostředí.

Igor Machata , 1. 11. 2018

  • autor: Igor Machata *
  • publikováno: * 1. 11. 2018
  • zdroj: * Autorská zpráva

Nabídky práce

Mohlo by vás zajímat

Generální partner
Hlavní partneři