Architektura / občanské stavby

Nevyužívanou uhelnu vysokoškolského areálu v Dejvicích proměnilo studio ov-a na studentský prostor

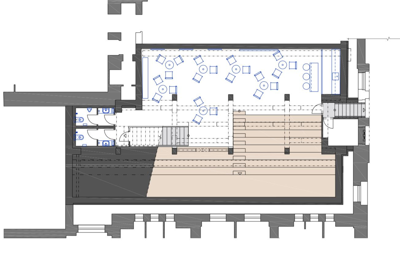
Ateliér ov-a zrekonstruoval více než třicet let nevyužívanou uhelnu stojící na dvoře Vysoké školy chemicko-technologické v pražských Dejvicích. Objekt z 30. let 20. století skrytý uprostřed Englova bloku vysokých škol má atmosféru románů Julese Verna. Místo uhlí se však dnes na šikmé výsypce přeměněné ve stupňovité hlediště pohybují studenti. Zrekonstruovaný prostor má iniciovat přednášky, setkávání a další neformální aktivity školy.

OVA , 19. 9. 2019

  • Autoři: Jiří Opočenský, Štěpán Valouch
  • Ateliér: OVA
  • Spolupráce: Romana Bedrunková
  • Země: Česká republika
  • Realizace: 2019
  • Město: Praha 6 - Dejvice
  • Ulice, číslo: Technická, 5
  • PSČ: 16000
  • Datum projektu: 2015
  • Realizace: 2019
  • Užitná plocha: 222.00m2
  • Zastavěná plocha: 225.00m2
  • Hlavní inženýři projektu: Stavaři, s.r.o.
  • autor: OVA *
  • publikováno: * 19. 9. 2019
  • zdroj: * Autorská zpráva

Mohlo by vás zajímat

Generální partner
Hlavní partneři