Nový kulturní dům v Olšanech propojuje společenský sál s návsí
Architekti ze studia Laplan postavili v drobné obci na Brněnsku nový kulturní dům, který nahradil zchátralou hospodu. V novostavbě navazující svým archetypálním tvaroslovím na místní architekturu se nachází kromě společenského sálu také restaurace.
EARCH.CZ , 26. 10. 2021 / Advertorial
Místo s filmovou historií
Obec Olšany, ležící asi 25 kilometrů severovýchodně od Brna, se proslavila zejména slavným filmem Věry Chytilové Dědictví aneb Kurvahošigutntág. Děj kultovního snímku se odehrával i v místní hospodě, která však v posledních letech výrazně chátrala. Obec se proto rozhodla objekt odkoupit a na místě vybudovat nový kulturní dům, v němž se bude nacházet jak společenský sál s jevištěm, tak restaurace.

Náves jako centrum kultury
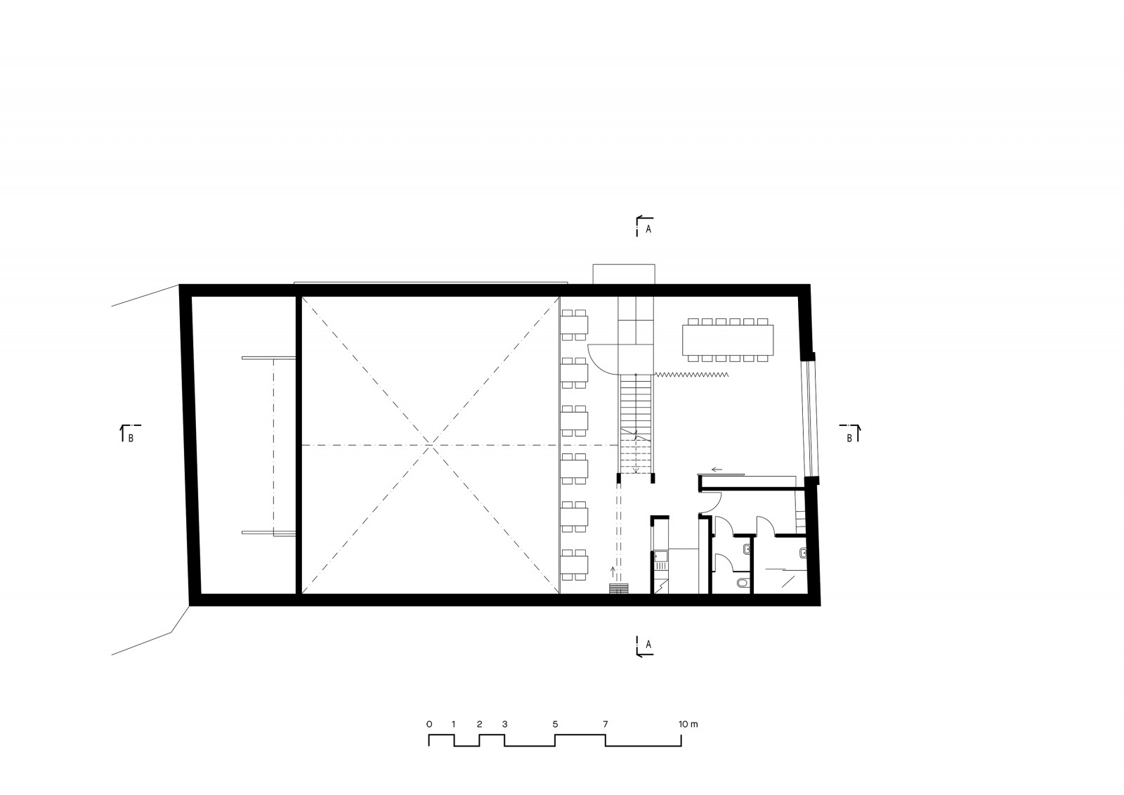
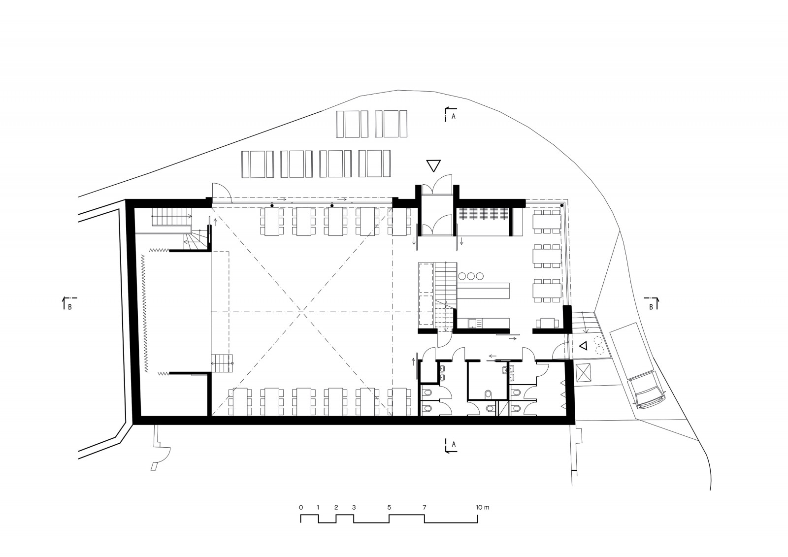
Parcela po staré hospodě vyloženě vybízela k realizaci nového kulturního domu, nachází se totiž v samotném centru návsi. Společenský sál byl dokonce i v původní hospodě. Architekti z brněnského studia Laplan, kteří se projektu ujali, tak z požadavku obce navázali na poslání původní budovy.
K tradici místní venkovské architektury odkazuje zejména archetypální tvarosloví novostavby. Jednoduchý kubický objem na obdélníkovém půdoryse završený sedlovou střechou skvěle zapadl mezi okolní rodinné domky s podobnými rysy.

Propustná hranice
Architekti mysleli zejména na přirozené propojení kulturního domu s návsí. Hlavní vstup proto umístili do jejího čela a akcentovali ho výrazným kamenným ostěním, které vystupuje z hladké bílé fasády.

Díky velkoplošnému zasklení v hliníkových rámech Aluprof je možné společenský sál bezprostředně propojit s exteriérem. Jediným dělícím prvkem je totiž francouzské okno. Jelikož se úroveň podlahy sálu přizpůsobuje vydlážděnému předprostoru, je pohyb mezi nimi zcela plynulý.
Restaurace zůstává v kontaktu s venkovním děním díky velké prosklené ploše přetažené až přes roh.

Chlouba obce
Obec si kladla za cíl učinit společenský sál s jevištěm skutečnou chloubu místních obyvatel. Interiér se nese ve znamení kvalitních materiálů, hlavní roli získalo dřevo a kov, který svou tmavou povrchovou úpravou kontrastuje s teplými tóny parket. Vizuální dominantou sálu je otevřený krov se zavěšenou galerií s posezením.

Restaurace se naopak dočkala zejména funkčního a ekonomického vybavení. Dřevěný mobiliář a bar doplňují industriální kovové prvky laděné do stejného odstínu jako ve společenském sále.
Olšany na Brněnsku získaly díky architektům ze studia Laplan kulturní dům, který podporuje konání společenských aktivit a navrací návsi původní funkci centra obce.

- Ateliér: Laplan
- Autoři: Jan Kokeš
- Město: Olšany
- Datum projektu: 2017
- Realizace: 2019
- Užitná plocha: 540 m2
- Zastavěná plocha: 320 m2