Nový multifunkční obecní dům v Ďáblicích od A.LT architekti rozdělují vnitřní atria
Na podzim minulého roku se radnice malé pražské části Ďáblice přesunula do nové stavby od ateliéru A.LT architekti, který s návrhem multifunkčního obecního domu vyhrál vyzvanou architektonickou soutěž z roku 2012. Jednopodlažní budova s bílou reflexní fasádou v sobě zahrnuje kromě sídla radnice také společenský sál, poštu i ordinaci lékařů.
EARCH.CZ , 10. 1. 2019
Radnice malé tříapůltisícové městské části Praha-Ďáblice dříve sídlila ve vile v okrajové rezidenční zástavbě. Vedení městské části na severu Prahy se proto rozhodlo namísto rekonstrukce vily investovat do novostavby v místě nově vznikajícího centra Ďáblic. Z toho důvodu došlo v roce 2012 k vypsání vyzvané architektonické soutěže na nové sídlo radnice, ve které zvítězilo pražské studio A.LT architekti.
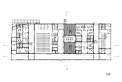
Na místě bývalého kina architekti navrhli bezbariérový jednopodlažní objekt rozdělený otevřenými atrii do čtyř částí. Nejedná se totiž o klasickou „monofunkční“ radnici, ale o multifunkční objekt, který kromě sídla představitelů městské části nabízí další občanskou vybavenost. Své místo v nové budově našel také společenský sál, pošta i ordinace.
„Jednoduchý přízemní dům není monumentem, ale spíše instrumentem pro obyvatele všech věkových kategorií. Podstatou řešení proto byla maximální otevřenost a transparentnost a také dostatečný přísun přirozeného světla a vzduchu,“ komentují návrh autoři.
Všechny čtyři části budovy propojuje krytý vestibul v podobě určitého podloubí, který může sloužit také jako rozšíření sálu při společenských akcích nebo jako výstavní prostor. Světlému interiéru dominuje odhalená konstrukce ze světlého dřeva. Díky venkovním pobytovým prostorům mezi jednotlivými částmi domu a velkým oknům se návštěvníkům také otevírají průhledy celým objektem.
Základní nosnou konstrukci stavby tvoří masivní dřevěný skelet v modulu 4 krát 4 metry. Čelní bílé fasády mírně svažité jednopodlažní budovy pokrývá stříbrný reflexní potisk s geometrickým vzorem, který má podle architektů sloužit pro „větší identifikaci občanů s ‚abstraktní krabicí‘”.
- Ateliér: A.LT Architekti
- Autoři: Peter Lacko, Filip Tittelbach
- Spolupráce: Tomáš Balej, Lenka Dvořáková
- Země: Česká republika
- Město: Praha 8 - Ďáblice
- Ulice, číslo: Osinalická, 1104/13
- PSČ: 18000
- Suma: 62 000 000.00
- Měna: CZK
- Datum projektu: 2013
- Realizace: 2018
- Zastavěná plocha: 1 685.00m2
- Grafika: Barbora Zachovalová


