Obecní dům na Brněnsku chce splynout s prostředím vesnice. Je tradiční i architektonicky aktuální
Tři archetypální stavby propojené dlážděným nádvořím suplují v malé jihomoravské vesnici chybějící náves. Jedná se o budovu obecního domu, který svým architektonickým i urbanistickým pojetím navazuje na charakter místní zástavby.
Adéla Vaculíková , 29. 9. 2022
Nový obecní dům ve Skaličce u Tišnova na sebe vzal kromě úlohy společenské a úřední také tu urbanistickou. V malé vesnici ležící severně od Brna totiž chybí náves, která by fungovala jako přirozené místo pro shromažďování. „Vedení obce se rozhodlo k vybudování chybějícího zázemí pro komunitní život poté, co přestala fungovat stará hospoda. Obecní dům pak nahradil původní stavbu nejen svou funkcí, ale i fyzicky. Z objektu v nevyhovujícím technickém stavu zůstal zachován jen malý kamenný sklep ve svahu a na uvolněném místě byl postaven areál obecního domu,“ popisuje situaci architektka Soňa Urbánková.
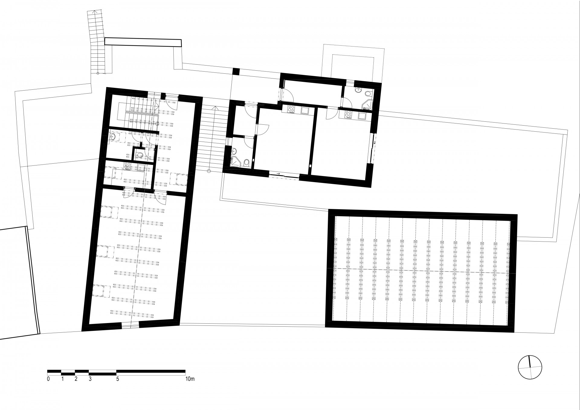
Pro Skaličku u Tišnova je typická roztroušená zástavba rozesetá okolo hlavní cesty. Jedná se především o původní statky se stodolami. Když Soňa Urbánková nový obecní dům navrhovala, bylo jejím cílem respektovat charakter vesnice a organicky do ní novou stavbu začlenit. Obecní dům funguje jako zázemí pro úřad, obsahuje ale i společenský sál nebo klubovnu. Hmotově je rozdělen na tři samostatné objekty s bílými fasádami a červenými sedlovými střechami.
Více k tématu
„Seskupení tří těles zapadá do urbanistické struktury vesnice a rozšiřuje veřejný prostor o drobné nádvoří, z něhož je po schodech volně přístupná obecní zahrada ve svahu nad domem,“ popisuje autorka. Všechny hmoty jsou vzájemně propojené vydlážděnými plochami, některé případně i přízemními plochostropými přístavbami, které záměrně zůstávají vizuálně neexponované.
Společenský sál, který pojme až 100 lidí, se skrze francouzská okna propojuje s dlážděným nádvořím. Do objektu je dokonce integrovaná i autobusová zastávka – zakousává se přímo do západního „domku“. Do zahrady ve svahu se zase dá vystoupat po betonovém schodišti.

Střídmé archetypální hmoty obohacují především masivní ocelové okenice s rezavou patinou. „Výrazné cortenové okenice jsou soudobým doplněním jinak tradičního vyznění, které zůstává uchopitelné pro společenství místních občanů,“ dodává Soňa Urbánková na závěr. Obecní dům ve Skaličce u Tišnova se svou citlivou, ale přesto zajímavou formou dokázal do obce začlenit podobně nenásilně, jako budova městského úřadu v Leopoldově od studia Zerozero.

- Autoři: Soňa Urbánková
- Země: Česká republika
- Projekt: 2017
- Realizace: 2020-2021
- Město: Skalička u Tišnova