
Nový městský úřad od Zerozero se stal zářící dominantou slovenského městečka
Úřad, knihovna a společenské prostory. To vše nabízí nový areál městského úřadu v malém městě na západě Slovenska. Potkávají se zde různě staré stavební vrstvy a střídmé formy, výsledek ovšem nenápadný rozhodně není.
Adéla Vaculíková , 6. 9. 2022
Městský úřad a knihovna v Leopoldově na západním Slovensku vstoupil do velmi nepřehledné a „neměstské“ situace. Nový život tomuto místu vdechlo studio Zerozero, které navrhlo novou dominantu města a zároveň napravilo urbanistický problém. Dnes se zde nachází prostor pro setkávání, který slouží všem čtyřem tisícům místních obyvatel.
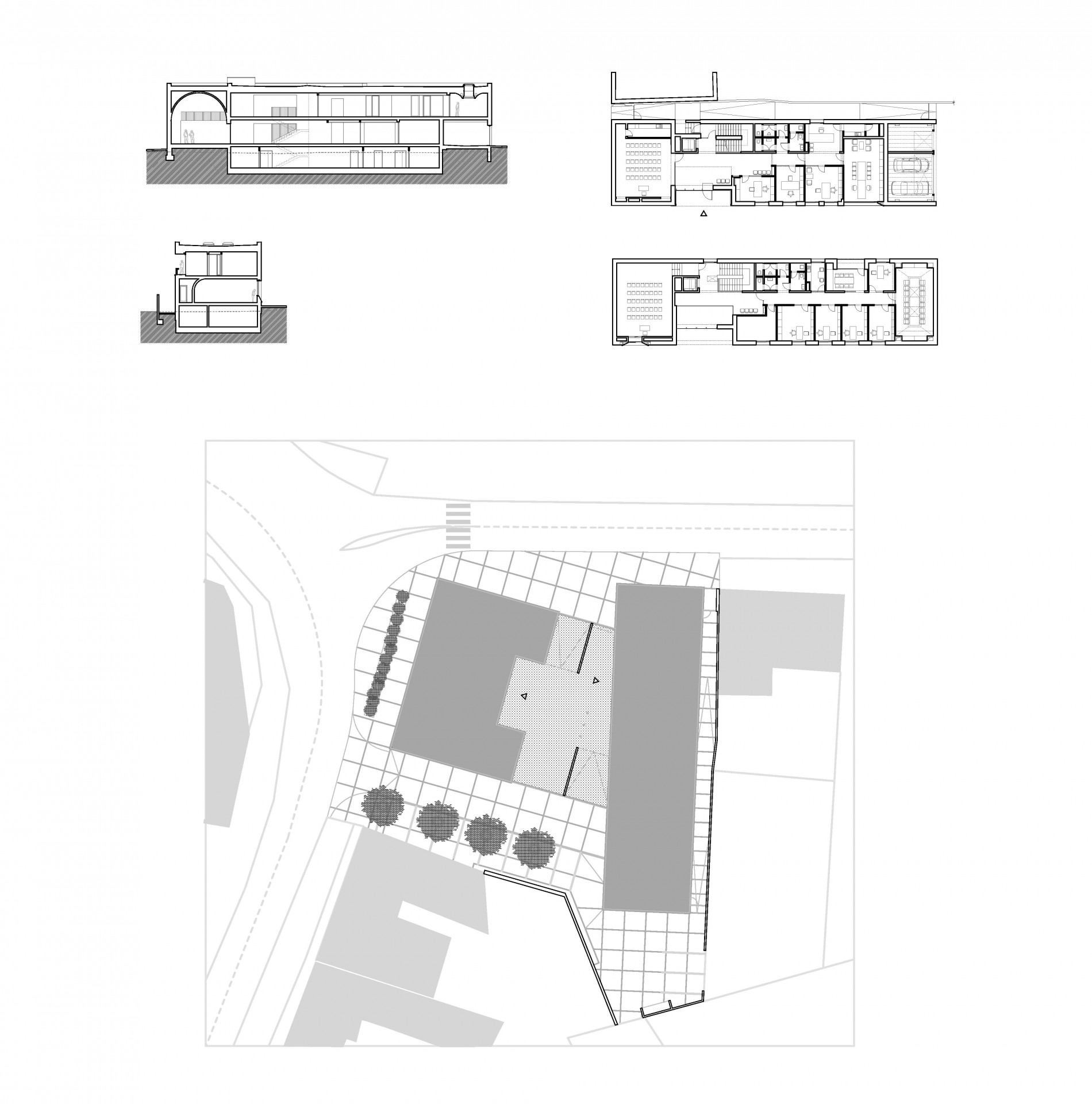
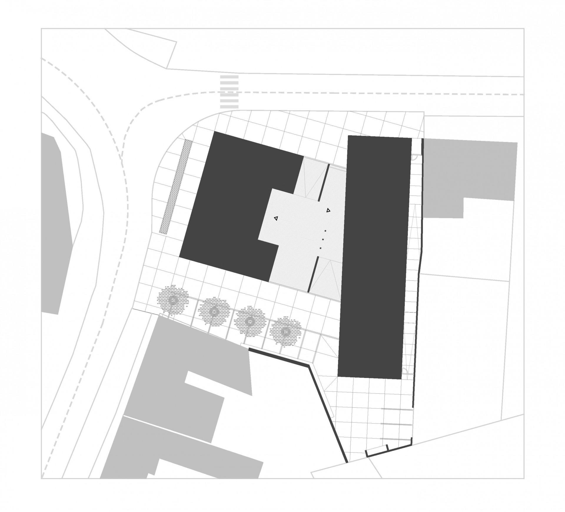
„Městský úřad tedy není jen jedna budova, ale je to ‚místo‘ v rámci města,“ začínají své povídání o novém městském úřadě architekti. Na parcele v centru města najdeme hned dvě stavby. Jedna na místě stojí už od konce minulého století, druhá je úplně nová. V původní budově se dnes nachází knihovna s kavárnou, v novostavbě zase prostory městského úřadu. Stavby se ovšem k sobě natáčí tak, že jsou neustále provázané. „Takto vytvořené zvednuté nádvoří je místem setkávání a komunikace, místem, kde se mohou odehrávat společenské a kulturní události,“ říkají architekti Irakli Eristavi, Pavol Šilla a Juraj Červený, kteří se svým návrhem na městský úřad zvítězili v architektonické soutěži vypsané městem.
Více k tématu
Areál městského úřadu v Leopoldově v sobě nese mnoho symbolických odkazů a ke svému okolí se snaží chovat ohleduplně. Z jednoho pohledu jsou stavby vlastně úplně obyčejnými domy, z druhého naopak reprezentativními dominantami obce. Původní budova se sedlovou střechou se zas tak moc nezměnila, alespoň hmotově ne. Architekti se rozhodli pouze podtrhnout její existující kvality. Barevně a materiálově ji zcela přizpůsobili podlouhlé novostavbě, která se táhne podél sousedních řadových domů. Vnitřní struktura dvoupodlažní novostavby městského úřadu se propisuje i navenek. Za stěnou se skleněnými hodinami se nachází převýšený společenský sál. Zbytek budovy vyplňují nutné provozy – nejdůležitější je samozřejmě zasedací místnost a kancelář starosty.

Společenský sál je skutečně majestátní, završuje ho železobetonová valená klenba, kterou zdobí pravidelně rozmístěná kruhová světla. Motiv ideálního a zároveň efektního nasvětlení prostoru se propisuje do všech místností budovy. V zasedací místnosti je to například světlíkem nasvícený jednací stůl. Vstupní halu s hlavním schodištěm zase prosvětluje prosklená část fasády. Zvenčí jsou veškeré okenní otvory jemně zapuštěné, mají šikmě nakloněné parapety, stejně tvarované jsou i prosklené hodiny. „Jedním z východisek architektonického konceptu je tedy dialog původní a nové architektonické vrstvy,“ vysvětlují architekti. Vedle toho zde ovšem objevují i dialogy materiálů a množství formálních znaků.

Architekti ze studia Zerozero navrhli i podobu veřejného prostoru, který budovy městského úřadu a knihovny obklopuje. Aby vyhovoval konání nejrůznějších akcí a sloužil jako takové malé náměstí, nechali ho vydláždit a místy doplnili o stromy nebo záhon pro květiny. „V rámci celkového technického řešení jsme věnovali velkou pozornost environmentálním souvislostem, trvale udržitelná řešení vsakování dešťových vod a alternativní zdroje topení/chlazení jsou již dnes nezbytností. Veškerá dešťová voda ze střech a zpevněných ploch je odvedena do vsakovacích galerií, kde přirozeně vsakuje,“ vysvětlují architekti na závěr.
- Autoři: Irakli Eristavi, Pavol Šilla, Juraj Červený
- Ateliér: zerozero
- Země: Slovensko
- Plocha pozemku: 1229,37 m²
- Zastavěná plocha: 306,13 m² (rekonstruovaný objekt) 428,93 m² (novostavba)
- Užitná plocha: 266,52 m² (rekonstruovaný objekt) 845,67 m² (novostavba)
- Město: Leopoldov
- stavební řešení: Martin Ratkoš
- Statika: Vladimír Durbák
- Investor: Město Leopoldov
- Projekt: 2015-18
- Realizace: 2019-22
- Soutěž: 2014