
Pálavu zdobí nové vinařství. Marek Štěpán ho pojal jako vinařskou stodolu se zelenou střechou
Novou budovu vinařství Přátelé Pavlova v Pavlově ze všech stran obestupují vinice. Budova navržená Atelierem Štěpán v mnohém připomíná obyčejnou stodolu, přírodnímu charakteru svého okolí se přizpůsobuje mimo jiné svou zelenou střechou.
Adéla Vaculíková , 21. 11. 2022
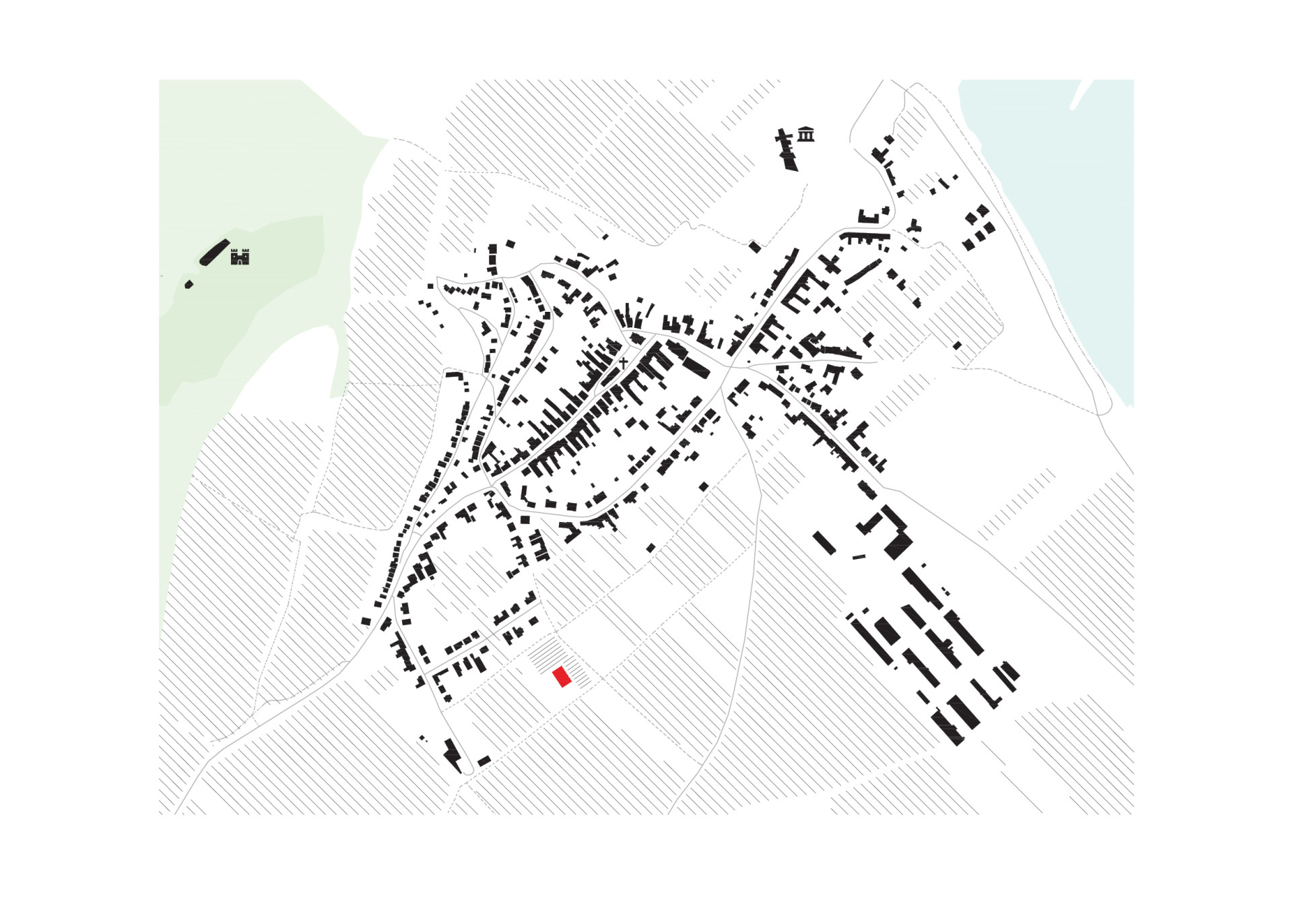
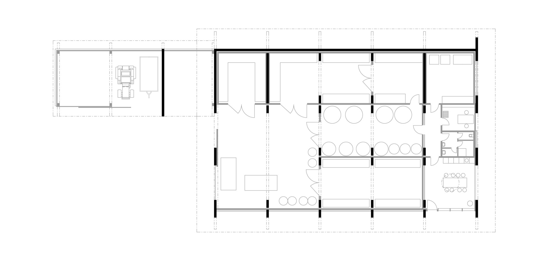
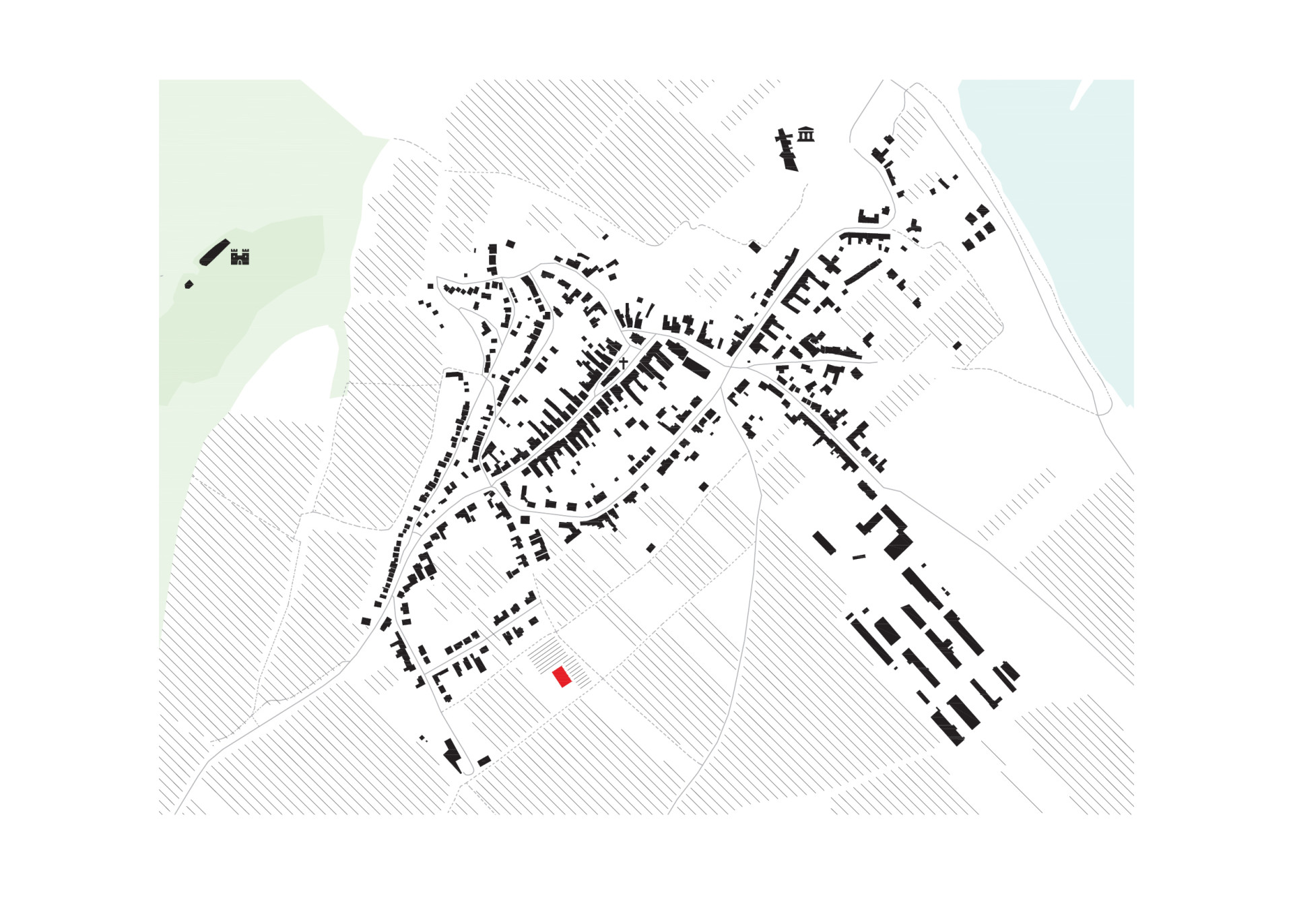
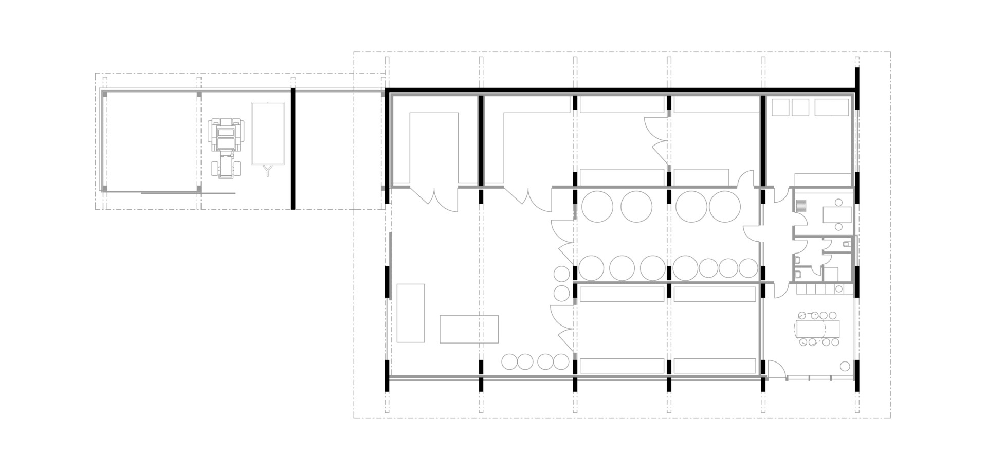
V Pavlově na jižní Moravě vyrostla novostavba vinařství podle návrhu brněnského Atelieru Štěpán. Nasedla do svahu Pálavských vrchů přímo mezi vinice, aby dobře sloužila pro výrobu a skladování vína. Kromě technických prostorů a skladů se v ní nachází také místnost pro degustaci.
Budovu si na okraji Pavlova nechalo postavit místní vinařství Přátelé Pavlova. Přátelská ke svému okolí měla být i novostavba – a to nejen symbolicky. „Budova je horizontální, klidná, plynulá, jako okolní vinice. Splývá s krajinou, zbytečně na sebe neupozorňuje,“ popisuje realizaci architekt Marek Štěpán a říká, že se pro ni inspiroval v architektuře klasických stodol.
Více k tématu
Cílem bylo na novostavbu použít co nejvíce lokálních materiálů, počtem jejich různých druhů ale měla zůstat střídmá. Nakonec je postavená převážně ze dvou materiálů − z litého železobetonu a dřeva. Z betonu jsou obvodové stěny, ze dřeva pak střešní konstrukce. „Tektonika domu se inspiruje antickým architrávem a kladím,“ dodává Marek Štěpán.
Novostavba vinařství se stejně jako celá obec Pavlov nachází v CHKO Pálava, vše proto muselo být provedeno v souladu s jejími pravidly. Stavba si záměrně drží nízký horizont, střecha je mírně nakloněna tak, aby co nejlépe kopírovala terén. Vše navíc umocňuje to, že je vegetační a při pohledu seshora zapadá do krajiny. Tato schopnost je ostatně pro lokalitu velmi důležitá, z kopců, které se nad Pavlovem tyčí, se totiž na obec otevírá široký výhled.

Z okolní přírody a výhledů na ni ostatně těží i samotná novostavba vinařství. Okna z degustační místnosti směřují ke zřícenině hradu Děvičky, z dalších míst je zase vidět na vodní nádrž Nové Mlýny. „Budova je navržena s využitím přírodních vlivů (stínění, přesahy střech, převaha přirozeného větrání, materiálové členění, zasazení do terénu, retence vody), doplněných zdrojem tepla a chladu. Dá se říci selsko-ekologicky, tedy se zvážením souvztažností moderních technologií a starých principů,“ říká Marek Štěpán.

Vinařství Přátelé Pavlova je v pořadí již nekolikátou současnou stavbou, která v malé jihomoravské obci vznikla. Za návštěvu zde nepochybně stojí Archeopark Pavlov od Architektonické kanceláře Radko Květ nebo před rokem dokončený wine bar Reisten od studia ORA.
- Autoři: Marek Štěpán
- Ateliér: Ateliér Štěpán
- Země: Česká republika
- Město: Pavlov
- Adresa:: Slunný vrch 333, 692 01 Pavlov
- Projekt: 2019
- Realizace: 2021
- Zastavěná plocha: 720 m²
- Plocha pozemku: 6500 m²
- Investor: Přátelé Pavlova
- Náklady: 40 mil. CZK