
Architektura
/
interiér
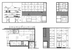
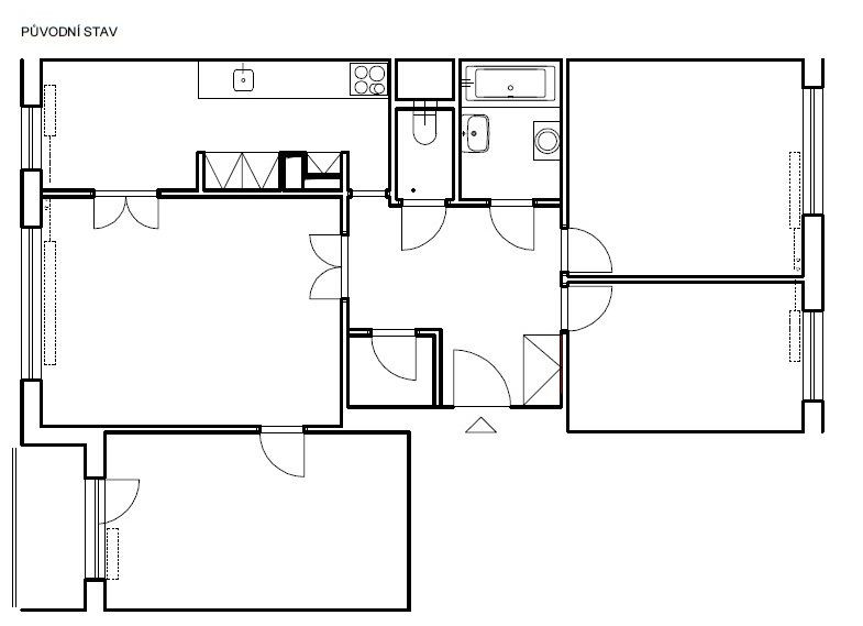
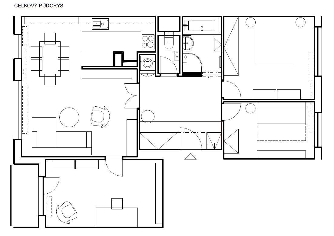
Panelákový byt ovládl po rekonstrukci přírodní korek
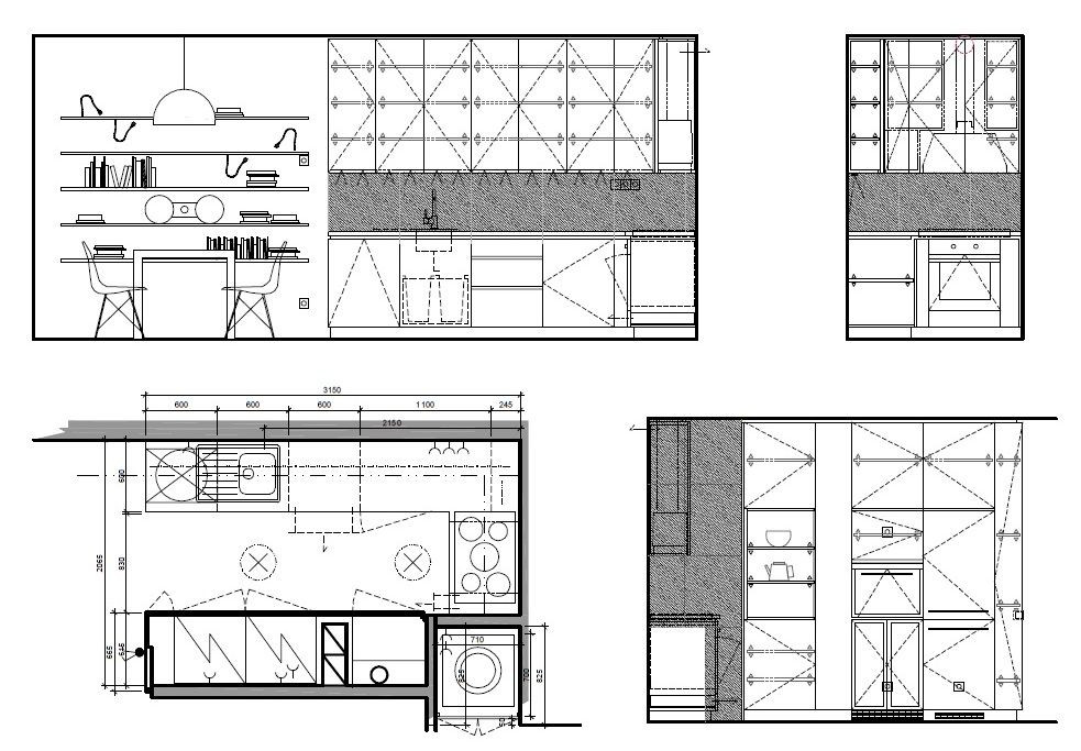
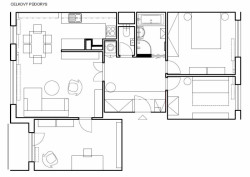
Architektonické studio Formafatal zrekonstruovalo byt v panelovém domě v pražských Kobylisích. Klient si přál maximální využití přírodního korku - najdeme jej tak nejen na podlaze, ale i na mnoha atypických doplňcích.
Formafatal , 14. 3. 2018
- Autoři: Katarína Varsová
- Ateliér: Formafatal
- Země: Česká republika
- Město: Praha
- Datum projektu: 2015
- Realizace: 2015
- Poznámka: Foto © BoysPlayNice