Architektura
                                                /
                                                    občanské stavby
                                            
					
			Pavel Chládek navrhl malířský ateliér otevřený do zahrady
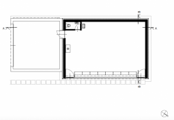
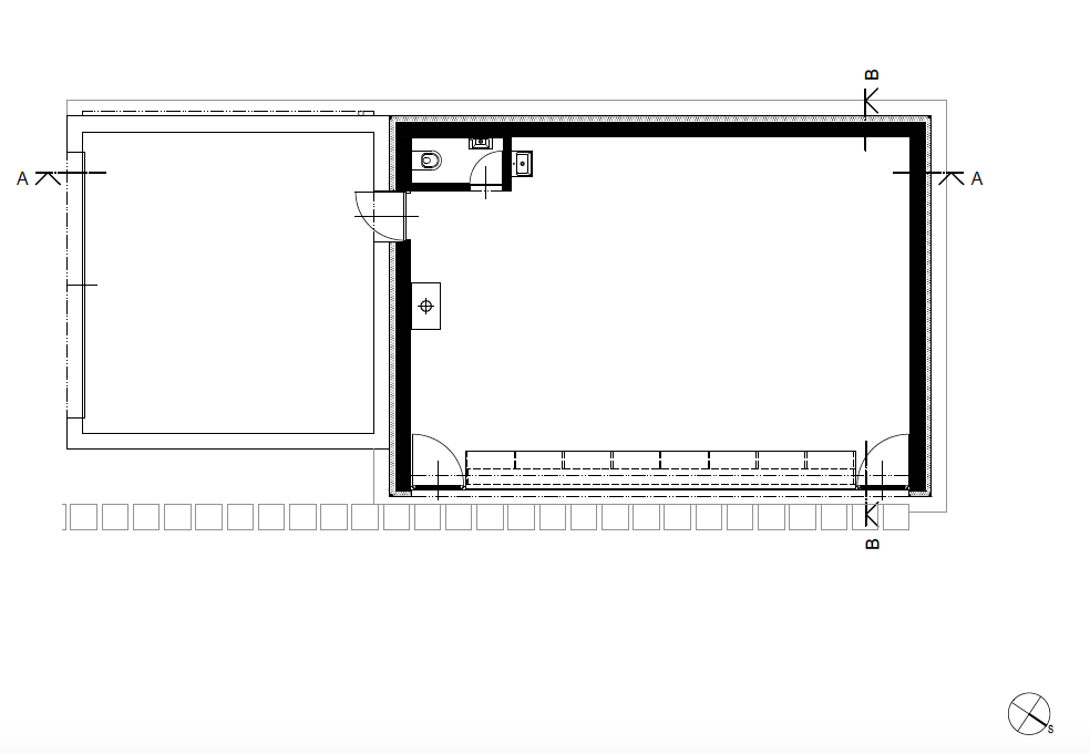
Malířský ateliér vznikl jako přístavba ke garáži na zahradě rodinného domu. Na realizaci v městské části Ostrava-Zábřeh se pracovalo pět let a dokončena byla v roce 2015. Architekt Pavel Chládek postavil objekt otevřený do zahrady, kde je díky dvěma velkoformátovým proskleným plochám dostatek světla na práci.
Chládek Architekti , 18. 6. 2018
- Autoři: Pavel Chládek
 - Země: Česká republika
 - Realizace: 2015
 - Město: Ostrava - Zábřeh
 - Ulice, číslo: Chalupníkova 655/16
 - Realizace: 2015