 
					
                    				
					
                                                    Architektura
                                                /
                                                    interiér
                                            
					
			Podkrovní byt z 50. let upravilo studio Kilo/Honč na míru pětičlenné rodiny
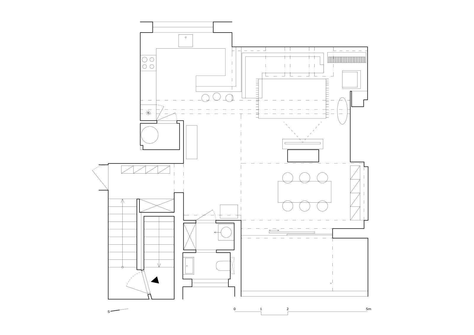
Podkrovní byt v jedné z nejstarších sídlištních čtvrtí Bratislavy prošel rozsáhlou rekonstrukcí pod taktovkou místního ateliéru Kilo/Honč. Původní nevyhovující dispozici architekti přizpůsobili potřebám pětičlenné rodiny, přičemž ji proměnili v logicky provázaný prostor, který místo klasických příček dělí funkční mobiliář.
Kilo / Honč , 9. 11. 2019
- Autoři: Richard Kilo, Matej Honč
- Země: Slovensko
- Město: Bratislava
- Realizace: 2019
- Užitná plocha: 67.00m2
 
                             
                             
                             
                             
                             
                                 
            
         
            
         
            
         
            
         
            
         
            
         
            
         
                             
                             
                             
                             
                             
                             
                             
                             
                             
                             
                             
                             
                             
    
	 
            		 
            		 
            		 
            		 
            		 
            		 
            		 
            		 
                     
            		 
            		 
            		 
            		 
            		 
                     
					 
                                                                                                             
                                                         
                                                         
                                                                                                             
                                                         
                                                         
				 
				 
				 
				 
				 
				 
				 
				 
				 
				 
				 
				 
				 
				 
				 
				 
				 
				