
Architektura
/
industriální a technické stavby
Posezení mezi tanky
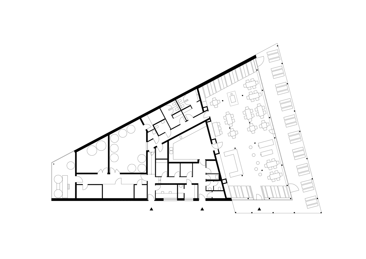
Technologické zázemí situované v nejužším cípu podlouhlé budovy Pivovaru Hostivar se otevírá do prostoru ulice na způsob automobilového showroomu, prodává se zde však něco úplně jiného… Na opačné straně lichoběžníkového půdorysu je vstup do restaurační části, kde konzumací piva vrcholí celý proces jeho výroby a distribuce.
ADR , 5. 10. 2016
- Autoři: Petr Kolář, Aleš Lapka
- Ateliér: ADR
- Spolupráce: Vendula Floderová, Josef Bobeš Novotný, Martin Šenberger
- Země: Česká republika
- Generální dodavatel: KONSIT a. s.
- Město: Praha 15 - Hostivař
- Ulice, číslo: Lochotínská 656
- PSČ: 109 00
- Datum projektu: 2010
- Realizace: 2013
- Užitná plocha: 511.00m2
- Zastavěná plocha: 702.00m2
- Foto ©: Iveta Kopicová