Architektura
/
rodinné domy
Přestavbou starého vinohradnického domu vytvořil ateliér VAN JARINA moderní dřevostavbu na kamenném suterénu
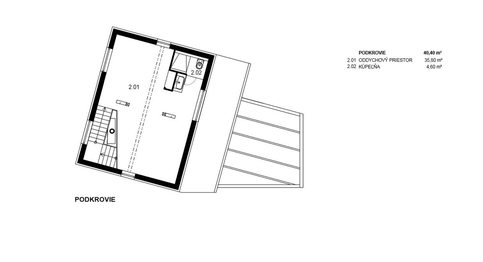
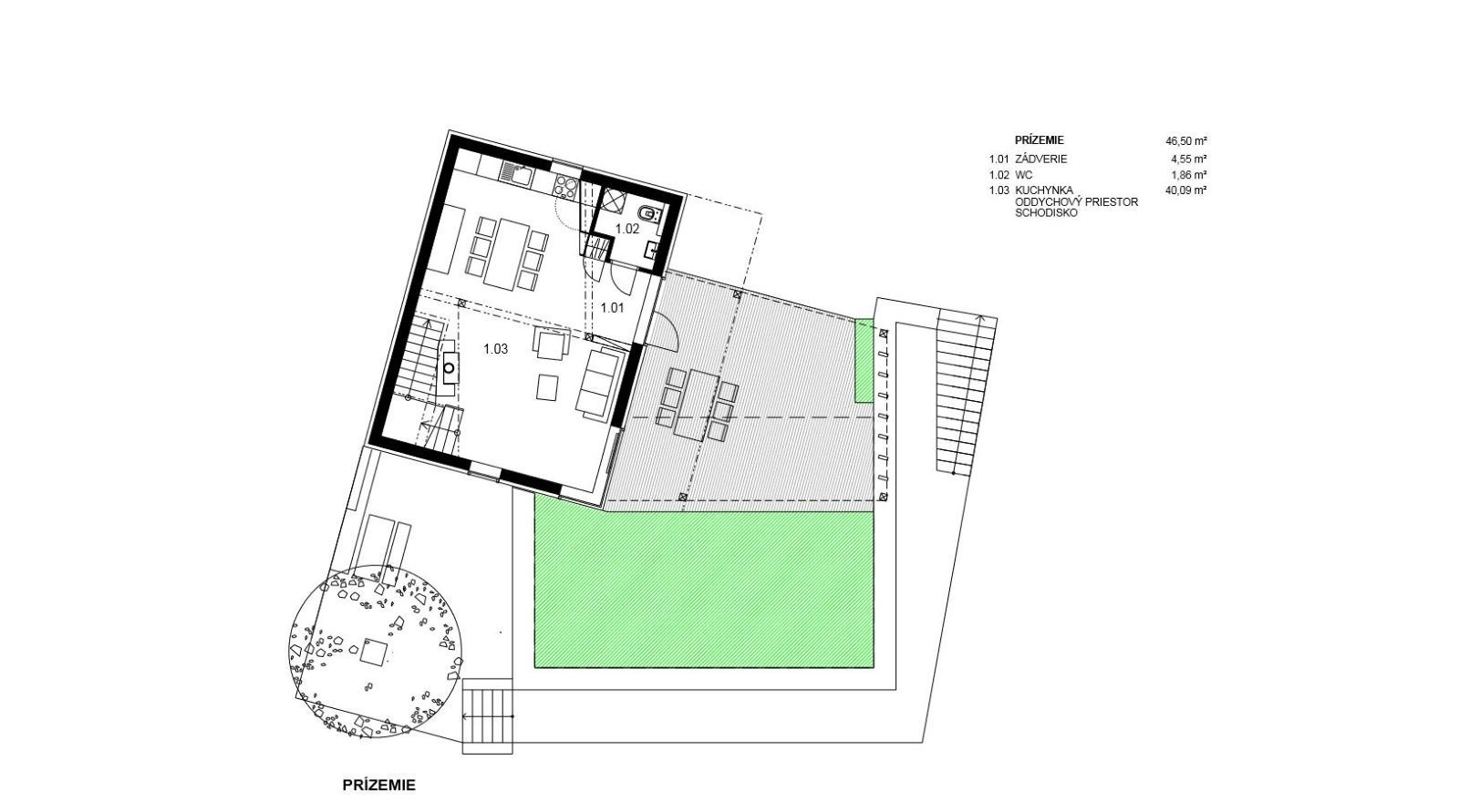
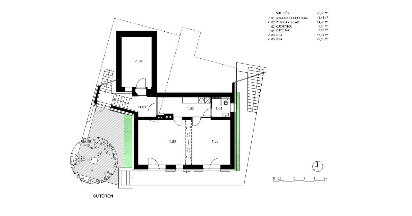
Slovenský ateliér VAN JARINA navrhl na vrchu Zobor nedaleko Nitry víkendový dům, pro který využil kamennou část původního vinohradnického objektu. V solidním kamenném suterénu se nacházejí dvě ložnice s přímým vstupem do zahrady, nad ním pak vznikla moderní dřevostavba s obkladem z cedrových šindelů.
atelier van jarina , 15. 8. 2019
- Ateliér: atelier van jarina
- Autoři: Ivan Jarina
- Spolupráce: Ján Škotta, Igor Šarocký, Štefan Šuster
- Země: Slovensko
- Město: Nitra
- Realizace: 2018
- Užitná plocha: 165.00m<sup>2</sup>
- Zastavěná plocha: 130.00m<sup>2</sup>