Architektura / bytové domy

Proluku blokové zástavby v Praze vyplnil terasovitý obytný dům

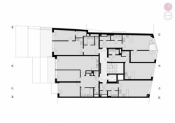
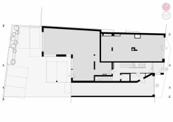
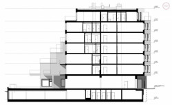
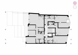
Novostavba bytového domu je situována v proluce starší blokové zástavby. Cílem architektů bylo nejen zacelit dříve neúplnou uliční frontu, ale zároveň vhodně reagovat na rozdílnou prostorovou konfiguraci navazujících objektů za použití terasovitě členěného dvorního průčelí.

ABM architekti , 15. 2. 2018

  • Autoři: Petr Bouřil, Jan Mužík, Tomáš Vlasák, Václav Petrus
  • Ateliér: ABM architekti
  • Země: Česká republika
  • Realizace: 2016
  • Generální dodavatel: SWIETELSKY stavební s.r.o.
  • Město: Praha 4 - Michle
  • Ulice, číslo: Nuselská 1564/126
  • PSČ: 140 00
  • Realizace: 2016
  • Užitná plocha: 2 774.00m2
  • Zastavěná plocha: 619.00m2
  • Plocha pozemku: 671.00m2
  • počet podlaží: 7 nadzemních, 1 podzemní
  • autor: ABM architekti *
  • publikováno: * 15. 2. 2018
  • zdroj: * Autorská zpráva

Klíčová slova:

bytový dům Nusle Praha proluka terasa

Mohlo by vás zajímat

Generální partner
Hlavní partneři