Prosklené stěny rodinného domu od architekta Klimeckého rámují daleké výhledy do krajiny
Cíl architekta Martina Klimeckého byl jasný – vizuálně i fyzicky maximálně propojit interiér rodinného domu s jeho přírodním okolím. Dům totiž stojí na svažitém pozemku, odkud se otevírají daleké výhledy do krajiny. Díky proskleným stěnám od podlahy ke stropu si mohou majitelé tyto scenérie užívat z pohodlí svého domova.
EARCH.CZ , 26. 10. 2020
Podřídit se výhledům
Olomouckého architekta Martina Klimeckého oslovil k návrhu rodinného domu klient, se kterým již v minulosti spolupracoval a díky tomu získal velkou důvěru. Investoři si přáli, aby byl dům v co nejužším kontaktu se svým přírodním okolím a nabízel nerušené výhledy do krajiny. Tomu se podřídil také samotný výběr pozemku – ten se nachází ve svahu nad malou obcí Heroltice nedaleko Brna.
Více k tématu

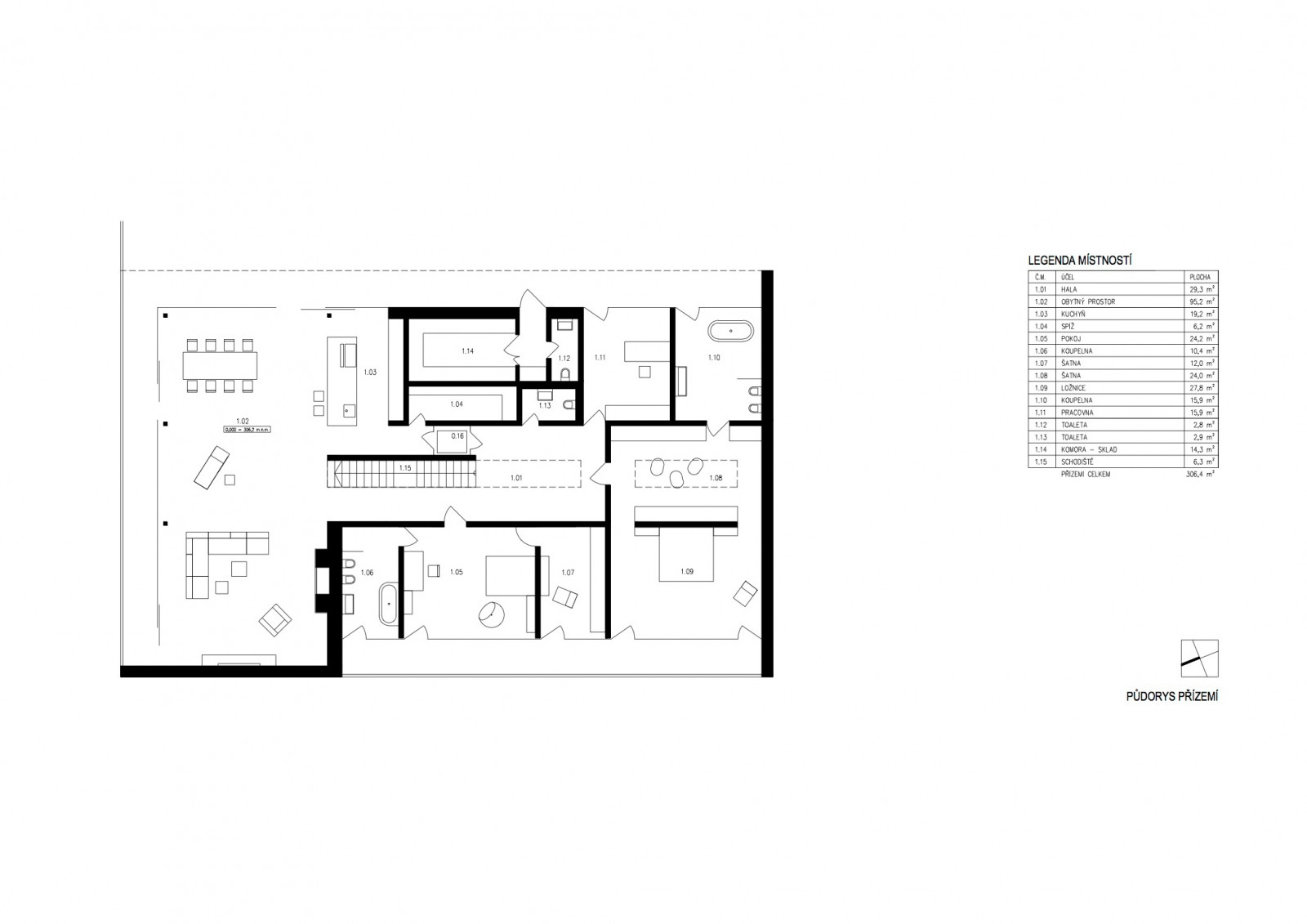
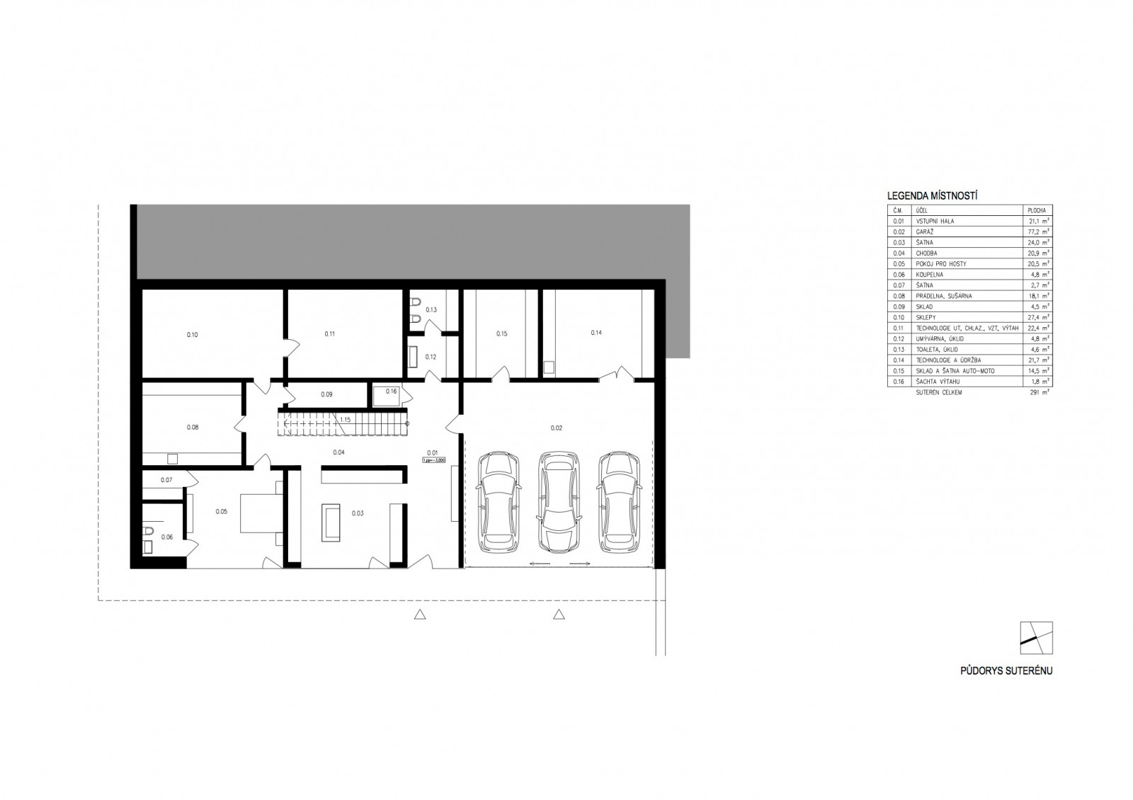
Aby se mohlo hlavní obytné patro otevřít do zahrady, nechal architekt veškeré zázemí domu včetně garáže a apartmá pro hosty umístit do suterénu s vazbou na ulici. Odtud pak stoupá schodiště a výtah do přízemí, které je v celé své horizontální rovině věnováno hlavnímu bytu majitelů. Prosvětlený interiér domu je řešen velmi jednoduše – bílé stěny doplňuje pohledový beton stropu a schodiště. Hlavní roli zde totiž hrají výhledy do okolí.

Ve vysokém standardu
Přízemí je vizuálně propojeno se zahradou díky celoproskleným stěnám od podlahy ke stropu, které umožňují také pohodlný přímý vstup na krytou terasu ze všech obytných místností domu. Pro rozměrná fixní a otvíravo-sklopná okna využil architekt systém Schüco AWS 75-SI. „Pro každou místnost je proto komponován jedinečný výhled, který architektura pouze rámuje. Nikdy nekončící, dynamická proměna přírody dům naplňuje,“ komentuje svůj návrh architekt.

V interiéru si pak můžeme všimnout dalších řešení ve vysokém standardu. Jde třeba o interiérové dveře na celou výšku místností se skrytou zárubní, povrchy z dubové dýhy nebo skleněnou mozaiku použitou pro obklad podlah, stěn i stropů koupelen. Podlahy obytných místností jsou pak tvořeny ručně hlazenými cementovými stěrkami. Dům je řešen jako tzv. inteligentní, elektronický systém řídí veškeré technologie v domě a umožňuje jejich ovládání z domu, či na dálku.

Aby dům se zahradou příliš nevystupovaly ze svého okolí, byla většina pozemku ponechána ve své přirozené svažitosti. Přírodnímu charakteru lokality odpovídají také sadové úpravy pozemku, který doplnily ovocné i okrasné stromy, keře a byliny. Většina plochy poměrně rozlehlého pozemku bude upravena jako pobytová louka. Povrch ploché střechy domu tvoří zároveň kombinace kameniva a extenzivní zeleně.
- Autoři: Martin Klimecký
- Země: Česká republika
- Město: Heroltice
- Datum projektu: 2015
- Realizace: 2019
- Užitná plocha: 597.00m2
- Zastavěná plocha: 437.00m2
- Plocha pozemku: 8 720.00m2
- Poznámka: Použitý systém Schüco AWS 75-SI
