Architektura / administrativní stavby

Prvorepubliková Villa Kovács se nadechla k druhému životu

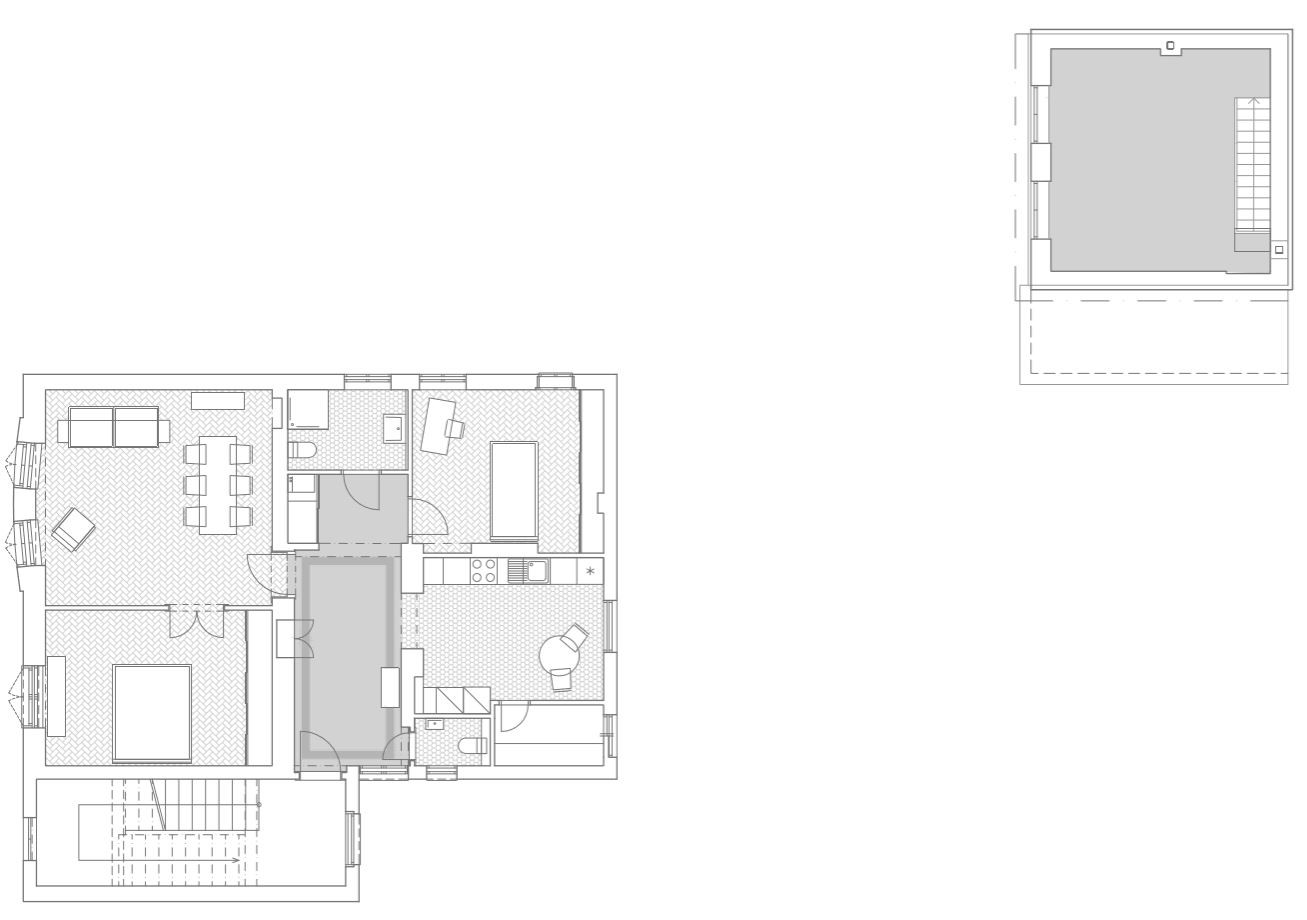
Prvorepubliková Villa Kovács v Piešťanech získala svou původní eleganci díky citlivým úpravám slovenských architektů Jaro Krobota a Iva Flimmela. Dům nese jméno po významném stavební podnikateli z Piešťan Alfrédu Kovacsovi, kvůli jeho židovskému původu se však firmy musel vzdát již roku 1941. Stavba dlouhá léta chátrala a tak si rekonstrukce vyžádala mnoho stavebních úprav. I přesto se architektům podařilo zachovat její původní charakter. Mnoho prvků prošlo proto repasí, jiné byly vyrobeny jako repliky původního vybavení.

Jaro Krobot / Ivo Flimmel , 7. 8. 2018

  • Autoři: Jaro Krobot, Ivo Flimmel
  • Země: Slovensko
  • Realizace: 2017
  • Město: Piešťany
  • Ulice, číslo: Kollárova ulica, 13, 15
  • Datum projektu: 2016
  • Realizace: 2017

Klíčová slova:

Jaro Krobot rekonstrukce Slovensko

Mohlo by vás zajímat

Generální partner
Hlavní partneři