Dříve se tu vyráběl len, teď se tu dělají desitláty. (Rekonstrukce přádelny v Kežmarku; BEEF Architekti)
Dříve se tu vyráběl len, teď se tu dělají desitláty. (Rekonstrukce přádelny v Kežmarku; BEEF Architekti) Foto: Jakub Čaprnka
Architektura / industriální a technické stavby

Tatranský čaj se vyrábí v bývalé textilní továrně, která prošla citlivou rekonstrukcí

Když se smíchá čaj, bylinky a destilát, vznikne oblíbený nápoj tatranský čaj. Dělá se v přestavěné továrně na výrobu lnu ve slovenském Kežmarku, Vysokým Tatrám nadohled.

Karolína Vránková , 23. 1. 2026

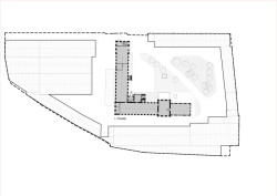
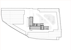
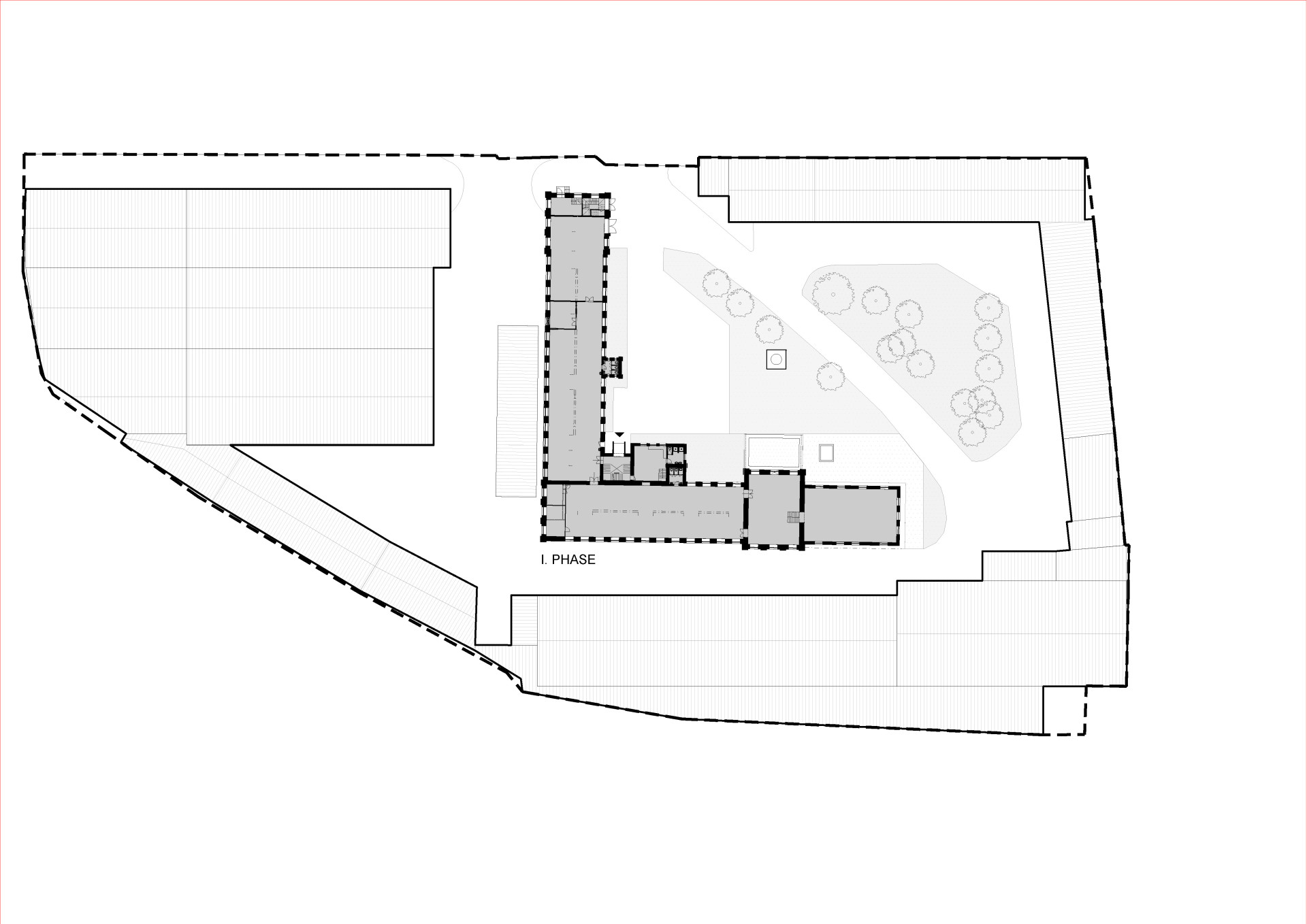
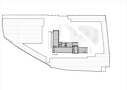
Na okraji města Kežmarok se nachází průmyslová zóna s moderními krabicemi hal a skladů. Tamní asi nejznámější firma Karloff, výrobce tatranského likéru Tatra Tea a dalších destilátů, však sídlí o kousek dál v mnohem zajímavějším prostředí. Pro svou výrobu přestavěli národní kulturní památku, bývalou textilní továrnu z roku 1860. Architekti měli navrhnout její transformaci na výrobu desitlátů. Majitelé si dokonce uspořádali architektonickou soutěž, z níž vyšlo vítězně studio BEEF.

Foto: Zachovala se řada původníc prvků, mezi nimi i komín.

„Když areál přešel do rukou současného investora, nacházel se v havarijním stavu. Pod budovou protéká potok a některé části jsou založeny na dřevěných pilotách, které se postupně rozkládaly. Vlhkost a opakované zatékání poškodily zdivo, podlahy i stropy. Bylo proto nezbytné provést rozsáhlé sanační a statické zásahy,“ říkají architekti.

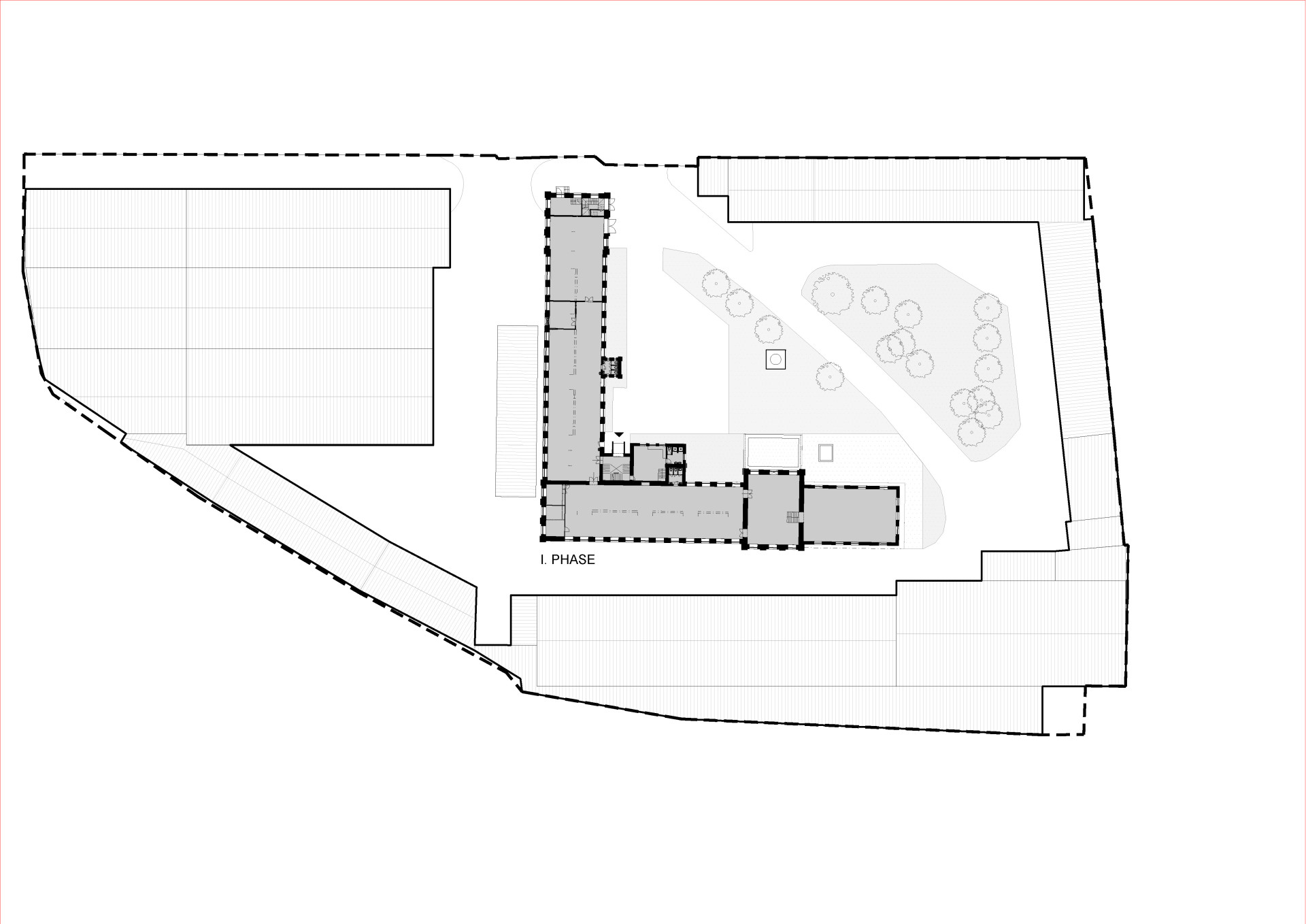
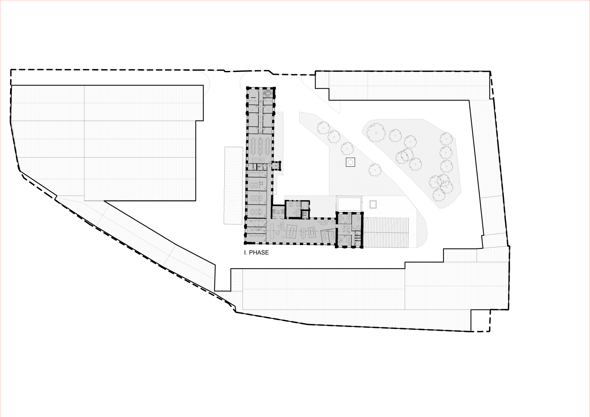
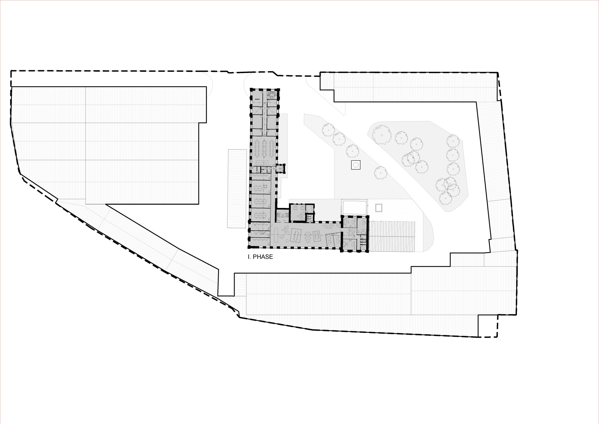
Bylo potřeba stávající budovy sanovat a také vymyslet vhodné prostorové řešení – do bývalé továrny na len bylo třeba umístit výrobu destilátů, administrativu, obchod a ubytování. V další fázi tu majitelé plánují vytvořit ještě návštěvnické centrum a malé muzeum Karla Weina, který tu se zpracováním lnu začal a založil dlouhou tradici. Len se tu tkal až do roku 2011, kdy produkce lněných tkanin definitivně skončila.

Foto: Uvnitř továrny

Jelikož se jedná o památku a úpravy probíhaly pod dohledem památkářů, architekti i investoři se snažili zachovat co nejvíce původních prvků – najdeme tu třeba litinové sloupy nebo železné stylizované květy lnu na fasádě.

Podle časopisu ASB stála obnova 3 miliony eur. Citovali ministryni hospodářství Denisu Sakovou, která továrnu navštívila a majitele Karloffu ocenila: „Mohli klidně pracovat v polyfunkčních současných budovách, ale místo toho investovali do rekonstrukce památky,“ řekla. Podpořili tím nejen svoji výrobu, ale i cestovní ruch a identitu místa.

  • Autoři: Rado Buzinkay, Andrej Ferenčík
  • Ateliér: BEEF ARCHITEKTI
  • Spolupráce: Lukáš Valenčin
  • Země: Slovensko
  • Realizace: 1. fáze 2022–2024, 2. fáze 2025-2026
  • Město: Kežmarok
  • Užitná plocha: 4 622 m²
  • Plocha pozemku: 12 199 m²
  • Fotograf: Jakub Čaprnka
  • Realizace: 1. fáze 2022–2024, 2. fáze 2025-2026
  • Investor: Karloff

Mohlo by vás zajímat

Generální partner
Hlavní partneři