Architektura / bytové domy

Recyklace na druhou. Přestavba historické stodoly na šest domů

Na místě původního hospodářského stavení ve starobylé vesnici nedaleko Milána vznikl nový projekt se šesti řadovými domy. Od předchozí budovy se ovšem liší jen minimálně – inspiroval se totiž jak v umístění na pozemku, tak i ve velikosti a tvaru. Architekti dokonce využili i materiál ruiny.

EARCH.CZ , 12. 6. 2017

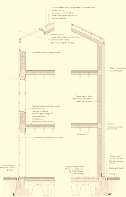
Projekt se nachází na okraji starobylé vesnice, která se postupem času stala součástí předměstí Sesto San Giovanni u Milána. Záměrem architektů byl, aby některé části materiálu původní stavby, masivní cihly stěn a porfyrických podlah, získaly nový život – jako součást „historické“ ulity, uzavírající novou budovu. Rozdrcený materiál má tloušťku několika centimetrů a na místě ho drží kovová síť z corten oceli. Je rovnoměrně rozložen na stropech i stěnách, čímž vytváří jakousi „starou“ estetiku novostavby, a to i přes radikální transformaci, kterou budova prošla. Výsledkem je jednoduchá geometrie a plynulost přechodů mezi fasádou, střechou, stěny i otvory – originální tvar předchozí stodoly.

Recyklované materiály (cihla, dlažební kostky) se doplňují s měděnými pruhy různých délek, což zajišťuje kontinuitu mezi fasádou a střechou. Všechny stavební otvory všech šesti spojených jednotek jsou pokryty měděnými pásy. Otvory tak neohrožují integritu a pevnost budovy a jsou ukryty pod mechanicky otevíratelnými okenicemi, které slouží jako ochrana před sluncem a deštěm. Speciální konstrukční technika umožnila odstranění obvyklých stavebních prvků, jako jsou kanály, svody, okenní parapety, lišty a žaluzie - což umožňuje jednoduchou konstrukci a čisté linie a zjednodušuje údržbu schránku budovy.

  • autor: EARCH.CZ *
  • publikováno: * 12. 6. 2017
  • zdroj: * Copper Concept

Mohlo by vás zajímat

Generální partner
Hlavní partneři