Rekonstrukce pražského bytu z gruntu. Dispozice se točí kolem nového dřevěného jádra s mnoha funkcemi
Pražskému bytu v domě ze 40. let nově dominuje dřevěné jádro. Funguje jako technická místnost i úložný prostor a lze do něj zasunout také průsvitné příčky z polykarbonátu.
Adéla Vaculíková , 22. 3. 2023
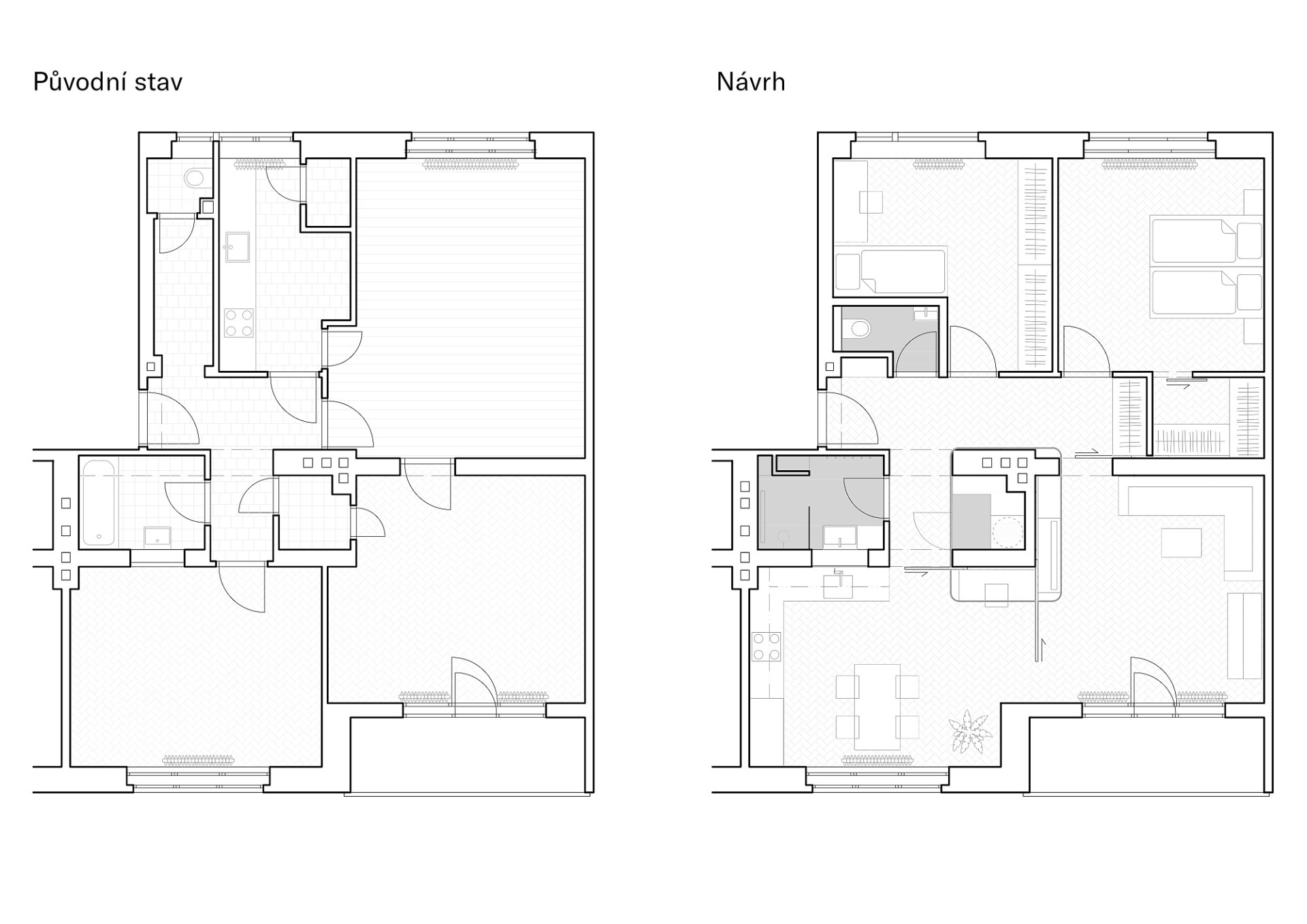
Rekonstrukce bytu v pražském Bubenči se nesla ve znamení celkového přeorganizování prostoru. Došlo i k zásadním stavebním úpravám, které autoři z ateliéru Papundekl architekti konzultovali se statikem. „Původní dispozice bytu se vyznačovala krkolomně uspořádaným zázemím. Přáním klientů bylo otočit dispozici tak, aby se obývací pokoj s kuchyní dostal na slunečnou jižní stranu, kde jsou okna do veřejného vnitrobloku, a pokoje na klidnější severní stranu,“ popisují situaci architekti Jan Bárta, Šimon Bierhanzl a Marek Fischer.
Více k tématu
Návrh rekonstrukce bytu vypracovali pro mladý pár, který si ji podle vlastních slov přál „udělat úplně z gruntu“. Architekti nakonec dospěli k novému dispozičnímu řešení točícímu se kolem centrálně umístěné komory – dřevěného jádra, které v sobě slučuje obdivuhodné množství funkcí.
„Centrální komoru, která byla v původní dispozici jen těžko využitelným průchozím skladem, jsme proměnili ve víceúčelový nábytkový box. Toto dřevěné jádro se stalo hlavním motivem bytu. Součástí boxu je knihovna, pracovní místo, je v něm ukryta technická místnost s bojlerem, pračkou a sušičkou a směrem do předsíně je vybaven velkým zrcadlem a úložnými prostory,“ vysvětlují architekti.

Jádro je vytvořené z březové překližky a díky tomu v bytě laděném do šedé a bílé značně vyniká. Kromě toho, že je multifunkční samo o sobě, umožňuje také proměňovat prostor okolo. Dají se z něj vysunovat průsvitné příčky z polykarbonátu, díky kterým je možné oddělit předsíň od hlavního obytného prostoru nebo obývací pokoj od kuchyně. Místnosti ale mohou rovněž zůstat navzájem propojené. Aby prostor dobře plynul, navrhli architekti jádro se zaoblenými rohy.
Směrem na severní stranu byla nakonec situovaná ložnice s vlastní šatnou a další pokoj. Díky změně dispozic se podařilo také propojit balkon s novým obývacím pokojem. „S výsledkem jsme maximálně spokojeni. Byt se celkově prosvětlil, obývák a kuchyň se podařilo propojit a přesunout na jih, kde máme lodžii a také hezčí výhled do zeleně,“ říkají majitelé bytu.

- Ateliér: Papundekl architekti
- Autoři: Jan Bárta, Šimon Bierhanzl, Marek Fischer
- Země: Česká republika
- Město: Praha
- Projekt: 2020
- Realizace: 2021
- Užitná plocha: 82 m²