
Jako za první republiky, ale jinak. Citlivá rekonstrukce bytu z 30. let
Byt v pražském Bubenči zrekonstruoval ateliér COSMO z gruntu. Architekti očistili půdorys pouze na nosné konstrukce a přidali velkou vstupní halu. Došlo také k výměně podlah, repasi oken či dveří. Ve výběru materiálů a barev ale navázali na původní prvky. Byt si uchoval prvorepublikový šarm.
Sára Kročková , 29. 5. 2024
Pražský architektonický ateliér COSMO se věnuje realizacím různých měřítek – od interiérů a expozic po rekonstrukce a novostavby. Tentokrát se jim naskytla možnost kompletně zrekonstruovat byt z 30. let minulého století v pražském Bubenči. A protože s rekonstrukcemi bytů mají zkušenosti a jeden takový byt z 20. let již s respektem proměnili v moderní bydlení, tuto nabídku přijali.

Při prvních schůzkách s klientem architekti hledali nosný koncept, který bude spojený s téměř stoletou historií bytu. Rozhodli se, že výběrem materiálů a barev naváží na původní prvky. „Inspirovali jsme se především bíle lakovanými dveřmi a okny s mosaznými kličkami nebo typickými dubovými parketami,“ říkají Tereza a Jiří Kabelkovi, zakladatelé studia COSMO.
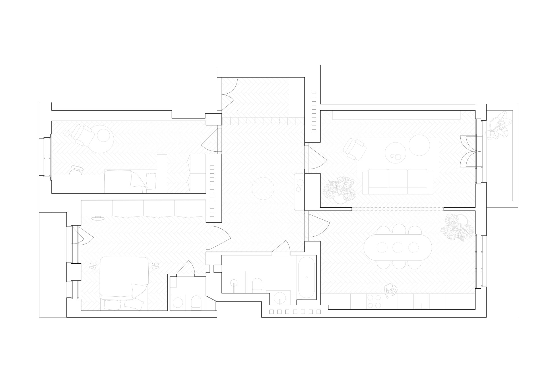
Co ale nemohlo zůstat původní, byla dispozice. Ta z 30. let již nesplňovala požadavky mladé rodiny, proto architekti očistili půdorys na nosné stěny. Vznikla díky tomu velkorysá chodba, jež tvoří spojující prvek celého bytu.

Dominantním prvkem vstupní haly se stalo zelené zádveří s kruhovým zrcadlem, které je bránou do bytu – přechodem mezi rychlým městským a klidným rodinným životem. Do chodby se zádveří otevírá velkorysou knihovnou nejen pro knihy, ale i osobní předměty.
Široký otvor propojil dva původní úzké pokoje a vznikl tak velký obytný prostor, kde rodina může trávit společný čas. „Bílá kuchyně se stává součástí stěny, zatímco volně stojící nábytek navazuje na dubové parkety. Výrazný masivní dubový stůl jsme navrhli do bytu na míru. Dominantou obývacího pokoje se vstupem na balkón do ulice je velký obraz,“ popisují autoři.

Tmavě zelená barva zádveří se propisuje do ložnice rodičů. Zelenou manželskou postel doplňují pastelově modré noční stolky a pracovní místo skryté ve velké šatní skříni. Zásuvné dveře umožňují toto místo na noc zavřít a vyčistit tak prostor pro spánek. Kromě pracovního místa je součástí ložnice také soukromá koupelna se záchodem.
Více k tématu
Koupelna přímo navazuje na vstupní halu a je řešena velmi jednoduše a decentně. Drobná mozaika, oblé rohy a rozptýlené světlo navozují pocit lázní. Bílou keramickou mozaiku doplňují mosazné baterie a niky s betonovými deskami.
Architektům se podařilo vytvořit pestrý celek, jehož detaily respektují koncept a stáří bytu a všechny ostatní požadavky mladé rodiny, které se zde pohodlně žije.
- Autoři: Jiří Kabelka, Tereza Kabelková
- Ateliér: Studio COSMO
- Země: Česká republika
- Město: Praha - Bubeneč
- Projekt: 2020
- Realizace: 2023
- Fotograf: Tereza Kabelková
- Hrubá podlahová plocha: 107 m²
- Postel, konfereční stolek: Javorina
- Svítidlo předsíň a kuchyně, židle: Audo
- Svítidlo ložnice: Pholc