Rodina si na dně lomu zrekonstruovala vlaštovčí hnízdo
Nejznámější brněnská dělnická kolonie Kamenná čtvrť vyrostla na dně uzavřeného lomu ve 30. letech minulého století. Nouzové domky zde vznikaly jako vlaštovčí hnízda, tedy z toho, co kdo sehnal. O půl století později se sem začali stěhovat umělci a lokalita byla známa svým až bohémským charakterem. Dnes už je zase „tradiční“ čtvrtí, přesto si svůj genius loci drží nadále. A to i díky citlivým rekonstrukcím, které moderní prvky bydlení chytře zakomponují do původních konstrukcí.
Schüco CZ s.r.o. , 10. 3. 2021
Prostřednictvím velkých prosklených ploch hliníkových oken (Schüco) nebo elektricky ovládaných střešních oken (VELUX) architekti pustili přirozené světlo do tmavého interiéru svého domku na dně lomu blízko skalní stěny. Architekti Radim a Hana Horákovi si bydlení nedaleko centra Brna a zároveň u řeky a lesa oblíbili, je to pro ně „taková vesnice ve městě“, rostoucí děti je však přiměly pustit se do rekonstrukce.
Více k tématu

Více oken než zdí...
Původní dispoziční řešení bylo důsledkem letitého chaotického zastavování uliček mezi domy a zdaleka neodpovídalo dnešním potřebám. „Každá místnost měla podlahu v jiné výšce, světlé výšky místností byly nízké (2.15 m), chyběly izolace a lokálně se objevovala i vlhkost a s tím spojená plíseň, dispozice byly tmavé. Polovičaté řešení nedávalo smysl, proto jsme k rekonstrukci přistoupili komplexně,“ začíná vyprávět Ing. arch. Radim Horák.
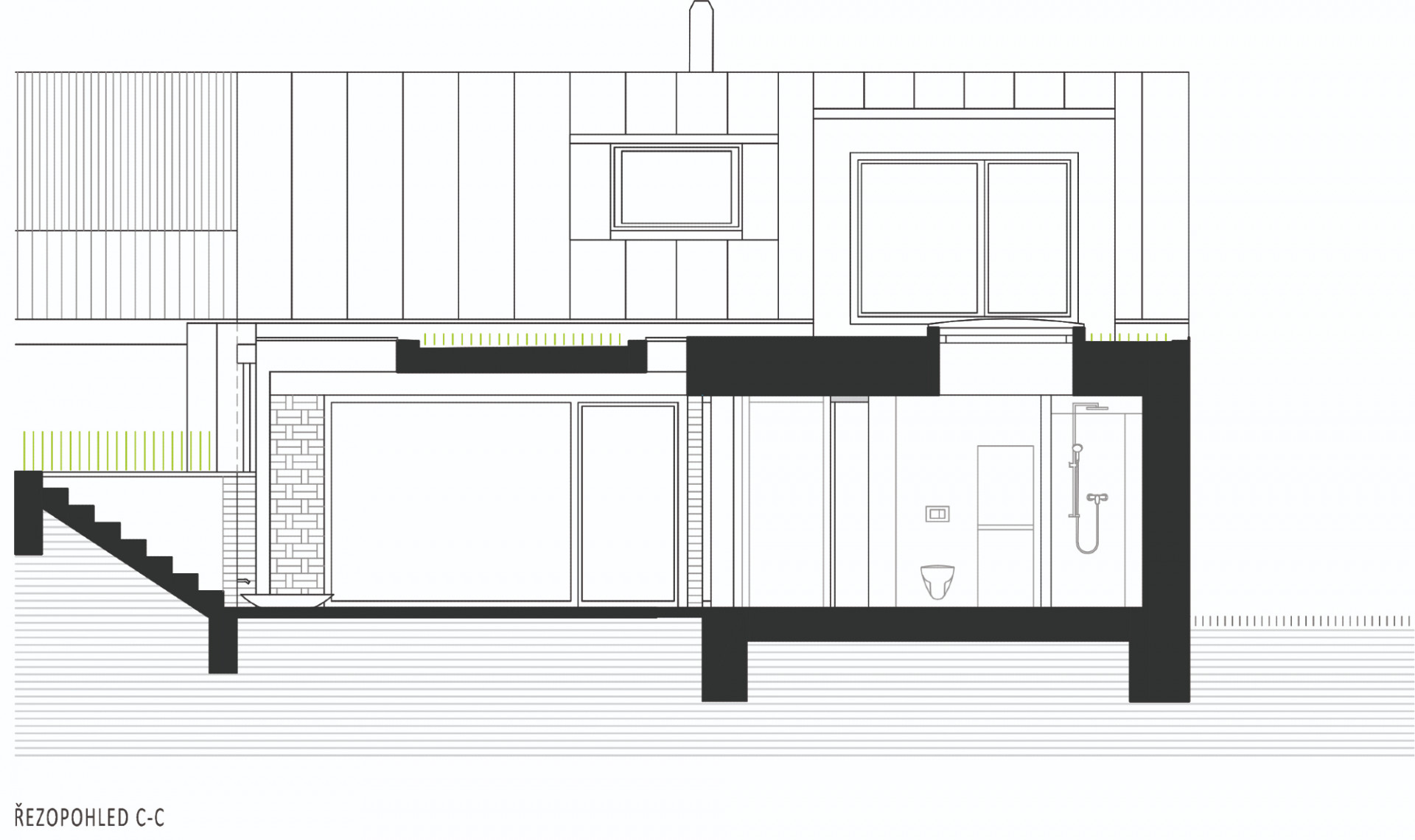
Jednopodlažní dům se sedlovou střechou s plechovou krytinou byl prorostlý s okolními domy, jak konstrukcemi, tak i sítěmi. Cílem rekonstrukce proto bylo objekt stavebně oddělit, včetně vybudování vlastních přípojek technické infrastruktury, navýšit užitnou plochu objektu a především přinést do interiéru co nejvíce přirozeného světla. „Stavbu jsme chtěli zachovat co nejnižší, proto jsme navrhli uskutečnit navýšení užitné plochy částečným zastavěním stávajícího dvorku novou jednopodlažní přístavbou. Hmotově zůstal patrný původní objekt, od nové části pohledově oddělený. Původní vnitřní zdivo bylo odstraněno, celý interiér jsme vyčistili a podlahy výškově srovnali do jedné roviny. Dům leží na dně lomu v blízkosti skalní stěny a slunce se k němu dostává docela pozdě, proto jsme jej chtěli co nejvíce prosvětlit, což se nám podařilo,“ pokračuje architekt a spokojený obyvatel domu v jedné osobě.
Na straně do dvora tvoří obvodovou část více skleněných ploch než neprůhledných zdí a přirozené světlo pustili do domu i střešními okny. V části pod sedlovou střechou v původním objektu je obývací pokoj s jídelním stolem. „Prostor je zcela otevřen do střechy a kromě rozsáhlé prosklené plochy z hliníkového HS portálu je prosvětlen i shora, dálkově ovladatelnými střešními okny, s vnitřním i vnějším zastíněním,“ popisuje Ing. arch. Radim Horák.

Přednost dostal do bronzova eloxovaný hliník
Z kuchyňského koutu lze vejít do malé šatny a po schodišti vystoupat do ložnice, s velkoplošným hliníkovým oknem (Schüco), které zároveň zpřístupňuje vegetační střešní terasu. Ložnice se vikýřem otevírá ke skalní stěně lomu. Z obývacího pokoje vedou dveře do části s bývalými přístavky, dnešního dětského pokoje pro tři malé děti. Ty mají k dispozici i malé vnitřní atrium, sevřené mezi okolními domy, do něhož ústí velké sedací okno ze strany obývacího pokoje.
Vstup do domu byl přesunut do nové přístavby, která je navržena s co nejmenší konstrukční výškou (světlá výška uvnitř je jen 2.3 m a stropy jsou řešené jako pohledové železobetonové). Na vstup navazuje chodba, kterou lze projít domem do dvora, hned za dveřmi při vstupu je navržen technický kout, na druhé straně je za posuvnými dveřmi malá lichoběžníková pracovna (reaguje na tvar pozemku). Před dveřmi do dvora se chodba stáčí podél krytého venkovního sezení a míří do původního objektu, podél ní je navržena knihovna, ve které jsou umístěny dveře na samostatné wc a do koupelny. Ta je uvnitř prosvětlena střešním světlíkem, rovněž elektricky ovládaným (VELUX).
Pohledově je rekonstrukce s přístavbou kombinací železobetonu, starých plných pálených cihel, omítky, zelené vegetační střechy a antracitových klempířských prvků. Výplně otvorů jsou navrženy jako hliníkové s trojsklem (Schüco), stejně tak i celoprosklené vstupní dveře, které umožňují kolemjdoucím průhled přes dům až do dvora. V interiéru se jedná o kombinaci různých přírodních materiálů. „Zvažovali jsme i dřevěná okna, přece jen je náš dům „tradičnější“, ale hliníková okna a posuvy Schüco pro nás měly větší výhody. Rozhodla především jejich bezúdržbovost, příznivá cena, i barevnost rámů eloxovaných do bronzova. Eloxovaná povrchová úprava vizuálně zachovává kovový vzhled hliníku, okna nejsou opatřena nátěrem, což koresponduje s dalšími použitými materiály v domě,“ vysvětluje svou volbu Ing. arch. Radim Horák.

Růžová kuchyň má i chytrou stěnu pro děti i rodiče
Nová přístavba má na podlaze ve hmotě probarvenou dlažbu, stará část pak třívrstvou dřevěnou dubovou lamelu. Celým domem prochází přírodní březová překližka (nábytky, obklad vstupu, dveře, podhled obývacího pokoje a ložnice), lokálně pak probarvená překližka (modrá – odpočinkový kout obývacího pokoje, růžová – kuchyň). „Máme rádi barvy, proto jsme se nápadu naší dcery s růžovou kuchyní nezalekli a snažili se tuto ne úplně obvyklou barvu vhodně materiálově a barevně doplnit,“ pokračuje Ing. arch. Radim Horák. Speciálním prvkem kuchyně je i tzv. chytrá stěna, magnetická a popisovatelná zároveň – děti mají kde malovat, rodiče zase prostor třeba na nákupní seznam...
Stěny koupelny, wc a plochy nad kuchyňskou linkou jsou z marockého štuku. Štít a vždy jedna stěna v dětském pokoji, pracovně a ložnici je realizována jako černá hliněná s řezankovým zlatavým vsypem. „Do hliněné omítky je zapracována na jemno nasekaná sláma, která se leskne a mění barvu, když na ni dopadají sluneční paprsky, takže v průběhu dne mění náladu interiéru,“ vysvětluje architekt.
Stropy jsou pohledové železobetonové s otiskem dřevěných desek, pohledový beton přechází i v nový nadvlak nad prosklením (HS portál) z obývacího pokoje do dvora, včetně nových nosných pilířů kolem něj. Zbytek stěn je „klasicky omítnutý“ a opatřen bílým nátěrem.
Dalším jednotícím prvkem v interiéru i exteriéru je kruh. „Kulaté prvky dojem změkčí, proto se v domě prvek kruhu opakuje - líbí se nám kulaté rohy nábytku, vana je zaoblená, zrcadlo ve vstupu má tvar kruhu, okénka ve dveřích koupelny a toalety jsou kulatá....,“ vypočítává Ing. arch. Radim Horák. Ostatně i venkovní přesah střešní terasy má oblý tvar (reaguje na strom), stejně jako vodní prvek.

Střecha je třetí fasádou
Původní část objektu architekti hmotově sjednotili a zjednodušili (přístavky jsou nově zastřešeny plochou střechou v jedné rovině). Šikmá střecha je opět pokryta plechem, ale nově v antracitové barvě (dříve byl červený), která odkazuje na někdejší použití černých asfaltových pásů jako krytiny u původních nouzových domků. Tehdy byla střešní krajina celé lokality různorodá, podtrhující „vlaštovčí hnízdo“, tak typické pro dané území. Celý původní objem byl zateplen minerální vatou a omítnut. „Dům stojí na dně lomu, takže střecha je v podstatě třetí fasádou – lidé, kteří jdou po hraně lomu, na střechu vidí, proto jsme ji řešili i pohledově. Materiálově i barevně jsme sjednotili vikýř a střešní okna s plechem střechy, proto jsme vybrali antracitový odstín,“ pokračuje Ing. arch. Radim Horák.

Rekonstrukce zachovala odkazy na dobu minulou
Nová přístavba je celá řešena s plochou střechou, stěny jsou sendvičové, kdy pohledové části do exteriéru tvoří vyzdívka z plných pálených cihel, získaných z bouracích prací na původním domě. Cihly mají odkazovat na někdejší obyvatele lokality, kteří byli často zaměstnanci nedalekých cihelen, z kterých si stavební materiál nosili. Cihly jsou doplněny o pohledové betony (sokl, atika), které vybíhají do dvora v jednoduché přestřešení nad venkovním sezením. Ploché střechy jsou pojaté jako zelené extenzivní, nad novou přístavbou doplněné o malou pobytovou terasu. Vnitřní zdivo, dozdívky apod. jsou z broušených keramických tvárnic.
Venkovní dvůr je částečně přestřešen, pod přesahem je venkovní sezení a umístěn původní zahradní krb (gril). Vlastní dvůr je vydlážděn žulovým odsekem, v kombinaci s plochami z česaného betonu a plochami pro vegetaci. Do zahrady přechází pobytovými dřevěnými schody (stejné dřevo je použito i ve vnitřním atriu a na venkovní terase).
„Lokalita si drží ducha z 80. let 20. století, kdy byla známá jako umělecká čtvrť, této době vzdáváme hold otisky umělce TIMA na pohledových betonech, bustou sv. Metoděje (jako patrona Moravy a spolupatrona Evropy) od sochaře Vladimíra Matouška v nice na štítě a volnou vnitřní štítovou stěnou v obytném prostoru, kterou postupně doplňujeme obrazy, plakáty, fotografiemi a jinými artefakty,“ uzavírá Ing. arch. Radim Horák.


