Rodinné bydlení v historickém letohrádku Bažantnice na jihu Čech splňuje všechny požadavky dnešní doby
Kdysi romantický novogotický letohrádek u Nových Hradů se po dlouhé rekonstrukci proměnil v rodinný dům. Vysoké komíny ani vikýře už nemá, dostal totiž takovou podobu, která si bere něco z každé jeho historické vrstvy – i té z poloviny 20. století.
EARCH.CZ , 27. 2. 2023
Letohrádek Bažantnice v jižních Čechách má kořeny svého vzniku už v barokní době. Stavba, která původně patřila k novohradskému panství rodu Buquoyů, v průběhu historie vystřídala několik podob. Například v 19. století byla přestavěna v novogotickém stylu a získala vysoké komíny a vikýře. Dnešní podoba letohrádku je opět zcela svébytná, na jednotlivé historické vrstvy se však snaží poukázat.
Pavilonovou stavu obklopenou zahradou zrekonstruoval ateliér DEBYT architekta Tomáše Petráška a Terezy Květoňové. Cílem bylo v objektu vybudovat pohodlné bydlení pro rodinu bratra architekta, který zchátralý letohrádek koupil už před 13 lety.
Více k tématu
Tomáš Petrášek se rekonstrukcím historických objektů věnuje dlouhodobě. Pod jeho dohledem byl zrekonstruován třeba historický dům v Blatné, který byl obnoven podle jeho původní podoby. Nyní se v případě letohrádku vydal odlišnou cestou. Prvotním záměrem bylo stavbu zrekonstruovat podle původních plánů zachycujících její neogotickou podobu, kvůli finanční náročnosti se tak ale nakonec nestalo.
Dnešní podoba letohrádku se hmotově nejvíce blíží jeho barokní siluetě. Zásadní je pro ni však i vrstva z poloviny 20. století – konkrétně krov realizovaný kolem roku 1948, kdy byl letohrádek přestavěn na bydlení pro zaměstnance národního podniku Československé státní lesy. „Tehdy došlo k výměně celé střechy, změně dispozičního řešení budovy i fasády a dům zcela ztratil svůj charakteristický vnější vzhled,“ vysvětluje Tomáš Petrášek.

Poválečný krov byl při rekonstrukci zachován, jako krytina byl zvolen modřínový šindel, zcela novodobými doplňky jsou pak komín nebo lunetový vikýř. Ačkoliv se na první pohled zdá, že se toho na letohrádku z jeho novogotické vrstvy moc neprojevuje, odkazují na ni například lomené vstupní portály nebo rizalit, v němž se nyní nachází panoramatická pracovna.

„Postupné obrábění historických vrstev domu společně s přísadou spletitého příběhu rekonstrukce a investorových přání a plánů dalo vzniknout zcela nové svébytné podobě letohrádku. Podobě, která vše integruje do jednoho homogenního celku,“ říká Tomáš Petrášek.

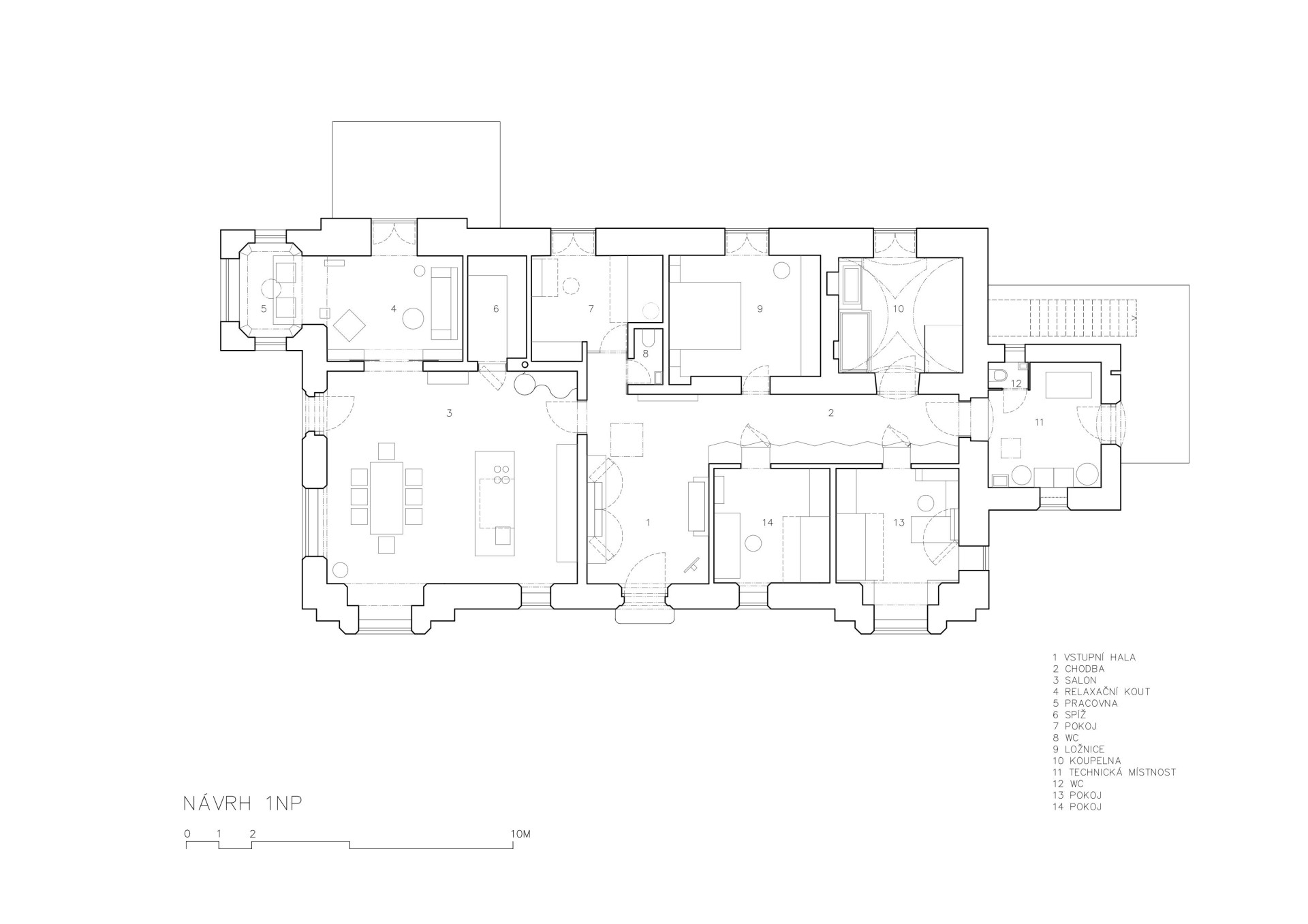
Změnami prošly jak vnitřní dispozice letohrádku, tak některé fasády. Interiéry se zahradou, jejíž úprava byla také součástí projektu, propojují nová francouzská okna. Za nimi se nachází prostorný hlavní obytný prostor s kuchyní a jídelnou, který vznikl rozšíření původního salónu. „Stejně jako kdysi i dnes představuje hlavní reprezentativní a společenský prostor domu,“ dodává Tomáš Petrášek.
- Ateliér: DEBYT
- Autoři: Tomáš Petrášek, Tereza Květoňová
- Spolupráce: Simona Rühmkorf, Vráťa Brabenec
- Země: Česká republika
- Užitná plocha: 213 m²
- Obestavěný prostor: 1011 m³
- Město: Nové Hrady
- Realizace: 2022
- Fotograf: Václav Novák