
Architektura
/
rodinné domy
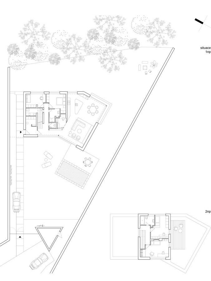
Rodinný dům na konci města
Pražské studio Ateliér 111 architekti navrhlo rodinný dům na trojúhelníkové parcele na samém okraji města Hluboká nad Vltavou. Dům rozděluje zahradu na dvě části podle specifického využití. Díky ukončení hrany pozemku strmým svahem dochází k absenci plotu, který tak nebrání výhledům do údolí řeky Vltavy.
ateliér 111 architekti , 14. 11. 2017
- Autoři: Jiří Weinzettl, Barbora Weinzettlová
- Ateliér: ateliér 111 architekti
- Země: Česká republika
- Město: Hluboká nad Vltavou
- Datum projektu: 2009
- Realizace: 2015