
Rodinný dům s výhledem na Karlštejn a Berounku. Je postavený ze slámy a uprostřed má zelený krb
V Českém krasu stojí nový dům postavený z přírodních materiálů. Respektuje tamní architektonický jazyk a nabízí zázemí pro rodinný život.
Viktorie Majoberová , 15. 10. 2024
Argentinsko-česká rodina hledala své nové „útočiště“ poblíž Prahy. A úspěšně. Nyní mají nový rodinný domek s výhledem na údolí Berounky a hrad Karlštejn. Navrhnout domov pro majitele byl úkol pro architekty ze studia Studio Circle Growth. Ti museli reagovat na místní regulace a podmínky, protože se dům nachází v CHKO Český kras, která usiluje o zachování místního stavebního dědictví. A dokonce dům postavili sami vlastníma rukama.

Dům svojí vnější podobou respektuje nářečí místní architektury. Má jednoduchou symetrickou sedlovou střechou, zaoblenou okapní římsu, tradiční pálenou tašku bobrovku, a fasádu z kombinace vápenné omítky a modřínového obkladu.
Schodiště jako klíčový hráč interiéru
„Interiér je otevřenější a hravější než typický český dům,“ říká architekt Martin Žižka ze Studia Circle Growth. Přízemní patro člení pouze dřevěné schodiště a krb umístěný uprostřed domu. Krb je obložen zeleným obkladem a je situován strategicky tak, aby se teplo rovnoměrně šířilo po celém domě. Spolu se schodištěm vymezuje první nadzemní podlaží na dva hlavní prostory - kuchyň s jídelnou a obývací pokoj. Za schodištěm v severní části je ukrytá také koupelna a východ na venkovní terasu.

Když vyjdete po schodech do druhého patra, najdete tu dva symetrické pokoje východně a západně orientované. Druhé nadzemní podlaží je charakteristické především svým klenutým stropem. Oblouk vytváří speciální řešení kleštiny, která svazuje krokve. Technicky to architekti vyřešili tak, že místo rovných trámů vyřízli obloukové „límce“ z překližky.
Celý interiér má příjemnou barevnou paletu. Dominuje tu dřevo a hlína s jemnými doteky tradiční modré, zelené a terakotové dlažby.
Novostavba ze slámy
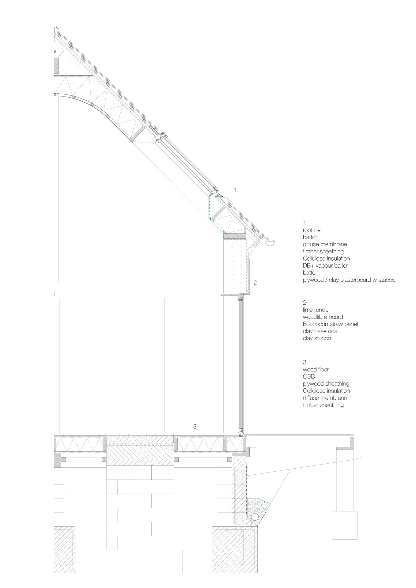
Při navrhování rodinného domu se architekti snažili používat co nejvíce udržitelných, přírodních a lokálně dostupných materiálů. Rozhodli se dům postavit z prefabrikovaných slaměných panelů, které jsou rychle smontovány na místě. Tyto panely jsou zevnitř omítnuty třícentimetrovou hliněnou omítkou pro akumulaci a regulaci vlhkosti. Vrchní vrstvou je jemný bílý hliněný štuk. Příčky jsou obloženy borovicovou překližkou.

Podobně je interiér řešený i v druhém patře. Obloukové stropy centrálního prostoru schodiště jsou omítnuty jemnou bílou kaolinovou hliněnou omítkou od české firmy Picas. Omítka byla nanesena na prefabrikované hliněné desky, které byly upevněny na dřevěné latě.
Více k tématu
V domě se také zajímavě pracuje s ohřevem vody. Majitelé k tomu využívají krb. „Krbová vložka má výměník, který ohřívá vodu. Ta je následně skladována ve velké nádrži v technické místnosti. Když teplota v domě klesne pod určitou teplotu, teplá voda se rozvádí do zdi, kde je 3 cm silná vrstva hliněné omítky. Hliněná omítka funguje jako vynikající akumulační hmota, která skladuje teplo a postupně ho uvolňuje do místnosti. Hliněná omítka navíc reguluje vlhkost jak vnitřního prostředí, tak slaměných panelů,“ říkají architekti o technickém řešení novostavby.

S respektem k životnímu prostředí i historii místa se podařilo navrhnout nový domov připravený poskytnout zázemí moderní rodině. Architektonické řešení přináší řadu inspirací ať už z technologického, tak estetického hlediska. Vůně slámy a barevná kombinace obkladů a dřeva vytváří útulno domova, které si majitelé přáli.
- Autoři: Martin Žižka, Jaroslav Smejkal
- Ateliér: Studio Circle Growth
- Spolupráce: Cristian Reta, Štepán Cibulka
- Země: Česká republika
- Adresa:: Karlštejn
- Fotograf: Fredrik Frendin
- Realizace: 2023
- Zastavěná plocha: 104 m²