Rodinný dům v Žebětíně
Základním motem návrhu architektonického dua Jaroušek Rochová bylo “chytré“ usazení hmoty a dispozic domu do svažitého terénu a jeho návaznost na zahradu a ulici.
JRA Jaroušek.Rochová.Architekti , 19. 1. 2016
Svažitý pozemek je položený na krásném místě nad centrem Žebětína s výhledy na kostel a okolní krajinu. Dům jsme situovali na pozemek do jeho horní části směrem k ulici. Dům hmotově navazuje na frontu domů v dolní části ulice.
Základním motem návrhu je “chytré“ usazení hmoty a dispozic domu do svažitého terénu a jeho návaznost na zahradu a ulici. Návrh respektuje původní terén a co nejméně ho „znásilňuje“. Tvar domu je vymezen hranicí pozemku a je lehce lichoběžníkový. Jedná se o archetypální tvar, jednoduchou hmotu se sedlovou střechou.
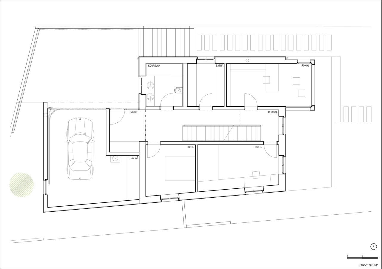
V části do ulice je před hmotou domu situovaná hmota garáže se vstupním krčkem a malým vjezdovým dvorkem z cihelné dlažby vymezeným železobetonovými pohledovými stěnami a modřínovou dřevěnou vjezdovou bránou. Z dvorku lze po betonovém prefabrikovaném schodišti sejít kolem domu na zahradu a obytnou terasu.
U hmoty a fasády směrem do zahrady je kontrast k tradičním oknům vytvořen velkými prosklenými plochami a doplněn o jednoduchý box dřevěného proskleného arkýře.
Do domu se vstupuje přes zádveří navazující na garáž. Napříč celým domem je chodba s jednoramenným schodištěm otevřeným skrz celou výšku domu. Ve vstupním „pokojovém“ patře jsou situovány tři pokoje, šatna a koupelna. Pokoj s arkýřem dovoluje krásné měnící se výhledy – obrazy s orámovaným pohledem na kostel.
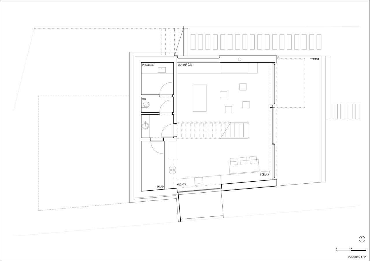
Z haly se po schodišti sestoupí do obytné části s kuchyní a jídelnou. Toto polotransparentní dubové schodiště odděluje obytnou část od kuchyně a jídelny. Hlavní prostor je propojen se zahradou a terasou velkým posuvným oknem. V obytné části je umístěn krb. V zadní části dispozice je situováno wc, prádelna a technická místnost.
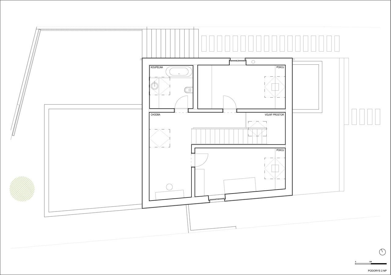
Do podkroví vystoupáme po schodišti ze vstupní haly na otevřenou galerii. Na patře jsou dva pokoje pro děti a koupelna.
Zahrada je důležitou součástí celého návrhu. Zahradou prochází osa železobetonových prefabrikátových šlapáků navazující na vnitřní schodiště. Na modřínovou terasu, která je po celé šíři domu, navazuje vyrovnaná úroveň zahrady, z které se sestupuje po jezdeckých schodech do užitkové části zahrady.
- Autoři: Radek Jaroušek, Magdalena Rochová
- Ateliér: JRA Jaroušek.Rochová.Architekti
- Země: Česká republika
- Město: Brno - Žebětín
- Užitná plocha: 210.00m2
- Zastavěná plocha: 136.00m2
- Plocha pozemku: 814.00m2
- Statika: Ing. Radek Brandejs