
Sto let staré uzenářství v pražských Nuslích prošlo konverzí podle návrhu Atelieru Hoffman
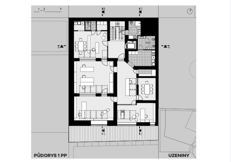
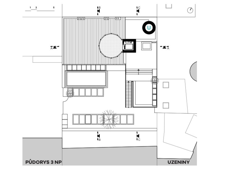
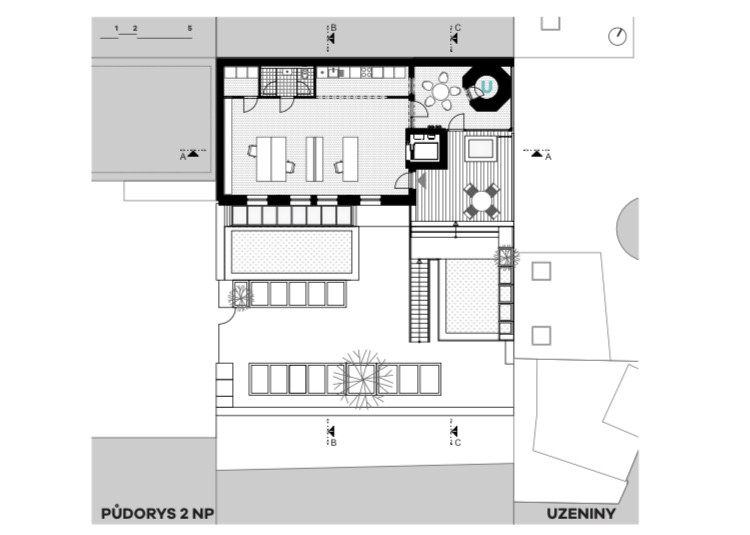
Zachovat paměť místa a vyprávět zapomenutý příběh nuselského uzenářství pana Šebka - to byly hlavní cíle konverze sto let starého objektu na moderní kanceláře podle návrhu architektonického studia Atelier Hoffman, které má s konverzemi a revitalizacemi industriálních budov bohaté zkušenosti. Uzenářství bylo před generální opravou v tristním stavu. Architekt Patrik Hoffman navrhl se svým studiem očištení objektu uzenářství od nevhodných stavebních úprav, doplnění nových oken a světlíků a lehkou změnu dispozice. Podstatné přitom pro autory bylo, aby si objekt udržel svůj industriální charakter.
Atelier Hoffman , 7. 9. 2020
- Autoři: Patrik Hoffman
- Ateliér: Atelier Hoffman
- Spolupráce: Pavla Krásová, Peter Panulin
- Země: Česká republika
- Město: Praha 4 - Nusle
- Ulice, číslo: Náměstí Bratří Synků
- Datum projektu: 2014
- Realizace: 2018