UMPRUM otevírá v centru Prahy svou novou budovu. Nabízí moderní dílny a ateliéry
Po téměř deseti letech příprav a stavebních prací má Vysoká škola uměleckoprůmyslová v Praze možnost rozvíjet svou výuku v novém Technologickém centru v Mikulandské ulici. Nová budova nabízí nadstandardní dílenské zázemí odpovídající vysokým technickým požadavkům. Nechybí ani prostory pro teoretickou výuku, výstavy, společenské akce nebo konference.
Vysoká škola uměleckoprůmyslová v Praze (UMPRUM) , 1. 12. 2021
„UMPRUM trpěla nedostatkem prostoru pro výuku téměř 100 let. Výstavbu nového objektu, který by měl lepší prostorové parametry než historická budova v centru města, se pokoušel už kolem roku 1930 iniciovat architekt Pavel Janák. Podmínky pro výuku se podstatně zhoršily v devadesátých letech, kdy škola v důsledku restitucí přišla o většinu externích dílen. Jediným východiskem z této situace bylo získání nové budovy, do níž by se přestěhovalo dílenské zázemí a případně také část ateliérů“, uvádí do historických souvislostí rektor UMPRUM prof. Jindřich Vybíral.
Rozhodující krok k současnému řešení škola podnikla v roce 2012, kdy se uvolnily prostory základní školy v Mikulandské ulici. Tehdejší rektor, architekt prof. Jindřich Smetana, prázdnou budovu získal pro UMPRUM a opatřil také prostředky nutné k její přestavbě. „Umístění školy v dochozí vzdálenosti od hlavní budovy na náměstí Jana Palacha jsme brali jako jednu z nejdůležitějších podmínek. Šlo nám o udržení živého kontaktu mezi oběma místy. Z mého pohledu je zásadní i udržení autentického života na Praze 1, jehož jsou studenti nedílnou součástí. Ten vlivem turismu mizí, a je velmi důležité, aby se do centra navrátil“, vysvětluje své pohnutky profesor Smetana.

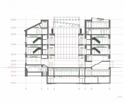
Architektonickým návrhem byl pověřen profesor UMPRUM Ivan Kroupa společně s Janou Moravcovou a Tomášem Zmekem. Tímto týmem navržená budova zapadá do okolní zástavby, ale zároveň poskytuje kompletní a zcela současné technologické zázemí pro většinu vyučovaných disciplín. Vnitřní komunikační a prostorové uspořádání přitom respektuje historický systém modulace a traktování původní stavby. Na přerod ze školy základní na školu vysokou poukazuje svislý průřez v čelní fasádě, který zároveň předznamenává funkci a vnitřní život budovy.

„UMPRUM se konečně dočkala odpovídajících prostor pro výuku a tvůrčí činnost studentů. Nyní se může plně prezentovat jako sebevědomá, prestižní vysoká škola hrdá na své tradice, ale také dynamicky se rozvíjející a otevřená změnám. Věřím, že v nových podmínkách budeme snáze obhajovat svou pozici ve stovce nejlepších uměleckých škol na světě“, uzavírá rektor Jindřich Vybíral.
- Ateliér: Ivan Kroupa architekti
- Autoři: Ivan Kroupa, Jana Moravcová, Tomáš Zmek
- Město: Praha
- Realizace: 2021
- Fotograf: Peter Fabo