
V duchu vřelé přísnosti. Škola z probarveného betonu je inspirována historií alpského města
Hudební škola v Brixenu slouží jak svým žákům, tak všem obyvatelům města. Plní roli kulturního centra i důležitého komunikačního uzlu, který propojuje jeho okraj vytížený automobilovou dopravou s klidným historickým centrem.
Adéla Vaculíková , 1. 9. 2022
Wunderkammer uprostřed Alp
Tisícovka žáků hudební školy v Brixenu stráví už druhý školní rok v betonové novostavbě v severní části města. Budovu, v níž se mísí přísnost s vřelostí, navrhla architektonická kancelář Carlana Mezzalira Pentimalli z Benátska, která ráda pracuje s historickými odkazy míst, do nichž vstupuje.
Hudební škola má v Brixenu tradici dlouhou více než půl století, založena byla roku 1961 a v Jižním Tyrolsku má velmi dobré renomé. Její nová budova neslouží pouze žákům, ale otevírá se všem obyvatelům města. Od architektů dostala přezdívku Wunderkammer, v překladu kabinet kuriozit, který si na svých dvorech zřizovali panovníci renesanční doby − jeden takový měl třeba i Rudolf II. na Pražském hradě. Místo extravagantních artefaktů se ale v budově nachází učebny pro budoucí hudebníky. Galerijní účinek jí ovšem odepřít nelze.
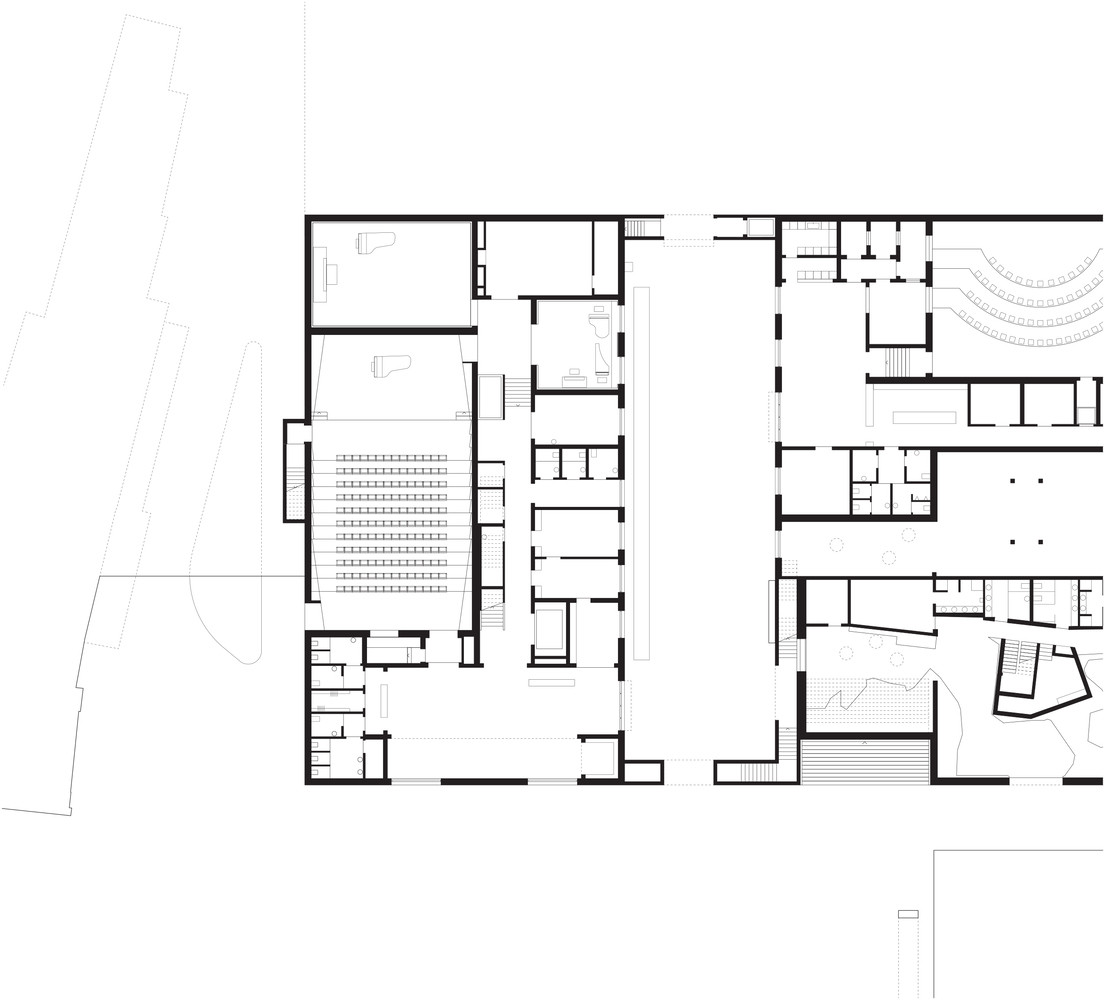
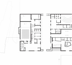
Stavba je uspořádána kolem hlubokého nezastřešeného dvora. Na jejích třech podlažích se nachází vedle 29 hudebních učeben také velkorysé auditorium a technická zázemí. Architekti se snažili, aby na Brixen poměrně velká stavba příliš nezasahovala do panoramatu města. Poslední patro proto částečně ustupuje a stavba nepůsobí tak monoliticky.
Více k tématu
Propojovací článek
Budova školy se však nerozrůstá ani tak do výšky, jako spíše do stran. Není zde od toho, aby své okolí pohlcovala, ale propojovala. Realizace hudební školy v Brixenu nebyla důležitá pouze pro samotnou instituci, ale pro celé město – přijala totiž významnou urbanistickou roli. Stala se součástí širšího plánu na proměnu celé jedné části města, kde se nachází třeba i plavecká nebo horolezecká hala.
Ačkoliv má Brixen asi jen 20 000 obyvatel, je třetím největším městem Jižního Tyrolska a také důležitým kulturním, ekonomickým a administrativním centrem horského okresu Valle Isarco. V blízkosti školy se zalamuje silnice Via Brenner, která vede z hlavního horského průsmyku propojujícího Rakousko s Itálií. Z tohoto důvodu se na místě plánuje výstavba záchytného podzemního parkoviště. Budova školy kvůli němu zasahuje i pod úroveň terénu, z garáží se totiž bude dát vystoupat do jejího velkého dvora obklopeného obchodním parterem. „Jednou ze zvláštností projektu je ‚hudební zahrada‘, jemně zdobená místnost pod širým nebem, uvnitř hradby, a přesto mimo objem školy, která rozpouští hranici mezi vnitřkem a vnějškem,“ popisují architekti.

Jemné odkazy k historii
Celá stavba je postavena z železobetonu probarveného červenými pigmenty. Díky povrchovým úpravám (zdrsnění nebo vyražení ornamentu) nepůsobí chladně a nepatřičně. Sami architekti říkají, že se snažili respektovat historii města. Jejich specificky minimalistické přemýšlení o kontextu se propsalo i do interiéru školy. Použili zde třeba šedý mramor nebo papírové tapety inspirované gobelíny visícími v biskupském paláci v Brixenu.
„Projekt byl realizován s velmi omezeným rozpočtem, a přesto se nevzdává formálního experimentování. Díky pečlivě vybraným prvkům, autentickým materiálům a jednoduchému konstrukčnímu systému jsme ve studiu vytvořili produkt vysoké technické a estetické kvality, který respektuje tradici a materiály dané oblasti,“ říkají. Střídmé vybavení je především z tmavě mořeného dubového dřeva. Vedle nábytku a obložení centrálního schodiště ho architekti využili také pro ztvárnění akustických stěn v auditoriu.
Interiéry hudební školy jsou zalité světlem a s chladným exteriérem vytváří zajímavý kontrast. Zvenčí na sebe zase přitahují pozornost vzorované stěny s ostře vyřezanými okenními otvory. „Wunderkammer“ se stává otevřenou galerií hudby, jejíž tvůrce lze pozorovat jako exponáty ve vitrínách otevřeného depozitáře.

- Ateliér: Carlana Mezzalira Pentimalli
- Země: Itálie
- Realizace: 2021
- Zastavěná plocha: 5312 m²
- Město: Brixen