V Kladně postavili nové křesťanské komunitní centrum pojaté jako zahradní pavilon. Slouží dětem i lidem v nouzi
Výrazný světlík doslova zaplavuje interiér nového komunitního centra v Kladně denním světlem a tím udává i jeho atmosféru. Církevní stavba pracuje se základními materiály, jako jsou cihly a sklo.
EARCH.CZ , 27. 12. 2022
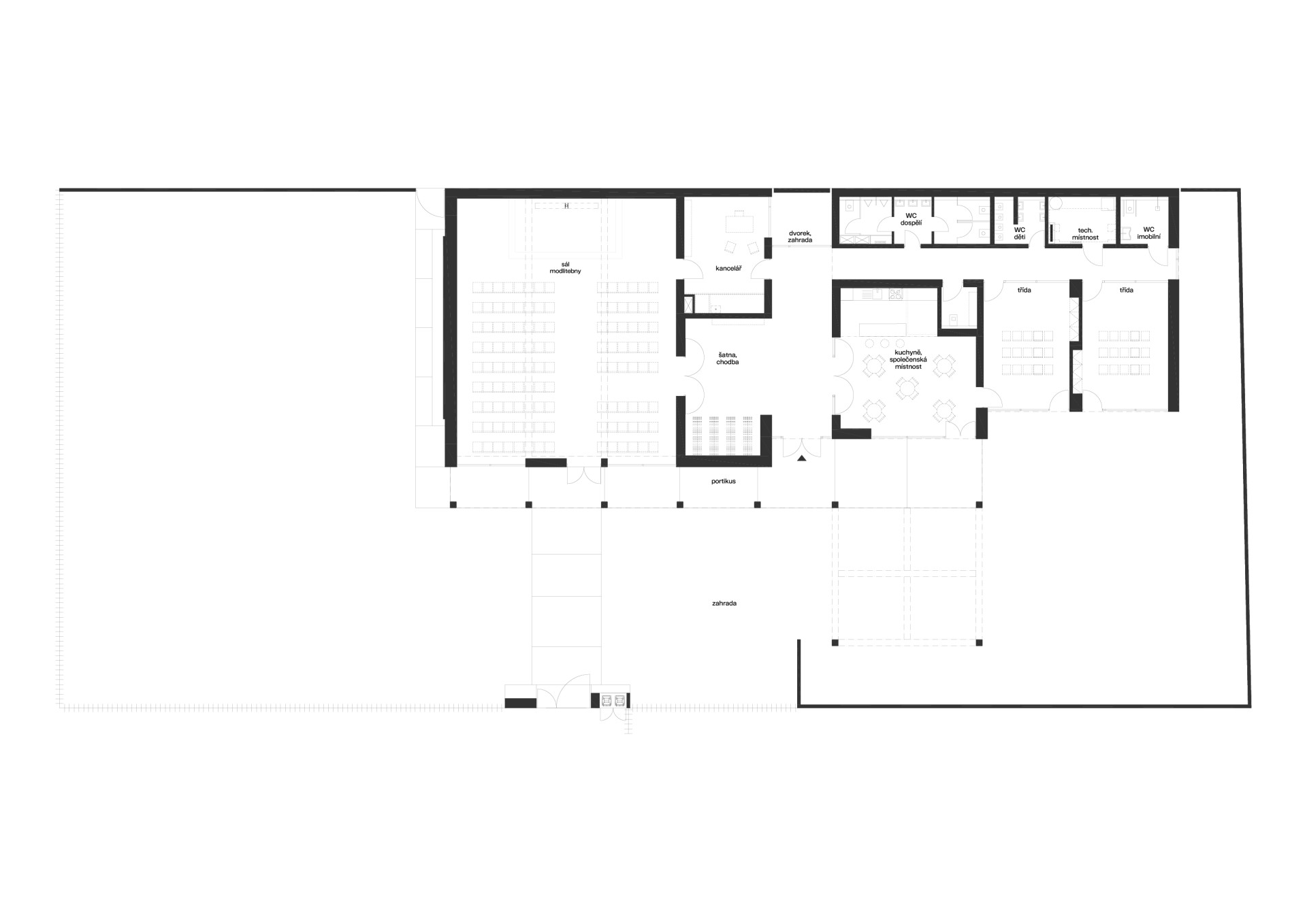
Nejen k duchovním účelům, ale také k volnočasovým programům pro děti, hendikepované nebo lidi v tíživých životních situacích slouží nové Křesťanské komunitní centrum Církve bratrské Kladno. Za jeho návrhem stojí pražské architektonické studio QARTA Architektura.
Více k tématu
Stavbu umístili architekti na okraj pozemku, aby se uvolnila plocha pozemku pro venkovní aktivity. Komunitní centrum totiž zahrnuje také učebny, malou kavárnu a kancelář. Z toho důvodu autoři pojali návrh jako zahradní pavilon s pergolou nabízející různá zákoutí.

Pro církevní stavbu je zásadní práce s denním světlem. Velký prosklený světlík s ocelovou konstrukcí zároveň vytváří důležitý architektonický motiv celé stavby. „Zkušenost světla a tmy je přirozeným východiskem celého konceptu. Světlík, zdroj bazilikálního osvětlení, je postavený v ose příchodu a tvoří charakteristický prvek vnějšího i vnitřního vnímání objektu. Určuje těžiště, koncentruje a dále rozptyluje světlo, které vytváří atmosféru. Stíny, napětí mezi světlem a tmou graficky podtrhují linie prostoru, jsou symfonií protikladů,“ rozvádí architekti.

Co se týče materiálového zpracování objektu, v exteriéru nejvíce zaujmou lícové cihly fasád, přiznaná železobetonová pergola a profilitový světlík. Cihly našly své uplatnění také v interiéru. „Kladení cihel v sále modlitebny symbolizuje pulzaci života – směrem k pomyslnému středu, ke kříži, se cihly shlukují, opačným směrem řídnou, sublimují,“ popisují autoři návrhu.
- Ateliér: QARTA architektura
- Autoři: David Wittassek, Jiří Řezák
- Spolupráce: Jarin Krouz, 4StatiX
- Země: Česká republika
- Investor: Církev bratrská v Kladně
- Město: Kladno
- Adresa: Václava Pázdrala 3469, 272 01 Kladno
- Zastavěná plocha: 470 m²
- Užitná plocha: 360 m²
- Plocha pozemku: 1400 m²
- Náklady: 23 000 000 CZK
- Projekt: 2017
- Realizace: 2022