
Mezi borovým lesem a jezerem navrhli slovenští architekti útulnou dřevěnou chatku po vzoru socialistických áček
Drobnou chatu v rekreační oblasti Tomky na břehu slovenské vodní nádrže Horná Studená Voda obestupují vzrostlé borovice. Víkendové útočiště čtyřčlenné rodiny vzniklo na místě chaty z 80. let, z jejíž původní podoby architekti do značné míry vycházeli. Dřevěný objekt tak dobře zapadá do tamní zástavby.
Sára Kročková , 2. 1. 2023
Jen pár kilometrů od českých hranic navrhli slovenští architekti Martin Maňo a Tomáš Amtmann nový rekreační objekt. Útulná dvoupodlažní chata se strmou sedlovou střechou v chráněné krajinné oblasti Záhorie při vodní nádrži Horná Studená Voda v mnohém připomíná prefabrikované stavby přezdívané “áčka” známé ze socialistického Československa.
„Jednou stranou je chata orientovaná k jezeru a druhou stranou do borového lesa. Vzhledem k takto výjimečnému situování objektu jsme se rozhodli vytvořit celoprosklené štítové průčelí,“ popisují architekti.
Více k tématu
Ke zbourání původního objektu z 80. let minulého století se autoři přiklonili především kvůli nedostatečným světlým výškám a jeho energetické nehospodárnosti. Architekti však zachovali figuru staré chaty postavené na zděné podnoži a přežila také myšlenka prázdninového domu bez oplocení a bariér v krajině. Respektování původního konceptu se odráží v materiálovém i provozním řešení.

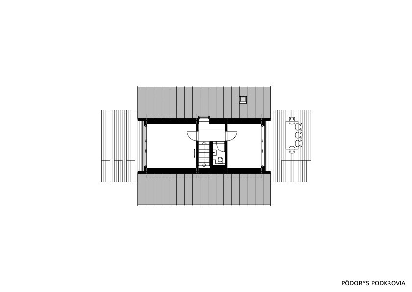
Důležitým momentem je architektonické ztvárnění podnože. Podstava a terasové schodiště opticky člení objem a rozšiřují obytnou plochu do exteriéru. Mírně zapuštěný zděný blok podnože slouží jako sklad a technické zázemí budovy. Po jednoramenném schodišti se vystoupá do denní části. Obývací prostor orientovaný k jezeru umožňuje relaxaci a vizuální propojení s přírodou díky skleněné stěně. Menší část druhého podlaží tvoří kuchyňka s jídelnou poskytující výhled do lesa. Z obou místností se dá pohodlně vyjít ven na terasu či pobytové schodiště. Podkroví představuje noční zónu domu se dvěma ložnicemi, které rovněž nepostrádají výhledy do okolí.

V souladu s přírodním okolím i místní zástavbou zvolili autoři jako dominantní konstrukční i pohledový materiál dřevo. Obklad fasády, teras i pobytového schodiště tvoří odolné modřínové dřevo bez povrchové úpravy. Atmosféry útulného teplého interiéru docílili architekti pomocí borovicového dřeva s výraznou texturou. Využili ho nejen jako obklad stěn, stropů, ale také pro výrobu nábytku.
- Autoři: Martin Maňo, Tomáš Amtmann
- Země: Slovensko
- Projekt: 2021
- Realizace: 2022
- Město: Borský Svätý Jur
- Zastavěná plocha: 44 m²
- Užitná plocha: 102 m²