V nové sportovní hale v Plzni panuje účelná atmosféra. Barvu do ní vnášejí modré badmintonové dvorce
Plzeň má novou víceúčelovou sportovní halu se zázemím pro profesionální i amatérské sportovce. Stojí za ní architekti z plzeňské kanceláře Projectsudio8, kteří pro město navrhli už soubor městských bytových domů nebo pop-up projekt do urbanistické jizvy u vlakového nádraží.
Adéla Vaculíková , 9. 6. 2023
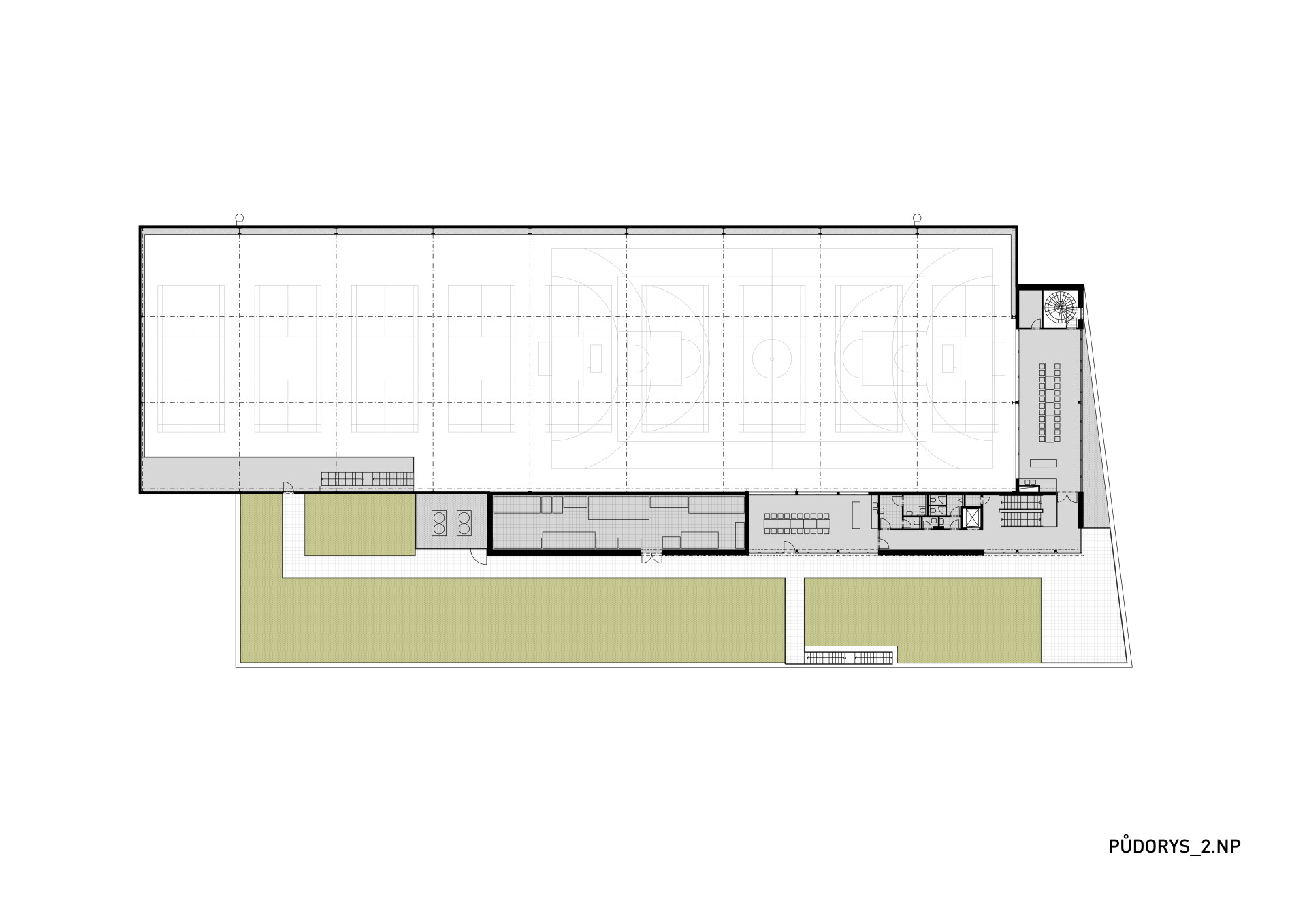
Pohledový beton a modrá barva, to definuje interiéry nové Městské haly v Plzni. Modré jsou badmintonové dvorce, prostor tribuny i některé dveře. Pohledový beton najdeme více méně ve všech prostorách. Ve stavbě se střídají dva typy konstrukcí – jedna z monolitického betonu, druhá z montovaného ocelového skeletu, který je opláštěný termoizolačními panely. Oba systémy jsou v interiérech přiznané, odhalené zůstaly také rozvody, před které jsou místy předsazené akustické panely.
Více k tématu
Atmosféra uvnitř haly je technicky účelná, sami architekti říkají, že je služebná. Zvenčí je pak stavba lyričtější, její podlouhlý obdélníkový půdorys formují pospojované kubické hmoty. Ta přední a nižší je bíle omítnutá, zadní pak šedivá. Už při pohledu na siluetu stavby je poměrně jasné, co se kde nachází – největší hmotu zabírá sportovní hala, ve zbytku funguje zázemí v podobě vstupního vestibulu, šaten nebo malého sportovního sálu. V přízemí se nachází ještě restaurace, kterou zvenčí obklopuje pobytová terasa, od stolů je ale zároveň vidět i přímo na badmintonové dvorce. Projekt také pracuje s modrozelenou infrastrukturou, na střeše prvního nadzemního podlží se nachází zelená střecha a v rovině terénu se pracuje se soustavou průlehů, které zasakují dešťové vody.
„V hale se počítá se 110 amatérskými i profesionálními sportovci a 200 diváky; kapacita restaurace činí 85 lidí. Do haly jsme navrhli devět badmintonových dvorců. Sportoviště se však díky dvěma závěsům může rozdělit na tři části; kromě badmintonu se zde může hrát i futsal, florbal, volejbal nebo basketbal. Sportovní provoz doplňuje menší sál v jihozápadním nároží budovy i dva salonky v ustoupeném patře,“ říkají architekti z kanceláře Projectstudio8, kteří stojí za návrhem budovy.

Objekt určený sportu se nachází na severním okraji Plzně v blízkosti sídlišť Bolevec, Lochotín a Košutka. Z jedné strany ho obklopují panelové domy z 80. let, z druhé pak dva parky. V těsné blízkosti stojí ještě budova volnočasového centra, se kterou nyní sportovní hala tvoří tandem. Obě střediska provozuje společnost, která je partnerem města Plzeň v oblasti správy městských bytových i nebytových prostor.
Architekti z kanceláře Projectstudio8 mají se spoluprací s městem už bohaté zkušenosti. V minulosti pro Plzeň navrhoval například Palubu Hamburk – pop-up projekt, který vnáší život do urbanisticky komplikované lokality –, soubor městských bytových domů nebo přístavbu školní družiny ZŠ Újezd.

„Naše propojení s městem vzniklo formou náhod. Kontakt jsme navázali při různých projektech, nyní nás i společně s krajem oslovují k další spolupráci. Pokud se dohodneme, rádi s nimi spolupracujeme, těší nás to,“ říká Bohuslav Strejc z Projectstudio8. V budoucnosti se mezi realizované projekty kanceláře zařadí ještě novostavba Základní umělecké školy v Plzni, jejímž investorem je Plzeňský kraj.
- Ateliér: projectstudio8
- Autoři: Bohuslav Strejc, Jiří Korelus, Ondřej Janout, Denisa Hubač Šabatová
- Spolupráce: Lucie Tlustá, Tereza Fialová, Anna Eštoková
- Země: Česká republika
- Město: Plzeň
- Projekt: 2020
- Realizace: 2022
- Investor: město Plzeň
- Náklady: 170 mil. Kč
- Zastavěná plocha: 3400 m²
- Fotograf: Matěj Hošek