Architektura / rodinné domy

Velký světlík přivádí sluneční světlo do rodinného domu od slovenského Atelieru 11

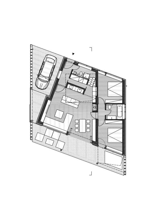
Nový rodinný dům od Atelieru 11 ve východoslovenské obci Teriakovce zaujme hned z několika důvodů. Na první pohled je patrný atypický tvar stavby, který téměř kopíruje pozemek ve tvaru lichoběžníku. Další výraznou charakteristiku domu pak představuje hlavní zdroj slunečního světla nacházející se v prostoru kuchyně - světlík, jenž je překryt sítí, do které si obyvatelé mohou lehnout.

Atelier 11 , 24. 7. 2019

  • Autoři: Martin Mihály, Matej Mihalič
  • Země: Slovensko
  • Město: Teriakovcice
  • Datum projektu: 2016
  • Realizace: 2018
  • Užitná plocha: 152.00m<sup>2</sup>
  • Zastavěná plocha: 169.00m<sup>2</sup>
  • Plocha pozemku: 770.00m<sup>2</sup>
  • Materiál: beton, dřevo
  • Statik: Matúš Rosina
  • autor: Atelier 11 *
  • publikováno: * 24. 7. 2019
  • zdroj: * Autorská zpráva

Klíčová slova:

Slovensko

Mohlo by vás zajímat

Generální partner
Hlavní partneři