
Z ošklivého káčátka nezapomenutelnou realizací
Mladé brněnské duo Ondřej Chybík a Michal Krištof získali v roce 2015 zajímavou nabídku: rychle a levně navrhnout a předělat showroom firmy MY DVA. To se povedlo a v Brně – Vinohradech vznikla jedinečná stavba, které si kvůli originálně vytvořené fasádě nelze nevšimnout.
Barbora Schneiderová , 20. 4. 2017
Co bylo dříve nevzhledným jednopodlažním autosalonem, je dnes moderním showroomem firmy MY DVA. Nápad obložit fasádu více než devíti sty černých plastových sedáků přitom nevyplynul jen z bohaté fantazie dua Chybík+Krištof, ale ze zaměření zadavatele – společnost MY DVA se totiž zabývá tvorbou kancelářského, školního a kovového nábytku. A bylo pro ni velice šťastné, že sáhla po mladém brněnském ateliéru. Showroom a zároveň sídlo společnosti tak získal snadno zapamatovatelnou tvář.
Specificky pojatá fasáda není jen tvůrčím počinem, ale také chytře informuje o tom, co člověk najde uvnitř. Fasáda sídla společnosti tak jako by dělala reklamu na firmu samotnou. Interiér je pak řešen jednoduše, aby se v něm daly flexibilně prezentovat jednotlivé výrobky ve specifických a tematicky laděných prostředích. Vzhledem k tomu, že se jednalo o dočasnou investici v režimu pronájmu a že firma již prostory využívala, řešení muselo být levné a rychlé. Zadání znělo jasně: „Udělejte to levně, ideálně zadarmo,“ vzpomínají architekti Ondřej Chybík a Michal Krištof. Původní prostor, autosalon v brněnské části Vinohrady, přitom vznikl už v devadesátých letech.
Lehce nahraditelná fasáda z plastu
Volba materiálu, který by byl vhodný pro vytvoření osobité a zároveň finančně nenáročné fasády, nakonec padla na plast. „Po řadě variant a zjišťování cen standardních fasádních systémů, které jsme původně chtěli použít na vnější proměnu domu, jsme dospěli k závěru, že žádný z dostupných materiálů neodpovídá očekávané ceně rekonstrukce,“ vysvětlují architekti.
Bez větších zásahů do exteriéru je tedy celá stavba obložena jednotným výrobkem – plastovým sedákem v černé barvě, který vyšel na cenu zhruba 80 Kč za kus. „Jedná se o základní formu interiérové židle Vicenza, kterou investor MY DVA standardně dodává, s tím rozdílem, že jako materiál byl použit černý granulát pro venkovní použití. Je také odolný proti vlivům počasí, zejména UV záření,“ popisují dále architekti. Jednotlivé sedáky jsou upevněny na konstrukci z ocelových profilů kotvených na fasádu. A když se sedák mechanicky poškodí, konkrétní kus jde snadno vyměnit za nový.
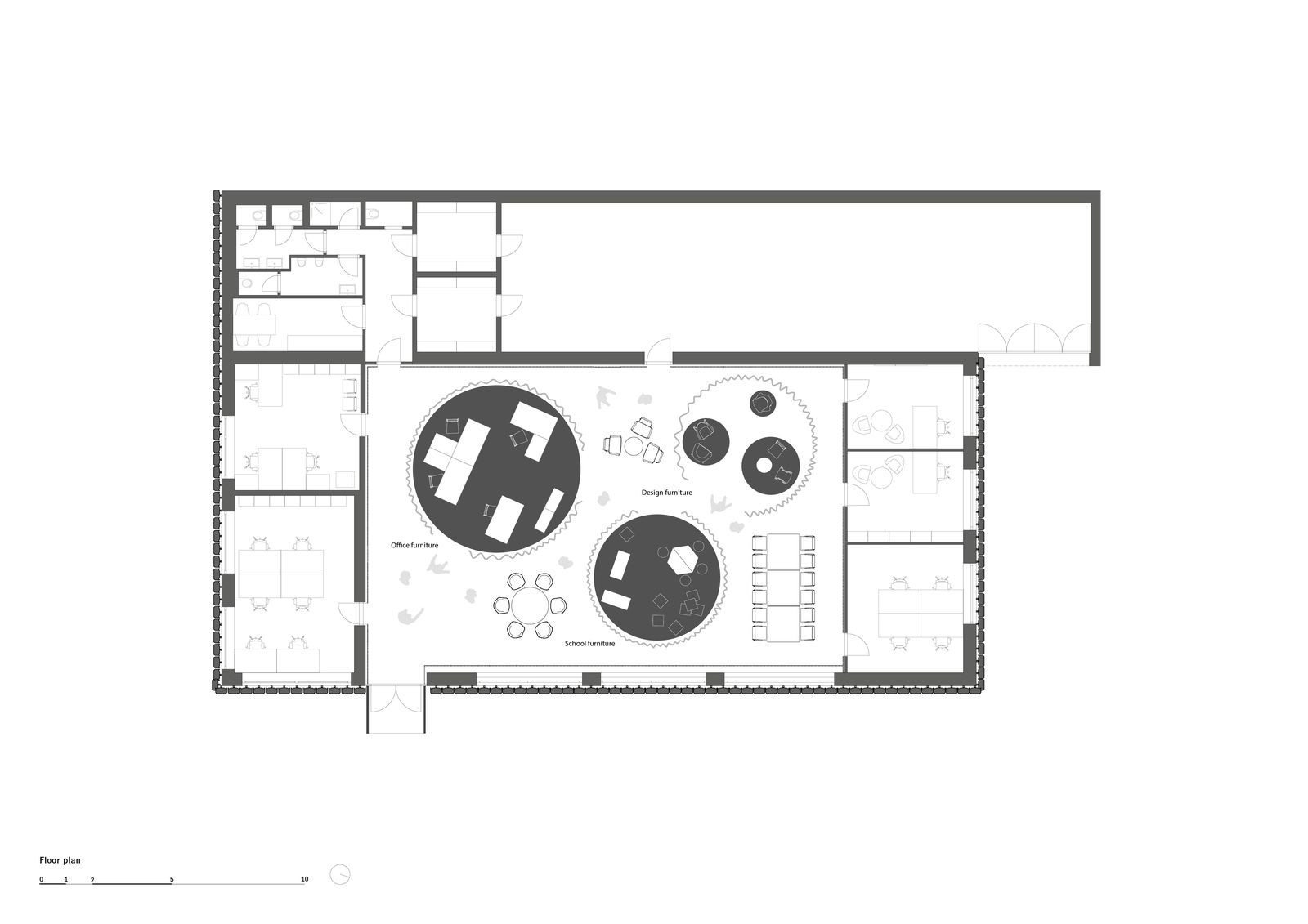
Druhou rovinou návrhu je interiér, který sestává ze dvou částí: showroomu a kanceláří se zázemím pro zaměstnance. Vnitřek stavby byl kompletně očištěn, prezentační prostor showroomu, který vznikl zvětšením původní vstupní haly v centru dispozice, je vymezen polykarbonátovými příčkami. Podlaha je sjednocena bílou stěrkou, na stropě je ponechán beton a všechny instalace jsou vedeny viditelně. Do prostoru jsou pak vloženy tři kruhové galerie reprezentující tři odlišné segmenty výroby – školní nábytek, kancelářský nábytek a designové kusy. Kruhové výřezy jsou vymezeny bílými textilními závěsy na celou výšku prostoru, se kterými lze podle potřeby lehce manipulovat.
Uzavřené tři celky představují tři odlišná prostředí, v nichž jsou materiál podlahy, způsob osvětlení i barva světla zvoleny tak, aby odpovídaly přirozenému prostředí, pro které je nábytek určen. Meziprostory je možné vyplňovat různými solitéry, lze je využívat jako konferenční místnost zaměstnanců nebo k posezení s klienty. Celý prostor showroomu funguje jako galerie, kterou je možné jednoduchým způsobem přizpůsobovat potřebám společnosti. Kanceláře pro zaměstnance se nachází po obvodu stavby, podlaha v nich je pokryta šedým kobercem a vymalována bíle.
Inspiraci možná studio Chybik+Kristof nabralo v zahraničí. „Kdysi jsme ve švýcarském Luzernu měli možnost navštívit expozici muzea dopravy od vynikajících architektů Gigon a Guyer. Fasáda budovy je tvořena dopravními značkami. Zde se dá mluvit o jisté inspiraci v rámci obecného principu,“ přiznávají autoři a zároveň ještě dodávají: „Jsme rádi, že i v relativně konzervativním Česku se najdou odvážní investoři s chutí realizovat takto nevšední řešení.“
- Autoři: Ondřej Chybík, Michal Krištof
- Ateliér: CHYBIK + KRISTOF
- Země: Česká republika
- Město: Brno
- Realizace: 2015