Z prostorné kuchyně se po rekonstrukci studia FOREVA stala hlavní společenská část bytu

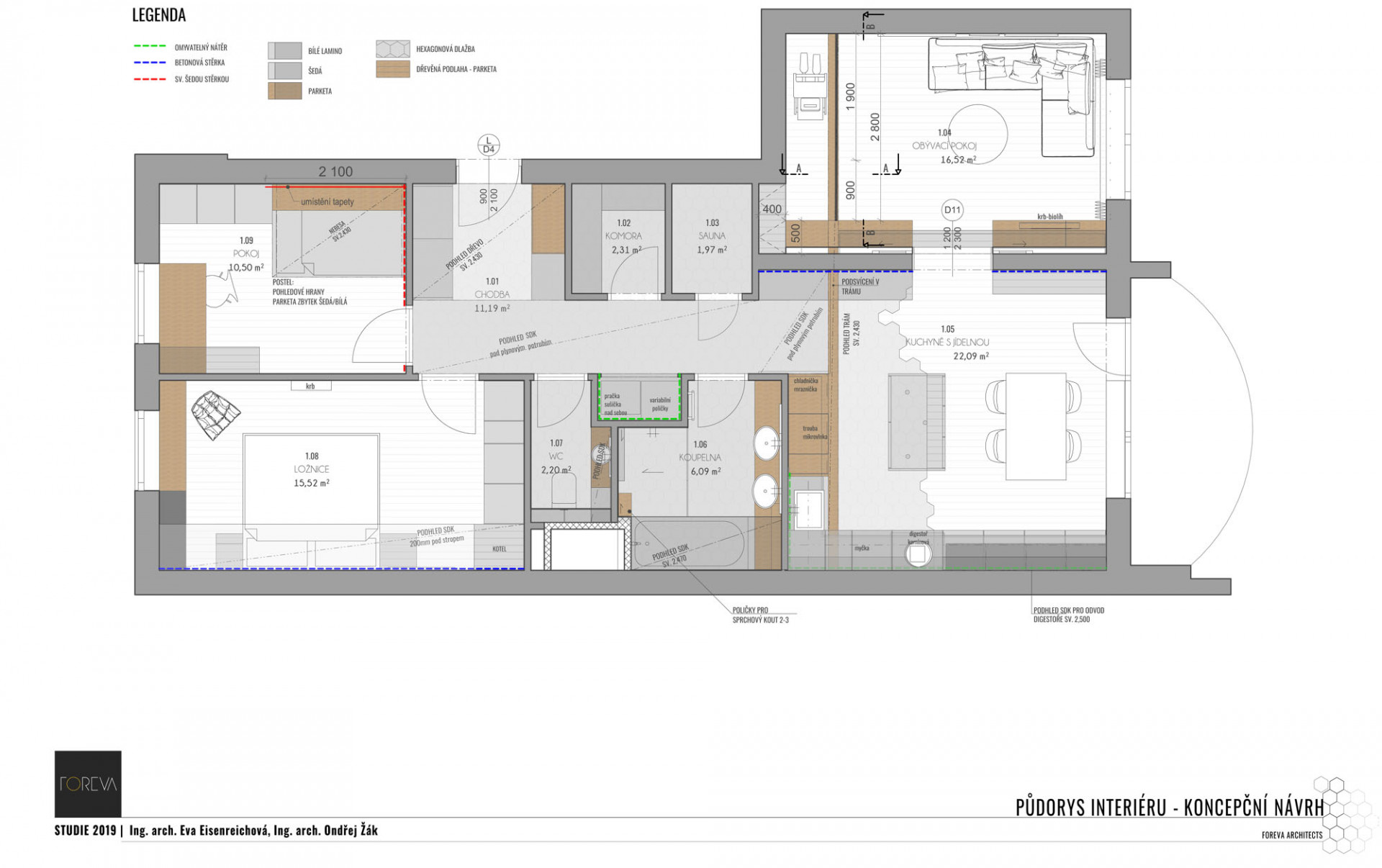
Cílem rekonstrukce pražského bytu o ploše necelých 90 metrů čtverečních byla především celková změna dispozice splňující potřeby rozrůstající se rodiny. Na přání majitelky se centrem bytu stala kuchyně, která slouží jako hlavní společenský prostor bytu a místo setkávání.
EARCH.CZ , 9. 3. 2021
Kuchyň jako srdce bytu
Mladé architektky Eva Eisenreichová a Soňa Formanová působí se svým studiem FOREVA architects na české architektonické scéně teprve tři roky. Za tu dobu vypracovaly několik projektů interiérů, rodinných domů i veřejných staveb, kam patří i vítězný soutěžní návrh Městské knihovny v Přelouči.
Rekonstrukce pražského bytu vyšla z úzké spolupráce s Ondřejem Žákem, který s ateliérem dlouhodobě spolupracuje. Architekti se zaměřili na vhodné přeorganizování dispozice, kterou rozdělili na dvě části. Denní části dominuje obytná kuchyně koncipovaná jako hlavní prostor pro setkávání. Obývací pokoj oddělený dvoukřídlými posuvnými dveřmi lze díky jeho umístění používat také jako pokoj pro hosty s dostatkem soukromí. Jasnému vymezení jednotlivých zón napomáhá i multifunkční trám s náladovým osvětlením procházející mezi místnostmi. Trám zároveň skrývá i roletu oddělující cvičící kout, který je součástí obývacího pokoje. Obytnou část navíc rozšiřuje prostorný balkón.
Více k tématu

Do protilehlé části bytu situovali autoři soukromou část s ložnicí a dětským pokojem. Společenskou a soukromou část odděluje technické jádro bytu, kde se vedle standardní koupelny s WC nachází také infrasauna. V koupelně najdeme výrazná betonová umyvadla, velkou vanu a sprchový kout walk-in. Mezi koupelnu a WC se podařilo umístit také prádelní skříň s pračkou a sušičkou. Vestavná skříň plní nejen estetickou funkci, ale současně významně tlumí i hluk spotřebičů.

Ornamentální dub
Rozdělení bytu podle funkcí podtrhují i použité povrchy. S olejovaným přírodním dubem zrenovovaných původních parket kontrastuje hexagonová dlažba v několika odstínech šedi, kterou doplňuje betonová stěrka stejných tónů. Tyto barvy pak určily barevné ladění celého interiéru. Dekor stávající dubové podlahy se uplatňuje i na vybraných kusech nábytku. Barevný akcent představují detaily z tyrkysového lamina opakující se v celém bytě. „V našem návrhu jsme se snažili skloubit minimalistický a lehce zdobný styl. Hexagonový tvar dlaždiček spolu se střídáním jednobarevného dekoru s ornamentálním vzorem nám přišel jako ideální,“ říká autorka proměny bytu Eva Eisenreichová.

Šedou barvu použili architekti i na pracovní desce kuchyňské linky, kterou vybrali z tvrzeného kamene. „Pro kuchyňskou desku jsme zvažovali několik variant, mimo jiné také dřevo, ale nakonec jsme se shodli na pracovní desce z TechniStone®, přičemž jsme použili dva odstíny v saténové úpravě. Světle šedý odstín pracovní desky rámuje bílý nábytek linky, solitérní ostrůvek uprostřed místnosti je pak celý čistě bílý včetně desky z tvrzeného kamene,“ doplňuje Eva Eisenreichová.

Cílem rekonstrukce bylo dosáhnout harmonie jednotlivých prostor bytu s pomocí použitých materiálů a barev, současně kladli autoři velký důraz na jejich praktičnost a odolnost vůči běžnému opotřebení. V kuchyni tak například navrhli na některých stěnách omyvatelnou betonovou stěrku. Velice praktický je pak detail kuchyňského dřezu, který tvoří stejný materiál jako pracovní deska, jejíž součástí je i drážkovaná odkapávací plocha.

- Autoři: Eva Eisenreichová, Soňa Formanová, Ondřej Žák
- Ateliér: FOREVA architects
- Země: Česká republika
- Město: Praha
- Realizace: 2020
- Poznámka: Foto © Jiří Ernest