Architektura / rodinné domy

Zahradní přístavba rozšířila a otevřela interiér malého řadového domu ze 30. let v Praze

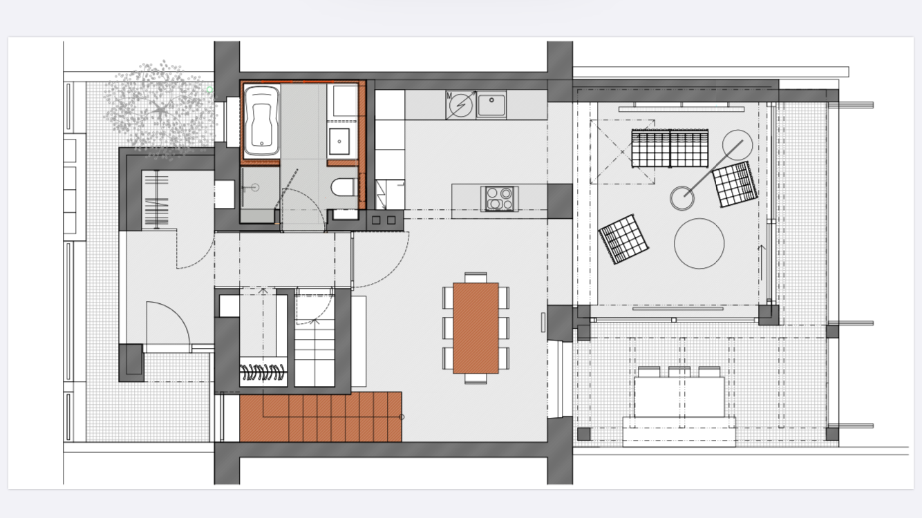
Celková rekonstrukce řadového domu ze 30. let na pražském Spořilově zahrnovala také stavební úpravy, což umožnilo rozšíření podlahové plochy domu. Architektka Barbora Kopečná ze studia Baraak architekti totiž navrhla rozšíření přízemí domu směrem do zahrady pomocí betonového rámu, ve kterém vznikl samostatný obývací pokoj. Díky tomu v přízemí mohla vzniknout větší kuchyně s jídelnou. Patro nechala architektka otevřít výškově do krovu, čímž se celý prostor nadechl a umožnil vložení spacího patra. Rozšíření přízemí domu pak výrazně propojilo interiér se zahradou.

BARAAK Architekti , 29. 1. 2020

  • Země: Česká republika
  • Město: Praha - Spořilov
  • Datum projektu: 2016
  • Realizace: 2019
  • Užitná plocha: 103.70m<sup>2</sup>
  • Plocha pozemku: 217.00m<sup>2</sup>
  • Zahradní úpravy: Ateliér Partero

Mohlo by vás zajímat

Generální partner
Hlavní partneři