Architektura / rodinné domy

Život pod střechou 2015: Odměna - House In The Woods

Druhým projektem, který získal odměnu ve středoškolské architektonické soutěži, je projekt Tomáše Klanici z Opavy.

Tomáš Klanica , 6. 8. 2015

Autor: Tomáš KlanicaStřední průmyslová škola stavební OpavaKonzultant: Ing. arch. Tomáš Fischer

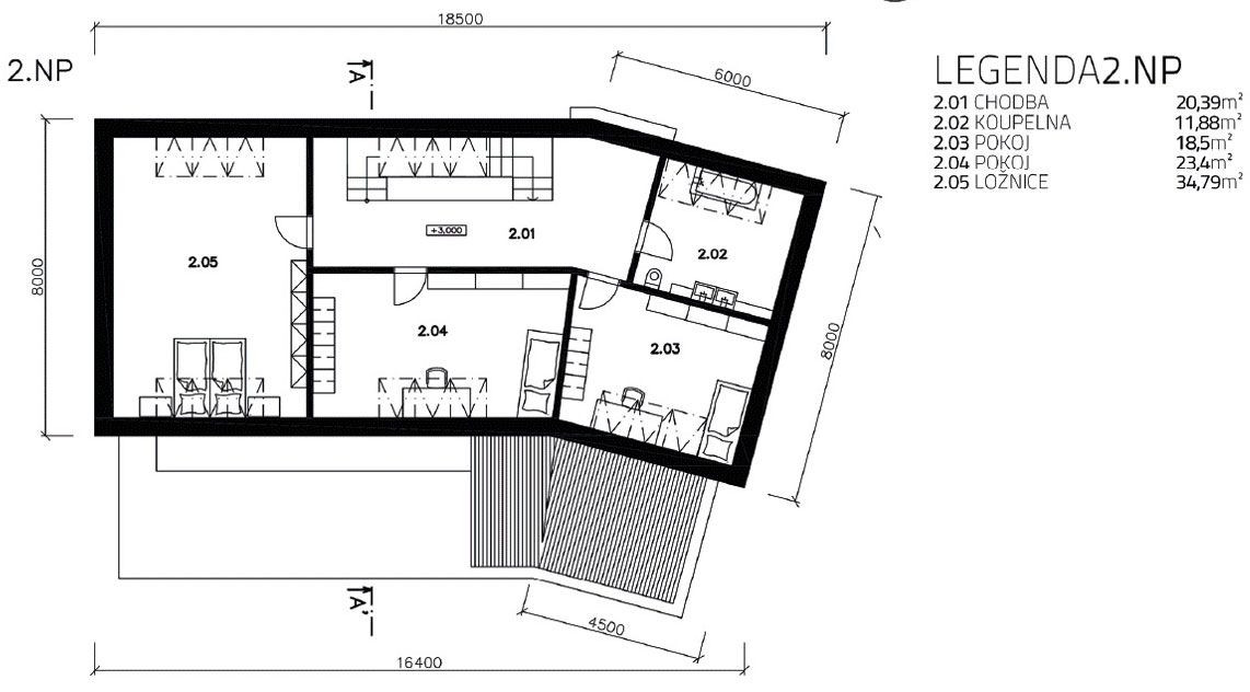
ARCHITEKTONICKÉ A KONSTRUKČNÍ ŘEŠENÍ

Záměrem projektu je vytvořit příjemné bydlení umístěné daleko od rušného prostředí městské zástavby. Dům kombinuje lepené lamelové dřevo s čistě přírodními materiály a přizpůsobuje se tvaru terénu.

Je založen na základových pasech, na kterých je vystavěna dřevěná skeletová konstrukce, do níž jsou vestavěny slaměné balíky, které tvoří zdi a izolaci domu zároveň. Jako interiérová úprava zdí je zvolena hliněná omítka. Zvenku je pak dům obložen dřevěným obložením.

Terasa vybíhající ze svahu je založena na betonových pilotech a spolu s přidanou hmotou pracovny je řešena kontrastně proti objektu se sedlovou střechou.

Ozvláštňujícím prvkem je montáž provětrávané fasády z palubek na betonovou plochu.

Dispozice domu umožňuje přivádění jižního slunce do obytných místností přes skleněné plochy, které poskytují přístup na terasu a výhled do okolí. Stavbu tohoto systému tak lze zařadit mezi nízkoenergetickou až pasivní.

Vytápění je navíc zajištěno podlahovým topením s tepelným čerpadlem umístěným vedle technické místnosti. Obytná místnost je doplněna elektrickým krbem.

OKNA VELUX

V podkroví jsou umístěna okna VELUX GPL s panoramatickým výhledem. Díky otvírání ven spodní klikou se nám naskytuje co nejvíce místa nad hlavou a můžeme si tak užívat ničím nerušený výhled do zalesněného okolí.

V jednotlivých místnostech je osazena trojice oken pomocí kombi lemování s meziokenní krokví.

Okna na jižní straně jsou vybavena římskou roletou s dekorativními vzory, které vytvoří příjemnou atmosféru v podkrovních místnostech.

6x soustava střešních oken GPL 3050 – 18x 78x 140cm

Klíčová slova:

Nabídky práce

Generální partner
Hlavní partneři