Atelier 111 architekti - Rodinný dům v Jinonicích

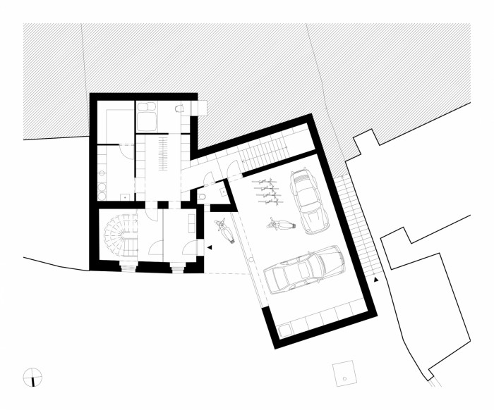
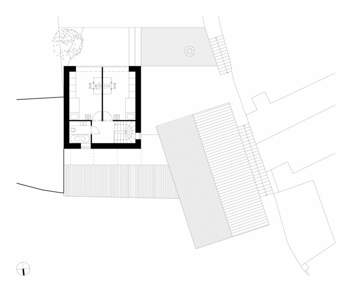
Úzká ulice s částečně dochovaným ospalým charakterem starých Jinonic se v jednom místě rozevírá v plácek se studní. V jeho čele stál opuštěný dům, hmotový slepenec, jehož pozdější neuvážené přístavby převyšovaly původní přízemní objekt. Soubor těchto drobných stavení, vyskládaných ve svažité zahradě, se nacházel ve velmi zanedbaném, neobývatelném stavu.

V návrhu ponecháváme pouze nejstarší kamennou část orientovanou do ulice. Skrze ní je možné vystoupat do hlavního obytného podlaží, rozprostírajícího se ve dvou nových hmotách. Nejvyšší část věnujeme dětem. Všechny obytné prostory, včetně dětských podkrovních pokojů, mají přímou návaznost na prosluněnou svažitou zahradu, od ulice odcloněnou vlastním domem. Starou a novou část spojuje z vnějšku v celek jednotná barevnost štukové omítky i režná keramická taška na střeše. O stáří jednotlivých částí domu napoví zejména detail; s původním tvaroslovím lehce kontrastuje současné minimalistické pojetí.

 

  • Autoři: Jiří Weinzettl, Barbora Weinzettlová, Veronika Indrová
  • Ateliér: ateliér 111 architekti
  • Spolupráce: Michal Hamada
  • Země: Česká republika
  • Realizace: 2019
  • Generální dodavatel: AMO, spol. s.r.o.
  • Město: Praha - Jinonice
  • Datum projektu: 2016
  • Realizace: 2019
  • Užitná plocha: 318.00m2
  • Zastavěná plocha: 193.00m2
  • Poznámka: JANOŠÍK OKNA-DVEŘE s.r.o.  - okna, vstupní dveře
    23pm s.r.o. - výroba atypických dřevěných interiérových prvků a nábytku
    Jaroslav Palivec – vybrané truhlářské výrobky
    KOVO Němeček – výroba atypických kovových prvků
Generální partner
Hlavní partneři