B

Barbora Červeňová - Návrh bytového domu na Karlíně

Na rozhraní dvoch Karlínov zíva veľká prázdna parcela neukončeného bloku. Nakukuje do križovatky troch malebných rohových domov. Akoby čakala na vyplnenie domom, ktorý bude nápadne dnešný, no tak trochu akoby tam s nimi vyrástol už dávno. Rímsa domu reaguje na ich výšku a hladký parter plynule naväzuje na baldachýn stromoradia. Prispieva útulnu ulice. Z nej vťahuje život do vnútrobloku a sprístupňuje dlhý priechod skrz, krytý loubím. Využíva prázdno nádvoria a otáča do neho dej. Formuje sa tretia hmota, kompenzujúca nezastavanosť nádvoria – vysoká veža s lukratívnymi bytmi a hotelovými izbami. Komín bývalej továrne odrazu nie je sám. Nájomné bývanie je síce prechodné, no cieľom bolo navrhnúť dom, neľahostajný k svojej výnimočnej polohe a hlavne dom, v ktorom sa bude dobre bývať.  

OKOLIE  

Dom stojí na rozhraní secesného a klasicistického Karlína, na poslednej parcele superbloku zatiaľ nezasiahnutého korporátnymi megaštruktúrami. Tak by to malo aj ostať. Je to miesto, ktoré srší mestskosťou, zároveň je všadeprítomný zarastený Vítkov. Parcela ponúka na jednej strane pohľad do ruchu mesta, na druhej strane nekonečné priehľady do lesa. Bloková štruktúra je popretkávaná ukážkovo udržovanými parkami. Miestu dominujú iba vytŕčajúce komíny ako fragmenty Karlínskej industriálnej minulosti, všetka nová zástavba si udržiava zdanlivo adekvátnu výšku a nekonkuruje kostolu sv. Cyrila a Metoděje.  

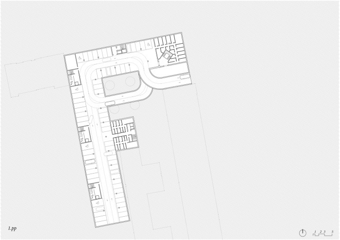
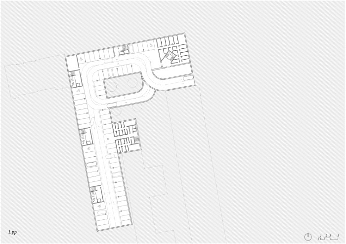
URBANIZMUS, TVAR A ŠTRUKTÚRA 

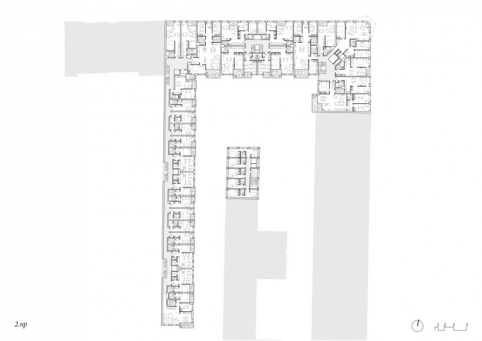
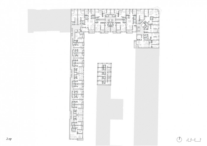
Dom od ulice výškovo reaguje na nárožných susedov, uzatvára blok a jasne tak definuje uličný priestor. Do križovatky vystrkuje iba arkier, ako zjemnenie nárožia s ambíciou využiť potenciál rohu. Parter je uskočený o 1,5 m a rozširuje tak chodník. Pevne drží fasádu, ktorú z ulice priveľmi nevnímam, ale viem, že tam patrí. Byty tvoria mix väčších, kvalitných bytov, ktoré využívajú celú dĺžku traktu a priehľad skrz, určené na predaj, a minimálne byty na prenájom nemenšej kvality. S narastajúcou výškou sa byty združujú a kvalita stúpa. Z tmavej severnej ulice je dom prepichnutý dierou, ktorá ponúka pohľad na život na nádvorí, na južné svetlo a zároveň na priechod skrz blokom, ktorý je krytý loubím s komerciou a vstupmi do nájomného domu.

Dlhá, úzka hmota leží na hranici so susedom, neberie mu intimitu súkromnej záhrady a využíva hĺbku pozemku na maximum. Loubí naväzuje na existujúce detské ihrisko na vedľajšom pozemku, a vedie až na Pernerovu ulicu k Foru Karlín. Výškovo dom naväzuje na Cornlofts a oknami do verejného priechodu dáva najavo kontrolu. Štít domu sa pozerá na Vítkov a z Pernerovej ulice odkrýva tajomstvo dvora. Prázdno nádvoria je využité pre verejnosť, a je kompenzované vysokou hmotou 14-poschodovej veže, vykukujúcej spoza rohového domu. Upozorňuje na to, že v hlbokom pozemku sa niečo deje. Vytŕča ponad strechy, ale z ulice nepôsobí nepatrične. Vyjadruje súčasnosť a nutnosť nebáť sa zakonzervovanú Prahu ťahať do výšky. Programovo má pritiahnuť do nádvoria dej a prispieť meniacemu sa charakteru nájomného bývania hotelovou funkciou. Poloha Karlína vzhľadom k centru mesta, hlavným dopravným staniciam ako aj atraktivita lokality samotnej zdôvodňujú hotel využiť.

Vyššie podlažia, ktoré prerastú susedné Cornlofts ponúkajú nadštandardnú kvalitu bývania s jedným bytom na podlažie. Jedinečnosť, ktorú taký byt ponúka nemá v lokalite obdobu, preto ekonomicky opodstatňuje zdanlivý luxus. Na mieste sa tak miešajú tri kvality bývania – minimálne a univerzálne mestské nájomné bývanie s meniacimi sa obyvateľmi, kvalitné byty na predaj s nekonečným priehľadom skrz nádvorie na les Vítkova, a (doslova) vysoko lukratívne bývanie, využívajúce potenciál miesta, ktorý by inak ostal zanedbaný. Vo vnútrobloku je tak zrazu dosiahnutá diverzita a mestskosť, akoby šlo o kus ulice.  

Materiálovo je Karlín na prvý pohľad pastelový – preto farebnosť súboru riešim jemnou pastelovou omietkou, kombinovanou s hladkým betonovým soklom. Vo vnútrobloku vzhľadom k rôznorodosti hmotových jazykov umocňujem diverzitu exteriérových priestorov odlišnou farebnosťou a dosahujem tak rozličné atmosféry. Domy sú tu odsadené na nožičky, čo jednak odľahčuje ich hmoty, a zároveň tvorí podloubí ku vchodom, alebo len chráni prechádzajúcich pred dažďom. Veža v centre pôsobí lukratívnejšie jemne tvarovanou fasádou zo slonovinovo sfarbeného betonu a veľkými oknami. Zo strany výhľadu na Vítkov je vynechaný jeden modul fasády na súkromnú terasu, chránenú pred pohľadmi susedov. Konštrukčne je dom navrhnutý ako kombinácia stenového a skeletového systému zo železobetónu s murovanými priečkami. Nájomné bývanie je síce prechodné, no cieľom bolo navrhnúť dom, neľahostajný k svojej výnimočnej polohe a hlavne dom, v ktorom sa bude dobre bývať.

  • Autoři: Barbora Červeňová
  • Země: Česká republika
  • Škola: FA ČVUT v Praze
  • Město: Praha 8 - Karlín
  • PSČ: 18000
  • Datum projektu: 2019

Související architekti

Generální partner
Hlavní partneři