Byt pro milovníky umění
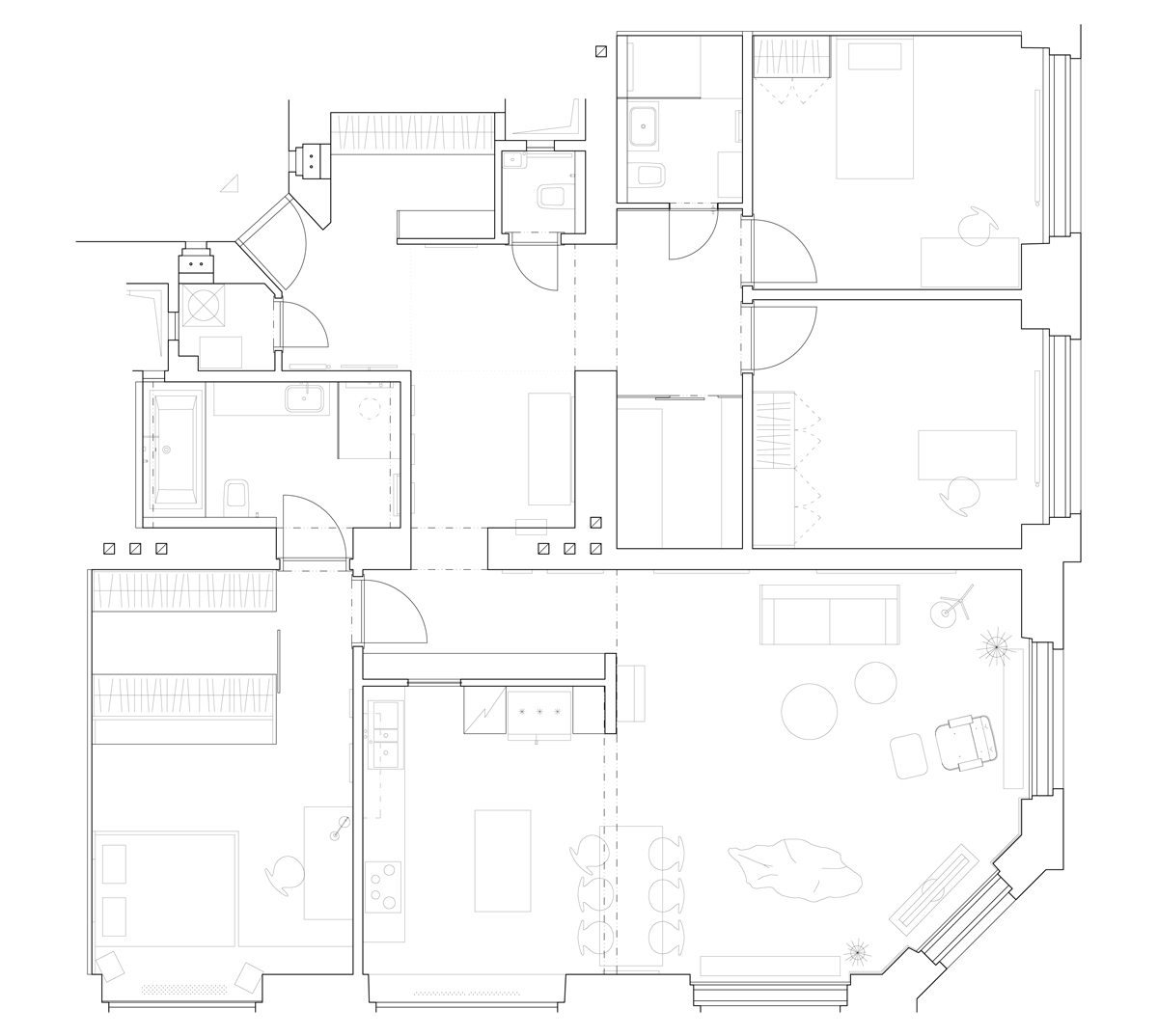
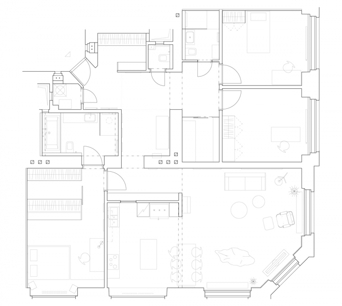
Projekt rekonstrukce a interiéru byl výzvou, jak skloubit různé vlivy, styly i nápady klientů do harmonického a příjemného celku, který bude působit současně a zároveň zachová atmosféru starého. To se promítlo i v dispozičním řešení, vstupní hala záměrně nemá jasný tvar a naopak skrz různé členění podporuje prostorovou bohatost a, přestože volně plyne k jednotlivým místnostem, vytváří zároveň intimnější zákoutí.Pocitové členění prostoru podtrhuje i parketová podlaha různými směry pokládky i velikostí parket.
Hlavním motivem v interiéru byla práce s různými materiály, povrchy a texturami. V bohaté kombinaci se nové přirozeně propojuje se starými původními prvky, které jsme se snažili co nejvíce zachovat. Parkety, dveře i obložení pod okny prošly repasí, v obytném prostoru se nechala odhalená část stěny s oškrabanou omítkou a kresbou ze starších vrstev…
Všechny nové truhlářské prvky včetně velké otevřené kuchyně jsou vyrobené z překližky, jejíž výrazná kresba tvoří jednotící linku, zatímco různě barevné tónování povrchu odlišuje jednotlivé části. Hlavní ložnici dominuje velká postel navržená na míru, která pokračuje do okna jako parapet a lavice, a vestavná šatna, jejíž přední strana slouží jako knihovna. Z překližky je pak i vestavná knihovna u obýváku a příčky s dveřmi do koupelny a šatny v chodbě.
- Autoři: Lenka Míková
- Ateliér: edit! architects
- Země: Česká republika
- Město: Praha
- Realizace: 2012
- Užitná plocha: 150.00m2
- Foto ©: Alexander Dobrovodský
Související projekty
Související architekti
Související ateliéry a firmy
Mohlo by vás zajímat