Bytový dům Bulovka - Aulík Fišer

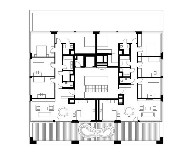
Bytový dům je navržen jako solitérní bodový objekt. Navazuje tak na zastavovací podmínky v území, přičemž jeho umístění respektuje hranu ulice Na Korábě. Poměrně malá zastavěná plocha pozemku uvolňuje velký prostor pro velkorysou společnou zahradu pro obyvatele domu. Díky tomu také zůstává do určité míry zachován charakter místa, tedy místa přechodu kompaktní zástavby přes rozvolněné formy k nezastavěnému ostrohu nad Vltavou. Součástí zdůvodnění tohoto konceptu je také obvyklé přání lidí bydlet v bytových domech spíše ve vyšších podlažích s výhledem, pozice parcely na vyvýšeném hřebeni nad pražskou kotlinou tento předpoklad splňuje.
Architektonické řešení je založené na jednoduchém strukturálním motivu rastru okenních otvorů integrovaných se zasklenými lodžiemi přináležejícími k jednotlivým bytům, který racionálně propisuje vnitřní uspořádání dispozice domu, ale umožňuje zároveň její proměny při zachování existujícího vzhledu.
Hmota objektu blízká rozměry kostce je situována na podnož suterénu, který - díky konfiguraci terénu v místě - částečně vystupuje na severní straně na výšku jednoho podlaží nad jeho úroveň a vymezuje tak plochu zahrady, zároveň je dále modelována ustoupením posledních podlaží severním směrem a konzolou v místě vstupu do domu. Reaguje tak na urbanistické souvislosti místa (kryté předpolí vstupu, či ustoupení a tudíž snížení hlavní atiky směrem v ulici Bulovka).
V domě je navrženo celkem 39 bytů velikostí 1-5+kk, v suterénním parkingu je 50 stání.
- Ateliér: Aulík Fišer architekti
- Spolupráce: Lucie Chroustová
- Země: Česká republika
- Stavebník: Real Treuhand Reality s.r.o.
- Generální dodavatel: SOD Holding, s.r.o.
- Město: Praha
- Ulice, číslo: Na Korábě
- Suma: 110 000 000.00
- Měna: CZK
- Datum projektu: 2010
- Realizace: 2017
Související projekty
Související architekti
Související ateliéry a firmy
Mohlo by vás zajímat





























