Cakov+partners - Bytový komplex ROLIČKY
Bytový komplex ROLIČKY sa nachádza na kopci nad mestom v lokalite Vtáčnik, v ktorej posledné roky prebieha aktívna stavebná činnosť. Podľa nového územného plánu sa táto časť mesta určila na bývanie zastúpene prevažné v bytových domoch. Okrem nášho projektu sa postavili naraz niekoľko rezidenčných developmentov a ďalšie sa pripravujú na výstavbu.
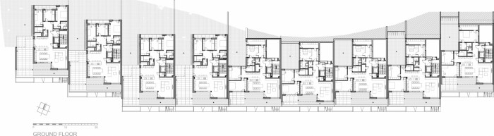
Domy na Roličkáh reagujú na okolie, ich urbanistické osadenie do terénu vychádza z prostredia a tvaru pozemku. Zámer projektu bol zabezpečiť vo veľkej miere súkromie pre užívateľov na jednej strane, na strane druhej využiť pekné výhľady na Bratislavu. Pre tento účel sa domy „otvárajú“ smerom na mesto a do kopca. Bočné fasády sú perforované minimálne. Do nich sú osadené malé átria alebo loggie, ktoré pomáhajú presvetliť hlboké dispozície. Zároveň umožňujú priečne vetrať denne časti bytu. Domy sú medzi sebou odsadené, vzniknuté priestory medzi nich sa využívajú pre terasy a zelené plochy.
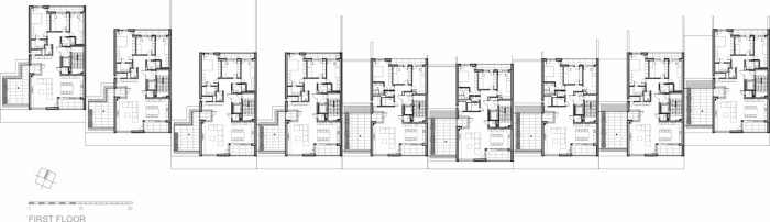
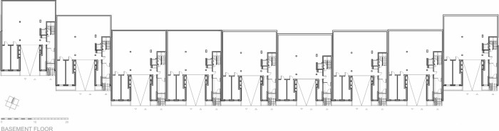
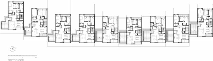
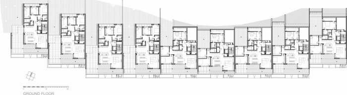
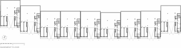
Projekt obsahuje 27 veľkometrážnych bytov usporiadaných v deviatich samostatných domoch. Všetky domy sú prístupne jednou spoločnou vnútro-areálovou cestou, zoradené sú líniovo. Na obidvoch koncoch sú ustúpené podľa vejárovitého tvaru pozemku. Každý dom má tri nadzemné poschodia a jednu spoločnú garáž umiestnenú v suteréne. Na každom poschodí je jeden byt priamo prístupný z výťahu. Typologický sa jedna o rodinné domy, keďže v každom z nich sú tri byty.
Dispozícia bytov je rozdelená na tri základne celky. Denná zóna je smerovaná na juhovýchod - využíva na maximum celú šírku domov 10,2m tak, aby z obývačky, jedálne a kuchyne bol výhľad na mesto. Nočná zóna má orientáciu na severozápad. V strede bytu je vstup, technická časť a hygiena. Každá zóna ma svoju loggiu alebo átrium rôznej veľkosti, dané podľa účelu využitia. Okrem toho každý byt má veľkú terasu prístupnú priamo z úrovne bytu alebo sa nachádza na streche domov pre byty na druhom poschodí. Strešné terasy disponujú sprchou a letnou kuchyňou, ktoré sú zapustené (schované) do hmoty domov. Zvyšok tvorí extenzívna zelena strecha a svetlíky, ktoré presvetľujú kúpeľne o poschodie nižšie. Byty na prízemí majú priľahlé pozemky alebo veľké zazelenené átria.
V každom byte je iba jedno stredové inštalačné jadro a jeden stĺp. Toto riešenie umožňuje veľkú variabilitu dispozícii. Domy majú vyšší technický a priestorový štandard ako je bežný: svetlá výška v garážach je 3,3m, v bytoch je 2,9m.
Fasády sú bez údržbové, obložené sú tehlovým obkladom a alucobondom, okna sú hliníkové so žalúziami. Každý byt ma vlastný plynový kotol napojený na podlahové kúrenie. Celkový výraz domov je minimalistický , prevláda jednotná sivá farba doplnená o čierne akcenty. Prístupová cesta je obložená tehlami od toho istého výrobcu ako sú fasádne tehličky. Pri pohľade z diaľky domy „nekričia“, ale splývajú s kopcom.
- Autoři: Kalin Cakov, Metodiy Monev, Ján Obušek
 - Spolupráce: Tomáš Fojtik, Michal Kyselica, Soňa Dianová
 - Země: Slovensko
 - Realizace: 2019
 - Město: Bratislava
 - Ulice, číslo: Na Roličkách
 - Datum projektu: 2016
 - Realizace: 2019
 - Užitná plocha: 9 080.00m2
 - developer: MIVO
 
Mohlo by vás zajímat