CMC architects – Tee House Beskydy

Obec Čeladná, obklopená nádhernou krajinou beskydských hor, se v posledních letech rozrostla o řadu výrazných staveb. Nejnovějším přírůstkem je apartmánový projekt TeeHouse umístěný v golfovém a jezdeckém areálu. Cílem investora bylo doplnit nabídku služeb tohoto areálu o ubytovací zařízení a wellness. Autoři architektonického řešení se při ztvárnění tohoto záměru inspirovali právě beskydskou krajinou a také jasným ortogonálním členěním účelových staveb původního jezdeckého areálu.
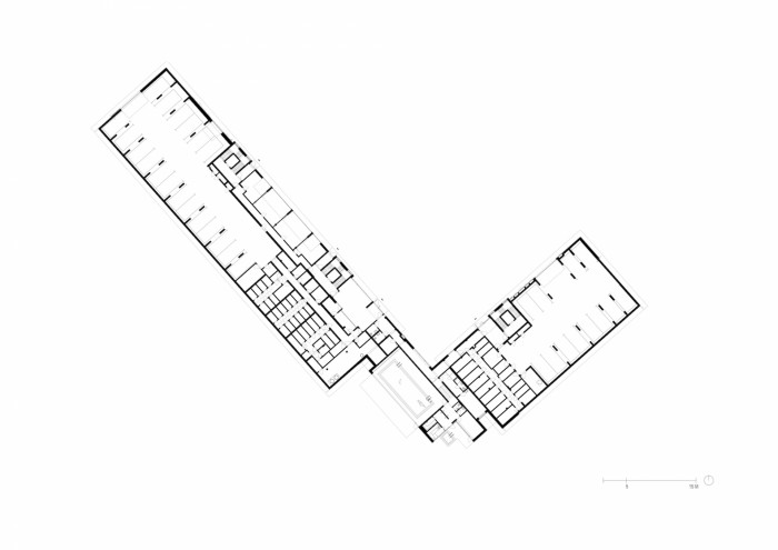
Nové objekty jsou umístěny do tvaru písmene L a jsou v přibližné poloze bývalých čistě utilitárních staveb. Respektují tak původní strukturu i ortogonální členění tohoto místa. Stávajícího areálového urbanismu je využito také pro umocnění výhledů z jednotlivých apartmánů. K pokojům v typických podlažích náleží velkoryse pojednané lodžie, které jsou výrazným architektonickým prvkem na fasádách objektů. To je ještě zdůrazněno ustoupením suterénního patra, což nechává vyniknout samotnému hlavnímu objemu stavby. Podkrovní část je řešena jako ustoupená s výrazně přesahující příčně zalamovanou střechou. Vizuálně silný architektonický prvek ve střešní rovině je zkonstruovaný podle reliéfu okolní hornaté krajiny.
Objemové ztvárnění budov je zdůrazněno snahou o použití co nejmenšího množství materiálů a barev na fasádě objektu. Zamýšleného konceptu dřevěných částí na podkladu tmavé fasády je dosaženo pomocí základních pohledových materiálů jako sibiřský modřín, tmavě šedý bond, tmavě šedá omítka a pohledový beton. Čistá geometrie budov se tak stává součástí okolní beskydské krajiny.
- Autoři: Vít Máslo, David Richard Chisholm
- Ateliér: CMC ARCHITECTS
- Spolupráce: Evžen Dub, Daniel Šimpach, Jan Hřebíček, Lenka Dřevická, Josef Knotek
- Země: Česká republika
- Město: Čeladná
- Ulice, číslo: Čeladná 990
- PSČ: 739 12
- Datum projektu: 2017
- Realizace: 2019
- Užitná plocha: 7 326.00m2
- Zastavěná plocha: 2 841.00m2
- Investor: CREAM Real Estate s.r.o.
Související projekty
Související architekti
Související ateliéry a firmy
Mohlo by vás zajímat







































