DDAANN - Byt na Žižkově

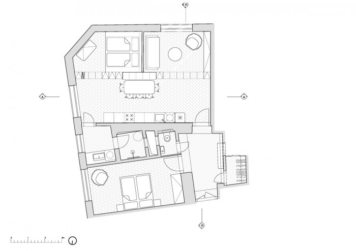
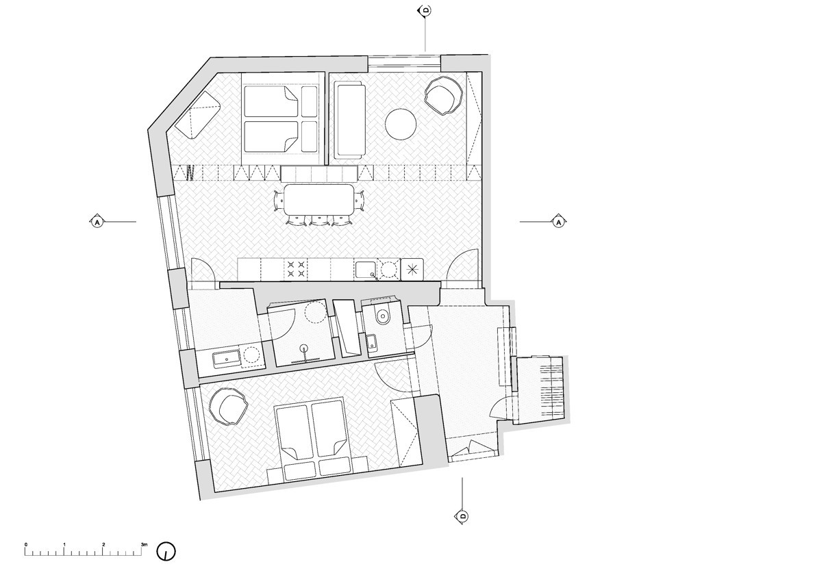
Byt na Žižkově se nachází v domě z třicátých let dvacátého století. Klienti nás oslovili s přáním upravit stávající prostor tak, aby odpovídal potřebám manželského páru. Základním konceptem našeho řešení bylo vytvoření propojeného, odlehčeného a prosvětleného prostoru.
Vstupní hala bytu navazuje na malou šatnu, toaletu a samostatnou ložnici - respektive pracovnu. Především ale na těžiště dispozice nového bytu, kterým se stala prostorná kuchyně s jídelnou. Ta je vymezená na jedné straně kuchyňskou linkou a na straně druhé velkou knihovnou, která odděluje, ale zároveň také spojuje hlavní obytný prostor bytu s navazujícím oddychovým koutem a kajutou ložnice. Koupelnu tvoří dvě samostatné místnosti. První je bohatě prosvětlena díky velkému oknu, ve druhé je pak prostorná sprcha.
V duchu konceptu byly řešeny nejen prvky vestavěného nábytku z bělené březové překližky s jemným detailem drážky na jejích hranách, ale také materiály a barvy jednotlivých povrchů jako jsou například bledě modré obklady, šedé lité stěrky a oranžové čalounění. Na pozadí tohoto řešení pak mohou vyniknout solitéry nábytku, obrazy, interiérové doplňky i květiny. Byt na Žižkově je prostorné, světlé a jednoduché bydlení.
Mohlo by vás zajímat


























