DDAANN - Chata DONE

Na začátku bylo úsilí umístit to nejnutnější co člověk či dva potřebují ke komfortnímu noclehu v přírodě na co nejmenší ploše. Chtěli jsme poskytnout nejen střechu nad hlavou, ale i kamna, kuchyň, sprchu, wc a to vše tak, aby chatka obstála stejně dobře v obytné zástavbě či v pusté krajině. Důraz jsme pak kladli na samotné propojení vnitřního prostoru s tím vnějším.
Koncepce chatky je založena na principu stavebnice, tak aby bylo možné postavit dům ve 2-3 lidech. Jako základní materiál jsou proto použity desky z překližovaného masivního smrkového dřeva. Jednotlivé dílce jsou vesměs ploché a jejich váha se pohybuje okolo 80 kg. Prefabrikované panely jsou opracovány a připraveny v nábytkářském standardu tak, že za pomoci běžných nástrojů je zručnější laik dokáže smontovat svépomocí. V průběhu návrhu bylo stále jasnější, že každá s chatek bude spíše hledat místo kde se usadit a rozhlédnout do kraje než cestovat z místa na místo.
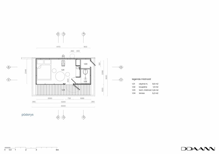
Samotná chatka je rozdělena velkým fixním zasklením na dvě poloviny. V té transparentní je obytná část s kamny, postelí a kuchyní. V druhé jsou pak technická místnost a toaletní kapsle včetně sprchy a záchodu. Zasklení je bezrámové z přetaženými skly. Pouze z montážních důvodů je děleno na tři vertikální segmenty.
Fasáda i terasa je z modřínového dřeva ošetřeného olejovou lazurou. Na plochou střechu s minimálním spádem je položen hliníkový vlnitý plech s jemnou vlnou. Přesahy na stranách a nad terasou zajistí komfort jak při stavbě tak během užívání. Chatka má dva vstupy, hlavní a druhý samostatný do technické místnosti. Pro větrání je pak severní stěna doplněna o kruhový větrací prostup. Vnitřní i vnější povrchy jsou ošetřeny olejovou lazurou.
- Autoři: Daniel Baudis, Daniel Rohan
- Ateliér: DDAANN
- Země: Česká republika
- Město: Smržovka
- Datum projektu: 2018
- Realizace: 2019
- Užitná plocha: 12.00m2
- Zastavěná plocha: 17.00m2
Související projekty
Související architekti
Související ateliéry a firmy
Mohlo by vás zajímat















