edit! architects - vinotéka Vicino DiVino

Pro úkol otevřít vinotéku s italskými víny v moravské metropoli musel být opět povolán žižkovský okrášlovací spolek edit!
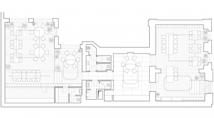
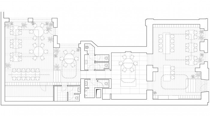
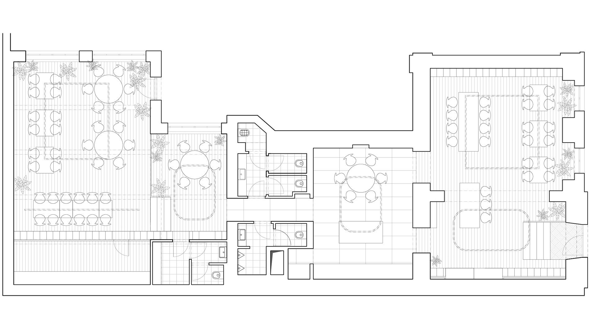
V přízemí objektu z roku 1924 s předním traktem orientovaným do ulice a dvorní přístavbou jsme odhalili původní povrchy a nosné prvky a vytvořili zde prostor pro posezení a prezentaci vín. Prostoru dominují policové stěny ze smrkového dřeva sloužící k ukládání a vystavování prodávaných lahví. Jednotlivé zóny sezení jsou zvýrazněny podvěšenými ocelovými rámy osazenými osvětlovacími lištami.
Centrální prostor byl v minulosti zdevastovnán neodbornými stavebními zásahy, kvůli nimž prostor působil nesourodě. Proto jsme zde vytvořili zavěšenou klenbu a centrální místnost obložili cihelnými pásky odkazujícími na italské vinné sklepy. Vyjma klenby je tu ústředním motivem bar s přípravou jídla s centrálním servírovacím stolem.
- Ateliér: edit! architects
- Realizace: 2020
- Město: Brno
- Adresa:: Za Divadlem 586/2
Související projekty
Související ateliéry a firmy
Mohlo by vás zajímat













